LEMON Manuals: Even more car manuals for everyone
Home >> Volvo >> 2009 >> S60 Base, AWD >> Repair and Diagnosis >> Accessories & Equipment >> Accessories Control Systems >> Control Modules - Design And Function - 1 Of 4 >> Active On Demand Coupling (2002) >> Function >> Hydraulic Function, Overview

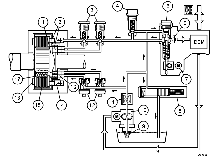
Hydraulic Function, Overview

Fig 1: Hydraulic Function, Overview
GLL107825Courtesy of VOLVO CARS OF NORTH AMERICA.
  1. Cam disc
  2. Rollers
  3. Pressure valves
  4. Overload protection valve
  5. Control valve cover
  6. Control valve
  7. Stepper motor
  8. Accumulator
  9. Oil screen
  10. Electric oil pump
  11. Oil filter
  12. Suction valves
  13. Piston pump
  14. Operating piston
  15. Wet multi-plate clutch pack
  16. Bearing
  17. Springs.

Active On Demand Coupling can be described as a hydraulic pump.

The basic pressure in the system is generated by the electric oil pump. This puts pressure on the annular pistons pressing them against the cam disc via the rollers. The annular piston generates an operating pressure which is supplied to the operating piston via the pressure valve. This pressure connects the input and output shaft. Maximum pressure is limited by the overload protection valve. The difference in speed between the input and output shafts is in direct proportion to the oil pressure on the annular pistons. The greater the difference in speed between the input and output shafts, the higher the oil pressure on the annular pistons. If the speed of the input and output shafts is the same, the oil pressure on the annular pistons is less. The oil pressure on the multi-plate clutch is controlled by the control valve. The stepper motor operates the control valve. The pressure on the multi-plate clutch is greatest when the control valve is closed. This provides maximum torque to the rear wheels. The pressure on multi-plate clutch is lowest when the control valve is open. This limits the torque transferred to the rear wheels.

The accumulator maintains the basic pressure in the system. The oil filter keeps the oil clean and free of small particles which could damage the system.