LEMON Manuals: Even more car manuals for everyone
Home >> Volvo >> 2004 >> XC90 Base, AWD >> Repair and Diagnosis >> Engine Performance >> System >> Electronic Modules - Design And Function >> Engine (B8444S; 2005-2011) >> Design >> Cooling System

Cooling System

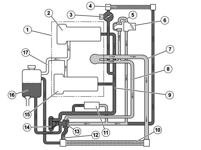
Fig 1: Schematic of Cooling System
GLL154235Courtesy of VOLVO CARS CORPORATION
  1. Cylinder block
  2. Right cylinder head
  3. Electric coolant pump
  4. Heat exchanger (passenger compartment)
  5. Preheating crankcase ventilation
  6. Throttle body
  7. Upper cooling hose
  8. Bypass pipe
  9. To cylinder head
  10. Radiator
  11. Oil cooler
  12. Lower cooling hose
  13. Thermostat housing
  14. Coolant pump
  15. Left cylinder head
  16. Expansion tank with level sensor
  17. Air bleed circuit

The engine is cooled used reversed cooling, that is, the cylinder head is cooled first. The system gives fast heating and contributes to reducing emissions.

The radiator is made of aluminum to withstand thermal fatigue as the radiator is alternately cooled with cold air and heated with hot coolant. The cooling system is regulated by a mechanical thermostat, which is located in the thermostat housing. The thermostat housing, in turn, is located on the inlet side of the coolant pump, between the radiator and the coolant pump.

The heart of the thermostat is a wax body which expands when energy, in the form of heat, is applied. A jiggle pin is located in the thermostat. Any air in the cooling system can be evacuated from the system using the jiggle pin.

Cold air is sucked through the cooler using an electric engine cooling fan installed on the fan shroud behind the radiator. The engine cooling fan is brushless and has six fixed stages. It is controlled by the engine control module (ECM).

Oil cooler 

The oil cooler is round and has an inlet and outlet for oil as well as for coolant. The oil cooler is structured in layers, with alternating layers of coolant and oil flow. Because the oil cooler has very small slits, there is a large pressure drop here.