LEMON Manuals: Even more car manuals for everyone
Home >> Toyota >> 2013 >> Prius Two >> Repair and Diagnosis >> External Pages >> Different variant/trim >> Section 141 (OEM System Circuits (Plug-In)) >> Fog Light >> Notes

Fog Light: Notes

WARNING: This page is about a different variant/trim than selected.
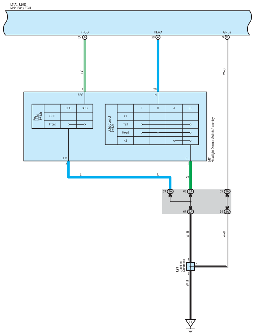
Fig 1: Fog Light System Wiring Diagram (1 Of 3)
G09100250Courtesy of © TOYOTA, LICENSE AGREEMENT TMS1002
Fig 2: Fog Light System Wiring Diagram (2 Of 3)
G09100251Courtesy of © TOYOTA, LICENSE AGREEMENT TMS1002
Fig 3: Fog Light System Wiring Diagram (3 Of 3)
G09100252Courtesy of © TOYOTA, LICENSE AGREEMENT TMS1002