LEMON Manuals: Even more car manuals for everyone
Home >> Suzuki >> 1987 >> Samurai Base >> Repair and Diagnosis >> External Pages >> Different car >> Section 13 (Wiring Systems) >> Schematic And Routing Diagram >> Power Distribution Schematics

Power Distribution Schematics

WARNING: This page is about a different car, the 2007 Suzuki XL7. However, it is still accessible from the selected car via links, so may be relevant.
Fig 1: B+ BUS Schematic - 1 of 2
GM1767247Courtesy of GENERAL MOTORS CORP.
Fig 2: B+ BUS Schematic - 2 of 2
GM1767327Courtesy of GENERAL MOTORS CORP.
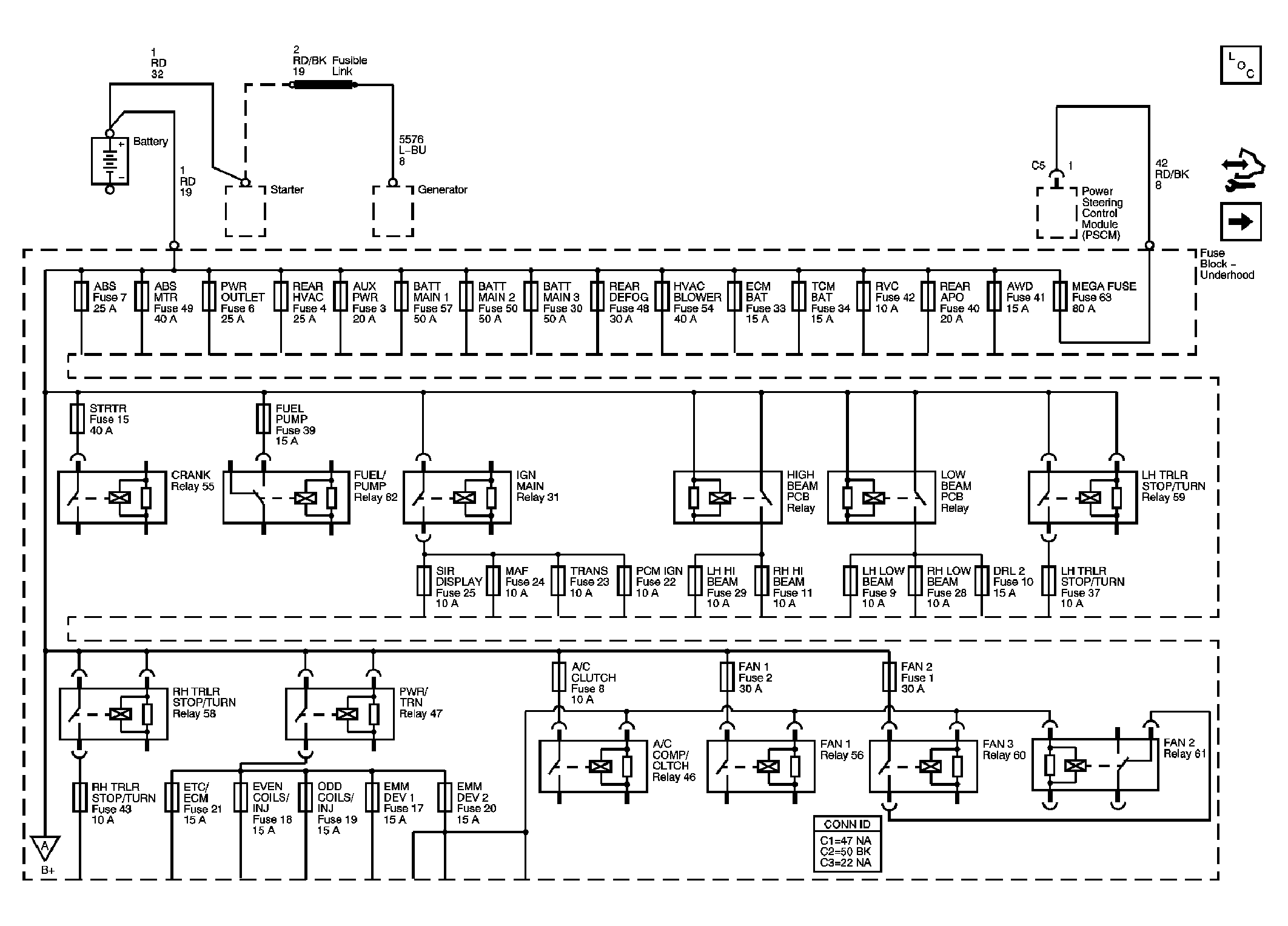
Fig 3: ABS, ABS MTR, AUX PWR, AWD, ECMBAT, PWR OUTLET, REAR APO, REAR HVAC and TCM BAT Fuses Schematic
GM1767330Courtesy of GENERAL MOTORS CORP.
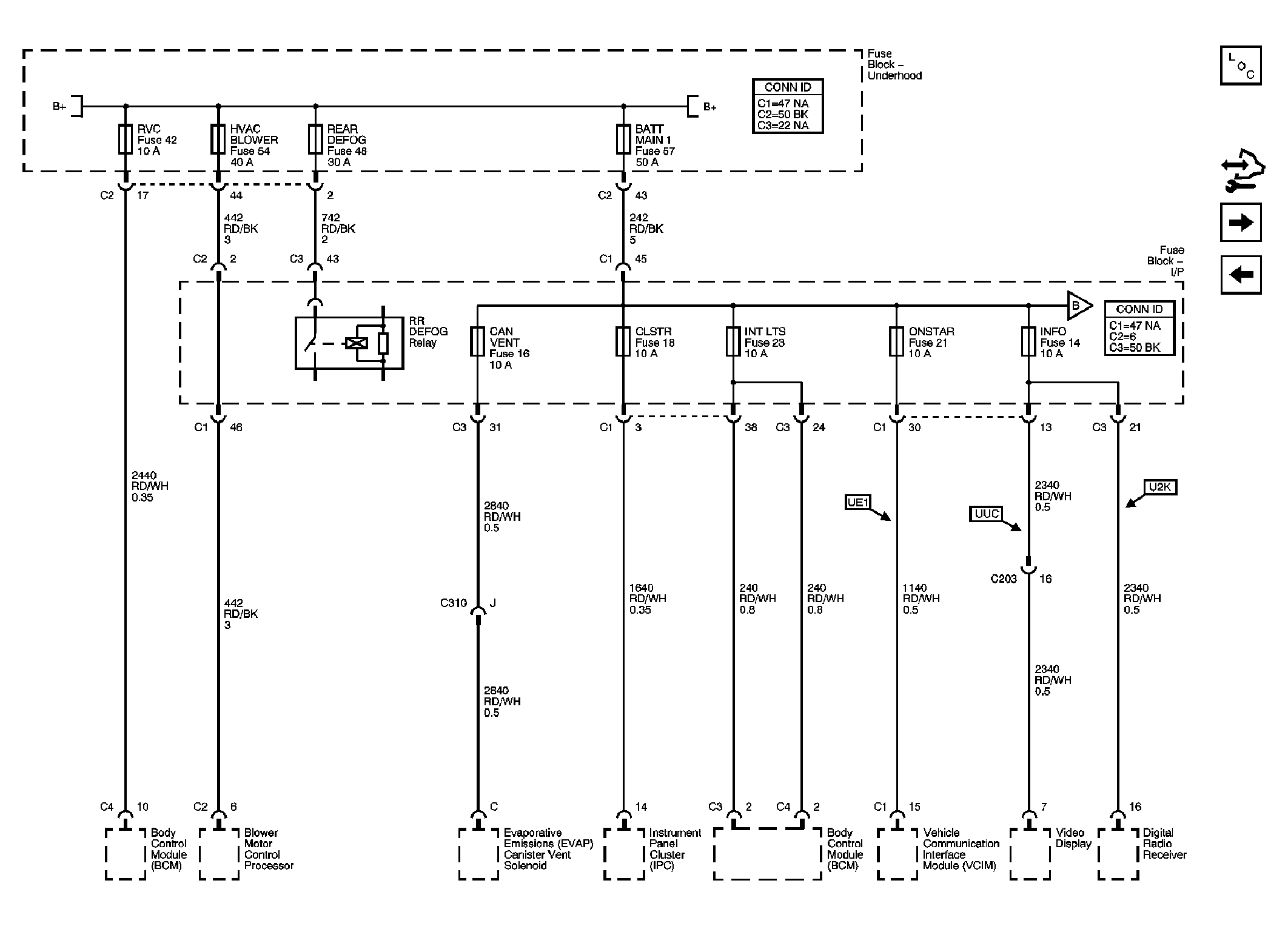
Fig 4: BATT MAIN 1, CAN VENT, CLSTR, HVAC BLOWER, INFO, INT LTS, ONSTAR, REAR DEFOG and RVC Fuses Schematic
GM1767332Courtesy of GENERAL MOTORS CORP.
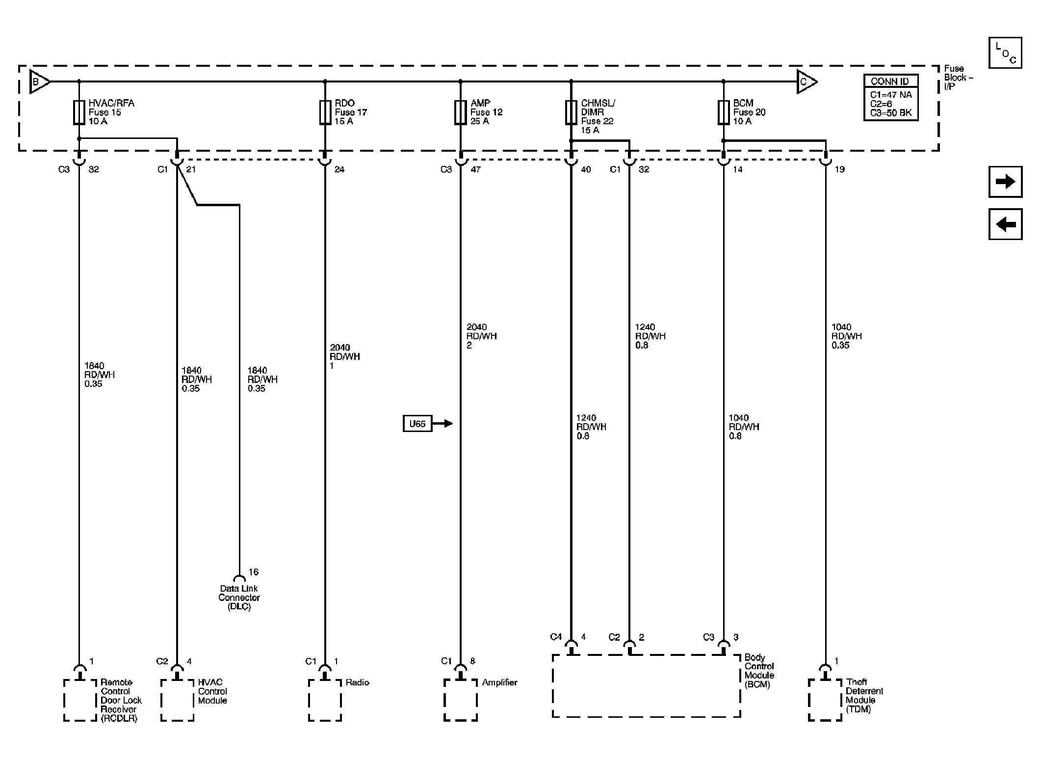
Fig 5: AMP, BCM, CHMSL/DIMR, HVAC/RFA and RDO Fuse Schematic
GM1767335Courtesy of GENERAL MOTORS CORP.
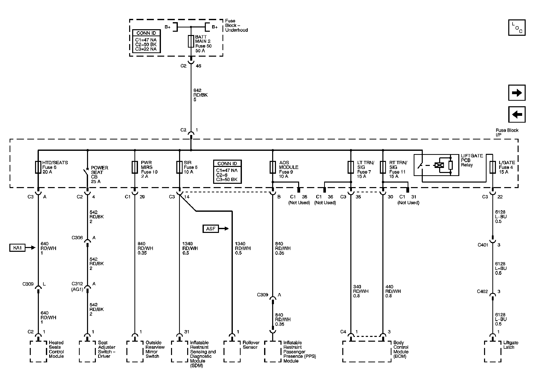
Fig 6: AOS MODULE, BATT MAIN 2, HTD/SEATS, L/GATE, LT TRN/SIG, PWR MIRS, RT TRN/SIG and SIR Fuses and POWER SEATS Circuit Breaker Schematic
GM1767340Courtesy of GENERAL MOTORS CORP.
Fig 7: BATT MAIN 3, DR/LCK, RRWPR, RSE/KEY CAPTR and S/ROOF Fuses and POWER WNDW Schematic
GM1767352Courtesy of GENERAL MOTORS CORP.
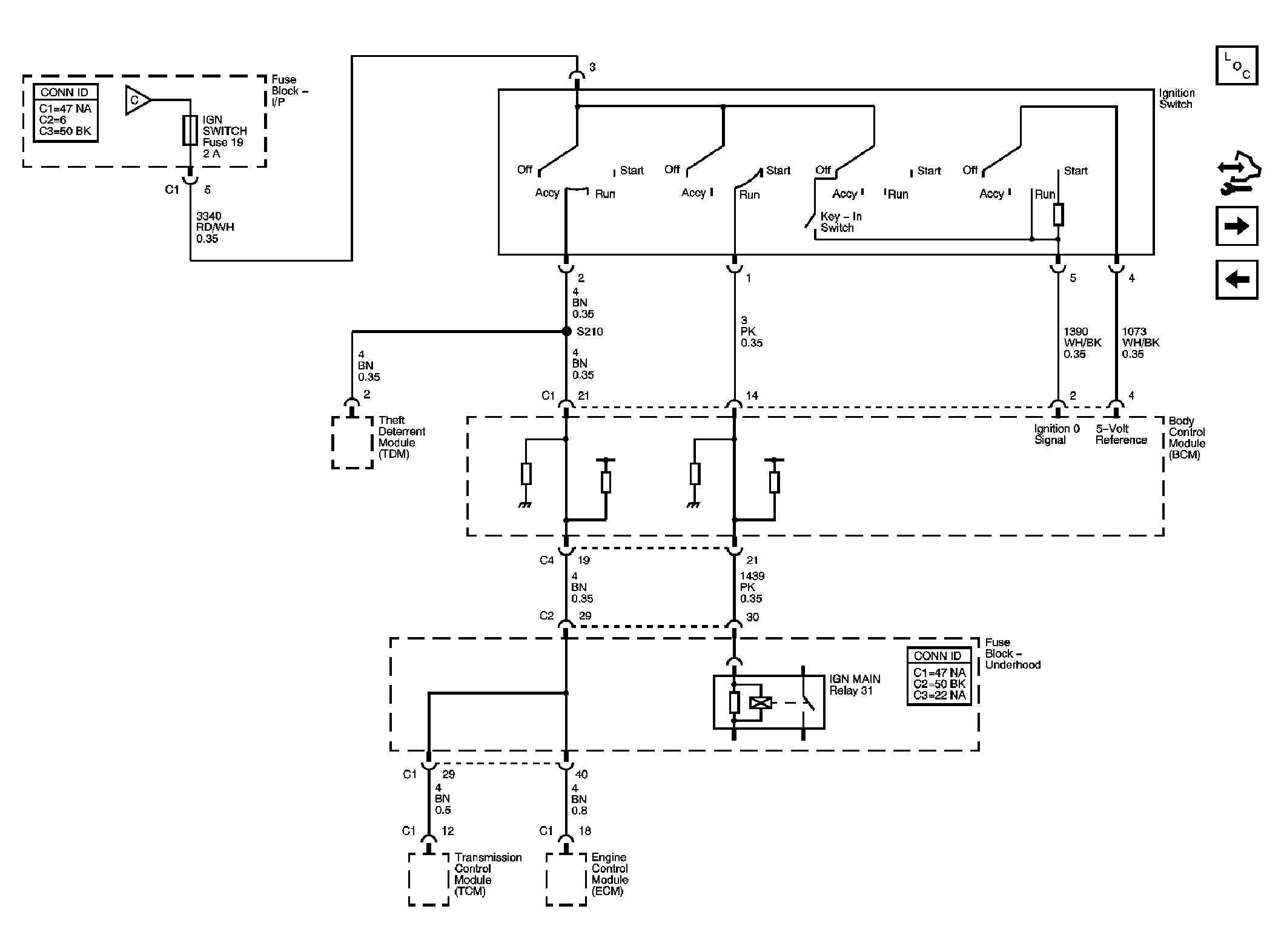
Fig 8: IGN SWITCH, Fuse and Ignition Switch Schematic
GM1767355Courtesy of GENERAL MOTORS CORP.
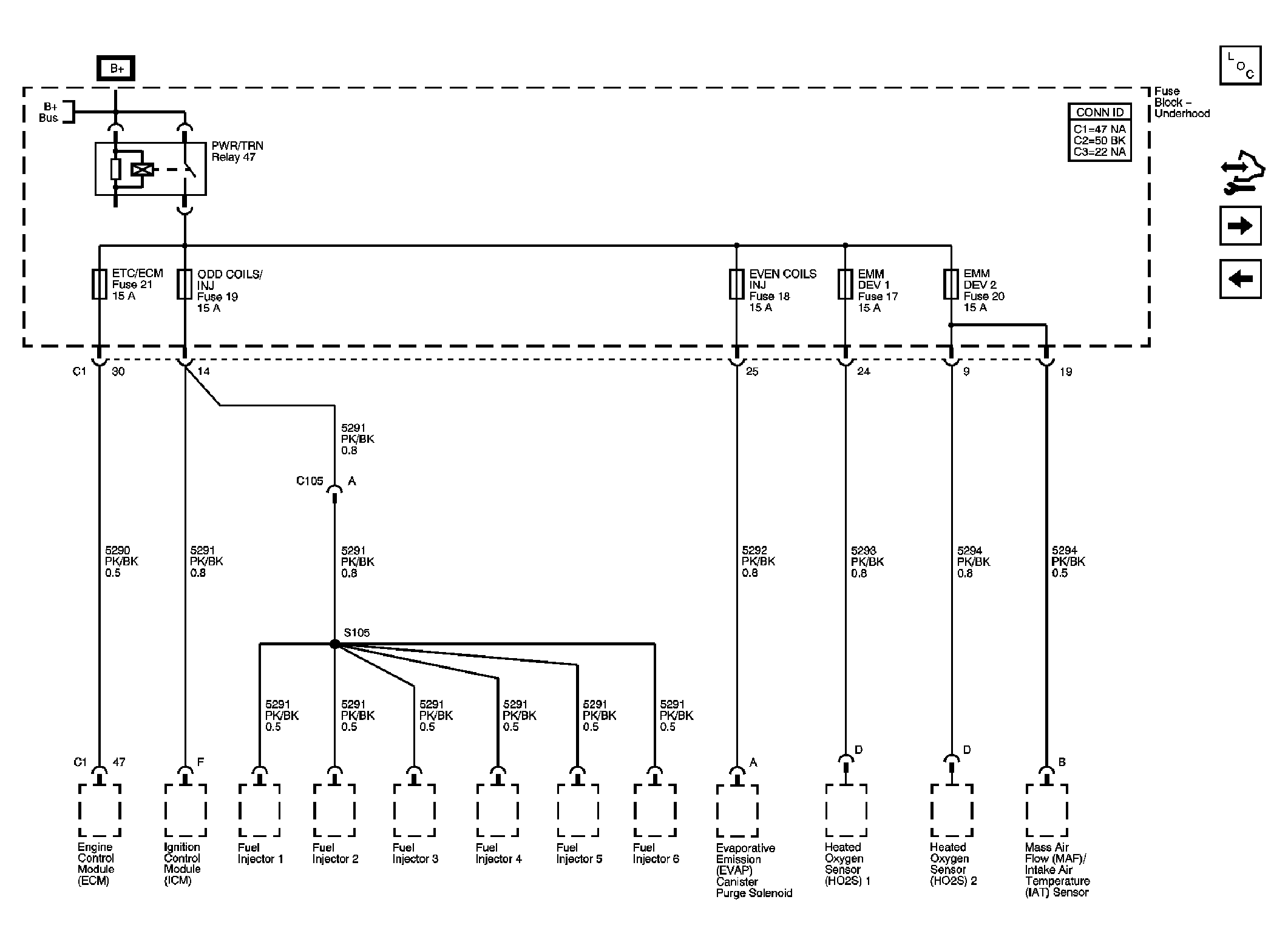
Fig 9: PWR/TRN BUS - EMM DEV1, EMM DEV2, ETC/ECM, EVEN COILS/INJ AND ODDCOILS/INJ Fuses Schematic
GM1767357Courtesy of GENERAL MOTORS CORP.
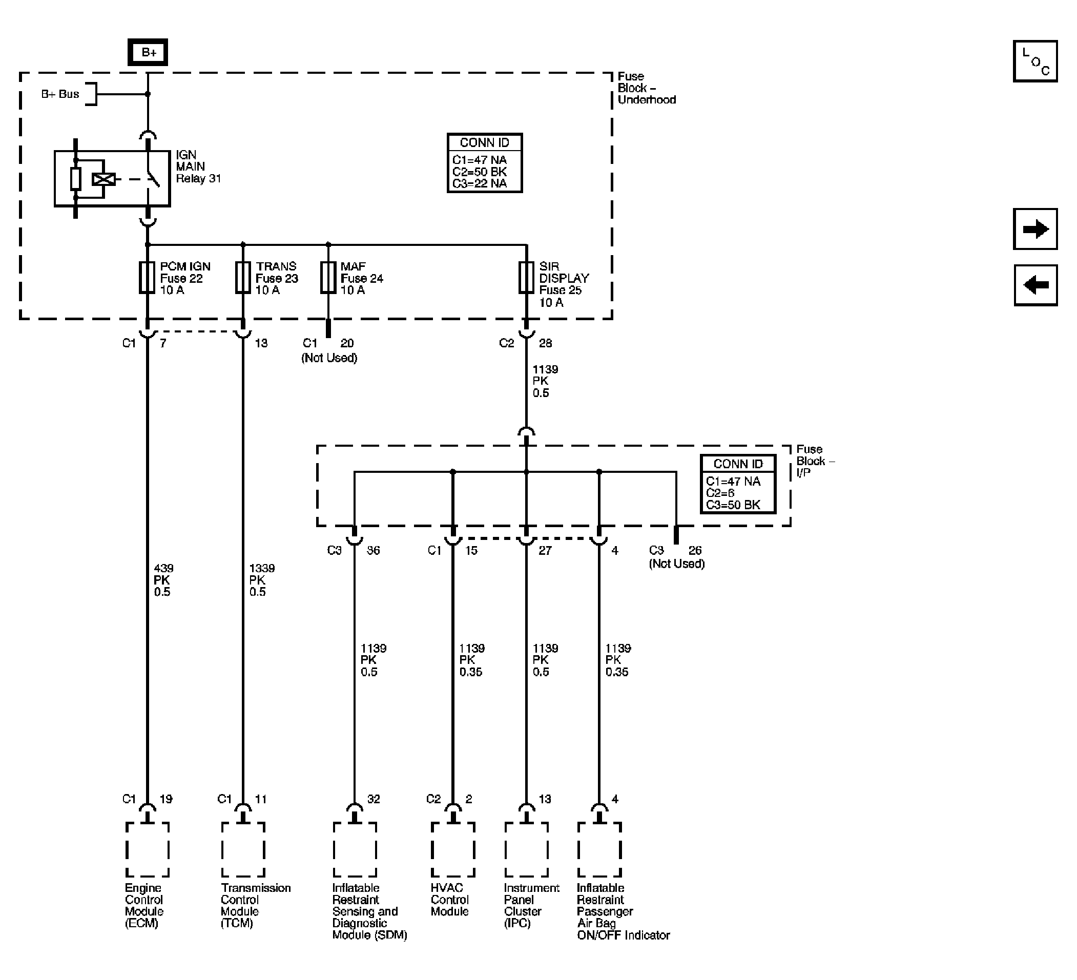
Fig 10: RUN/CRANK BUS - MAF, PCM, IGN, SIR DISPLAY and TRANS Fuses Schematic
GM1767359Courtesy of GENERAL MOTORS CORP.
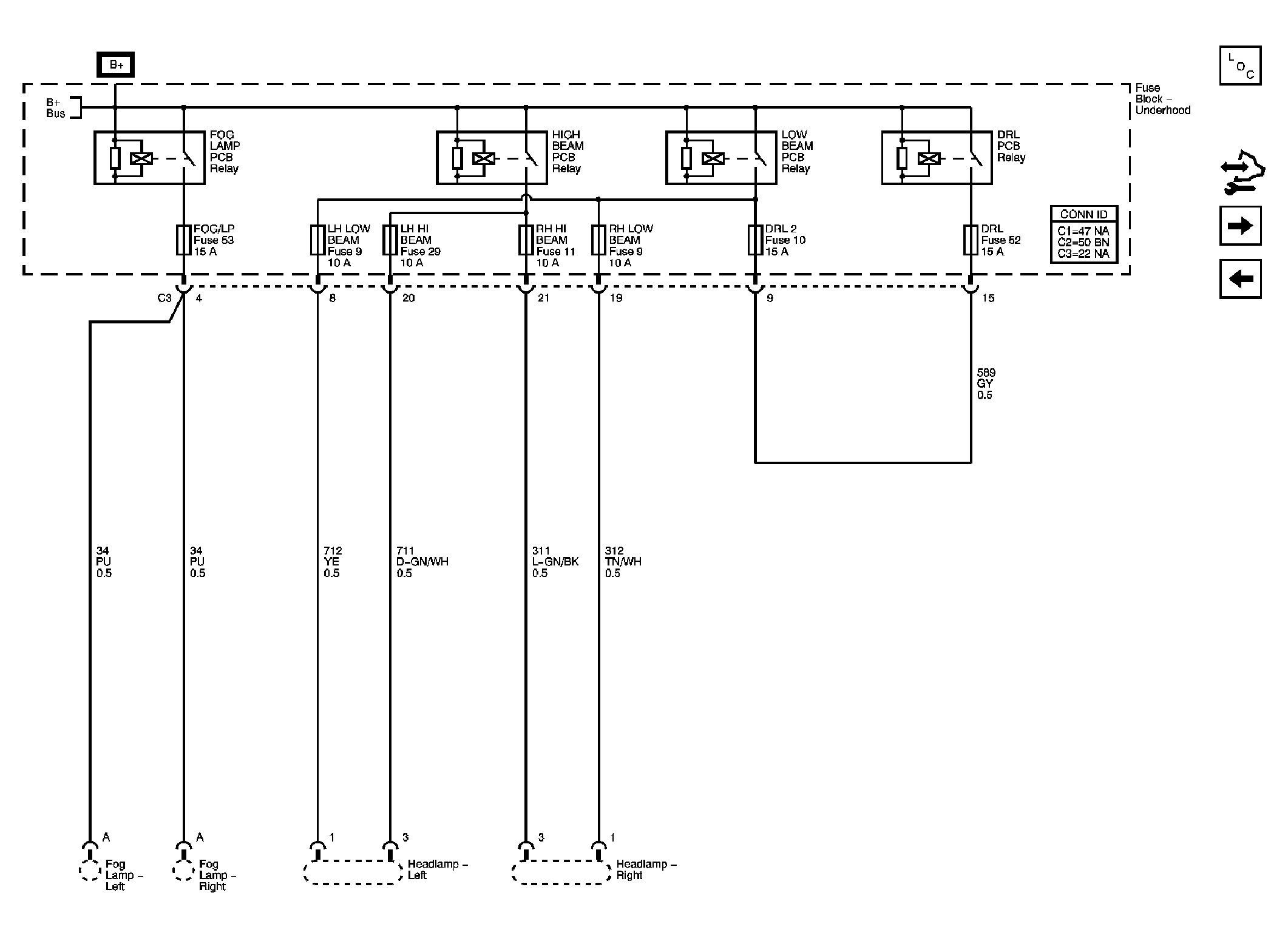
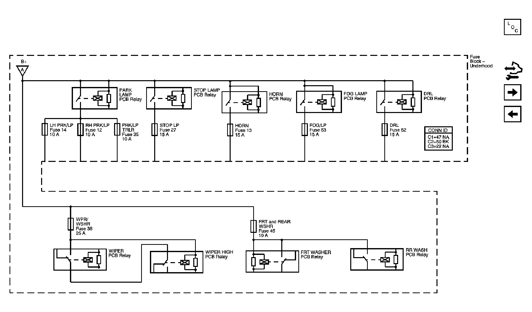
Fig 11: DRL, DRL2, FOG/LP, LH HIGH BEAM, LH LOW BEAM, RH HIGH BEAM and RH LOW BEAM Fuses Schematic
GM1767361Courtesy of GENERAL MOTORS CORP.
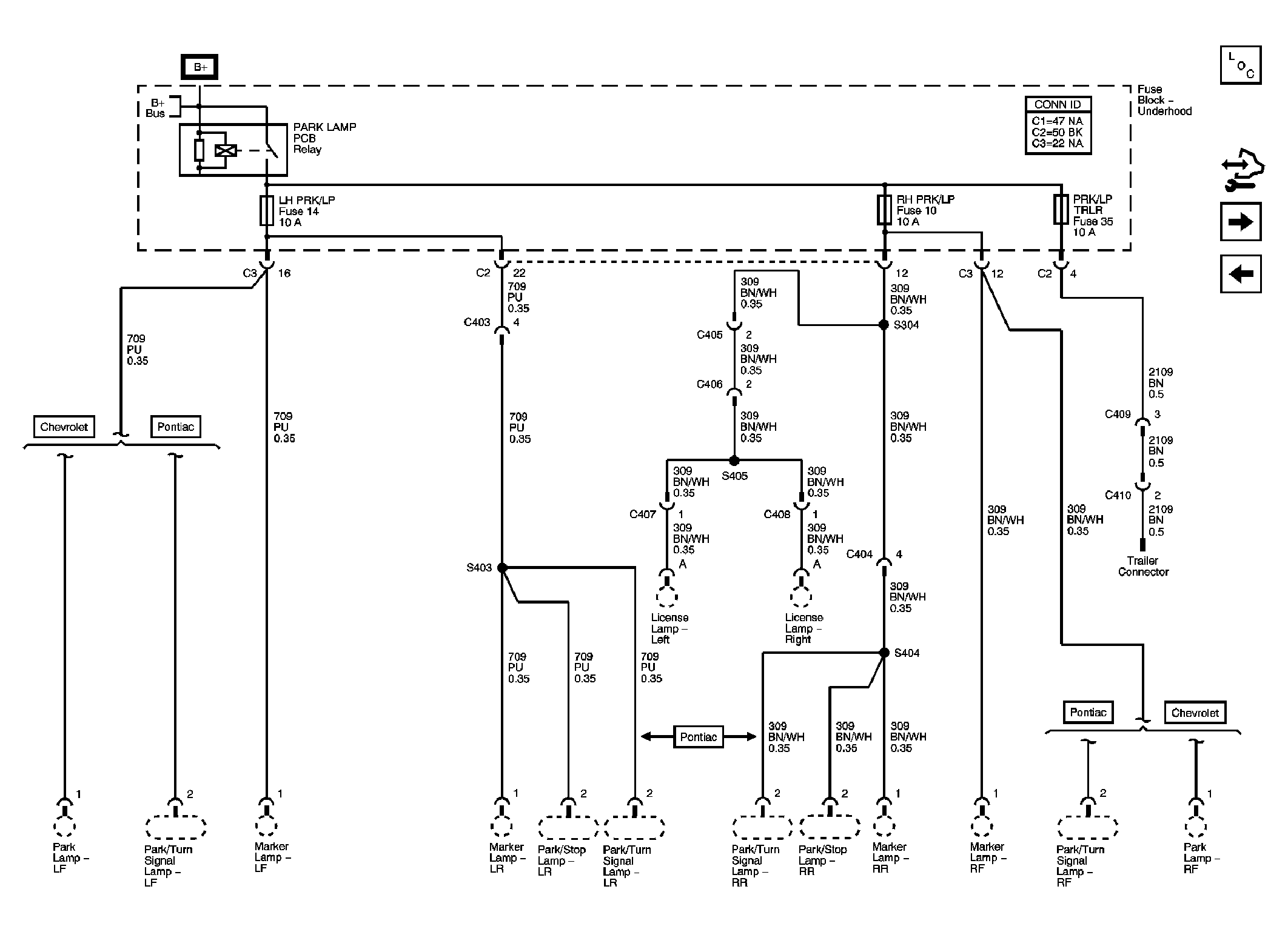
Fig 12: LH PRK/LP, RH PRK/LP and RH PRK/LP TRLR Fuses Schematic
GM1767364Courtesy of GENERAL MOTORS CORP.
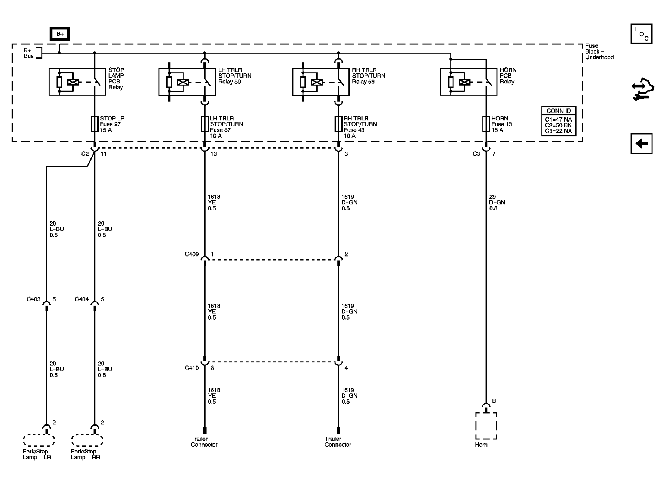
Fig 13: HORN, LH TRLR STOP/TURN, RH TRLR STOP/TURN and STOP LP Fuses Schematic
GM1767365Courtesy of GENERAL MOTORS CORP.