LEMON Manuals: Even more car manuals for everyone
Home >> Subaru >> 2025 >> Outback Base >> Repair and Diagnosis >> Engine Performance >> Engine Control Systems >> Auto Start Stop System (Diagnostics) >> Diagnostic Procedure with Diagnostic Trouble Code (DTC) >> DTC P0A12: Dc/Dc Converter Enable Circuit Low >> Notes

DTC P0A12: Dc/Dc Converter Enable Circuit Low: Notes

DTC detecting condition: 

Detected when two consecutive driving cycles with fault occur.

Trouble symptom: 

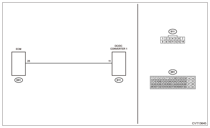
Wiring diagram: 

G16394817Courtesy of SUBARU OF AMERICA, INC.
CAUTION:
  1. CHECK SYSTEM OPERATION STATUS IN TCM  .
    1. Using the Subaru Select Monitor, perform the active test [Sub power supply control (ON/OFF Dr.)]. Ref. to AUTO START STOP (DIAGNOSTICS)>ACTIVE TEST .
    2. Read the data of [DC/DC Converter 1 Boost Signal Reception] using Subaru Select Monitor. Ref. to AUTO START STOP (DIAGNOSTICS)>DATA MONITOR .

    Does the display of [DC/DC Converter 1 Boost Signal Reception] change from [Not yet received] to [Reception] according to the ON/OFF operation?

    Yes:  The circuit has returned to a normal condition at this time. Reproduce the failure, and then perform the diagnosis again.

    NOTE: In this case, temporary poor contact of connector, temporary open or short circuit of harness may be the cause.

    No:  Go to  2.

  2. CHECK HARNESS BETWEEN ECM AND DC/DC CONVERTER 1  .
    1. Turn the ignition switch to OFF.
    2. Disconnect the ECM connector.
    3. Disconnect the DC/DC converter 1 connector.
    4. Measure the resistance in harness between ECM connector and DC/DC converter 1 connector.

      Connector & terminal 

      ENGINE TYPE FB

      (B62) No. 7 - (B11) No. 11:

      ENGINE TYPE FA

      (B61) No. 26 - (B11) No. 11:

    Is the resistance less than 1 Ω?

    Yes:  Go to  3.

    No:  Repair the open circuit in harness between ECM and DC/DC converter 1.

  3. CHECK HARNESS BETWEEN ECM AND DC/DC CONVERTER 1  .

    Measure the resistance between ECM connector and chassis ground.

    Connector & terminal 

    ENGINE TYPE FB

    (B62) No. 7 - Chassis ground:

    ENGINE TYPE FA

    (B61) No. 26 - Chassis ground:

    Is the resistance 1 MΩ or more?

    Yes:  Go to  4.

    No:  Repair the short circuit to ground in harness between ECM and DC/DC converter 1.

  4. CHECK DC/DC BOOST OUTPUT SIGNAL  .
    1. Connect the ECM connector.
    2. Turn the ignition switch to ON.
    3. Using the Subaru Select Monitor, perform the active test [Sub power supply control (ON/OFF Dr.)]. Ref. to AUTO START STOP (DIAGNOSTICS)>ACTIVE TEST .
    4. Measure the voltage between ECM connector and chassis ground.

      Connector & terminal 

      ENGINE TYPE FB

      (B62) No. 7 (+) - Chassis ground (-):

      ENGINE TYPE FA

      (B61) No. 26 (+) - Chassis ground (-):

    Is the voltage still less than 5 V after ON/OFF operation?

    Yes:  Check for poor contact of ECM connector. Replace the ECM if no fault is found. Ref. to FUEL INJECTION (FUEL SYSTEMS) (H4DO)>ENGINE CONTROL MODULE (ECM) . Ref. to FUEL INJECTION (FUEL SYSTEMS) (H4DOTC)>ENGINE CONTROL MODULE (ECM) .

    No:  Check for the poor contact of DC/DC converter 1 connector. Replace the DC/DC converter 1 if no fault is found. Ref. to STARTING/CHARGING SYSTEMS (H4DO)>AUTO START STOP DC/DC CONVERTER . Ref. to STARTING/CHARGING SYSTEMS (H4DOTC)>AUTO START STOP DC/DC CONVERTER .