LEMON Manuals: Even more car manuals for everyone
Home >> Subaru >> 2023 >> Ascent Base >> Repair and Diagnosis >> Engine Performance >> System >> Engine Control System (Diagnostics) (2 Of 4) >> Diagnostic Procedure with Diagnostic Trouble Code (DTC) >> DTC P0401: EGR Abnormal (EGR Amount Too Small) >> General Description >> Component Description

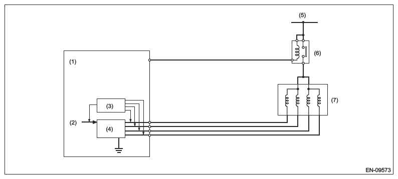
Component Description

G16350403Courtesy of SUBARU OF AMERICA, INC.
(1) Engine control module (ECM)
(2) Computer unit (CPU)
(3) Detecting circuit
(4) Switch circuit
(5) Battery voltage
(6) Main relay
(7) EGR control valve