LEMON Manuals: Even more car manuals for everyone
Home >> Subaru >> 2022 >> Outback Base >> Repair and Diagnosis (Single Page) >> Engine Performance >> Engine Control Systems >> Auto Start Stop System (Diagnostics) >> Diagnostic Procedure With Diagnostic Trouble Code (DTC) >> DTC P161D: Electric Fluid Pump (CVT) Relay Circuit Low >> Notes

DTC P161D: Electric Fluid Pump (CVT) Relay Circuit Low: Notes

1. - 

DTC detecting condition: 

Immediately at fault recognition

Trouble symptom: 

Auto Start Stop does not operate.

Wiring diagram: 

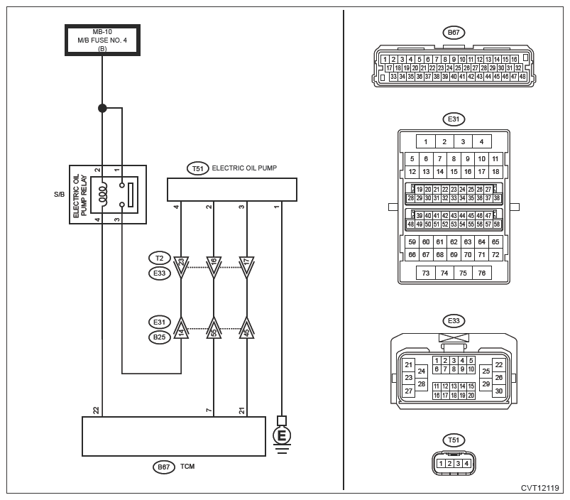
CVT control system Ref. to WIRING SYSTEM>CVT CONTROL SYSTEM>WIRING DIAGRAM>ENGINE TYPE FB .

Fuse and relay Ref. to WIRING SYSTEM>FUSE AND RELAY>LOCATION>ENGINE COMPARTMENT SIDE (ENGINE TYPE FB) .

G13630226Courtesy of SUBARU OF AMERICA, INC.

CVT control system Ref. to WIRING SYSTEM>CVT CONTROL SYSTEM>WIRING DIAGRAM>ENGINE TYPE FA .

Fuse and relay Ref. to WIRING SYSTEM>FUSE AND RELAY>LOCATION>PASSENGER ROOM SIDE .

G13630227Courtesy of SUBARU OF AMERICA, INC.
CAUTION:
  1. CHECK HARNESS BETWEEN ELECTRIC OIL PUMP CONNECTOR AND RELAY HOLDER  .
    1. Turn the ignition switch to OFF.
    2. Remove the electric oil pump relay.
    3. Disconnect the connector from electric oil pump.
    4. Turn the ignition switch to ON.
    5. Measure the voltage between electric oil pump connector and chassis ground.

      Connector and terminal 

      (T51) No. 4 (+) - Chassis ground (-):

    Is the voltage 10 V or more?

    Yes:  Repair the short circuit to power supply in the harness between electric oil pump connector and relay holder.

    No:  Go to  2 .

  2. CHECK HARNESS BETWEEN TCM AND RELAY HOLDER  .
    1. Turn the ignition switch to OFF.
    2. Disconnect the connector from TCM.
    3. Measure the resistance between TCM connector and chassis ground.

      Connector and terminal 

      ENGINE TYPE FB

      (T21) No. 22 - Chassis ground:

      ENGINE TYPE FA

      (B67) No. 22 - Chassis ground:

    Is the resistance 1 MΩ or more?

    Yes:  Go to  3 .

    No:  Repair the short circuit to ground in harness between TCM and relay holder.

  3. CHECK ELECTRIC OIL PUMP RELAY  .

    Measure the resistance between electric oil pump relay terminals.

    Terminals 

    No. 1 - No. 3:

    Is the resistance 1 MΩ or more?

    Yes:  Go to  4 .

    No:  Replace the electric oil pump relay. Ref. to AUTO START STOP (DIAGNOSTICS)>ELECTRICAL COMPONENT LOCATION .

  4. CHECK TCM OUTPUT VOLTAGE  .
    1. Connect all connectors.
    2. Install the electric oil pump relay.
    3. Turn the ignition switch to ON.
    4. Perform the active test using Subaru Select Monitor to drive the electric oil pump relay. Ref. to AUTO START STOP (DIAGNOSTICS)>ACTIVE TEST .
    5. Measure the voltage between TCM and chassis ground.

      Connector and terminal 

      ENGINE TYPE FB

      (T21) No. 22 (+) - Chassis ground (-):

      ENGINE TYPE FA

      (B67) No. 22 (+) - Chassis ground (-):

    Does the voltage change according to relay ON/OFF? (0 V ←→ 12 V)

    Yes:  The circuit has returned to a normal condition at this time. Reproduce the failure, and then perform the diagnosis again.

    NOTE:

    In this case, temporary poor contact of connector, temporary open or short circuit of harness may be the cause. 

    No:  Check for poor contact of TCM connector. Replace the TCM if no fault is found. Ref. to CONTINUOUSLY VARIABLE TRANSMISSION (TR580)>TRANSMISSION CONTROL MODULE (TCM) . Ref. to CONTINUOUSLY VARIABLE TRANSMISSION (TR690)>TRANSMISSION CONTROL MODULE (TCM) .