LEMON Manuals: Even more car manuals for everyone
Home >> Subaru >> 2021 >> Forester Base >> Repair and Diagnosis (Single Page) >> Transmission >> Automatic Trans >> Automatic Transaxle System (Diagnostics) >> Diagnostic Procedure With Diagnostic Trouble Code (DTC) >> DTC P0841: Transmission Fluid Pressure Sensor/Switch "A" Circuit Range/Performance >> Notes

DTC P0841: Transmission Fluid Pressure Sensor/Switch "A" Circuit Range/Performance: Notes

1. - 

DTC detecting condition: 

Detected when two consecutive driving cycles with fault occur.

Trouble symptom: 

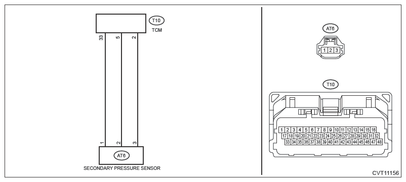
Wiring diagram: 

CVT control system Ref. to WIRING SYSTEM>CVT CONTROL SYSTEM .

G13228339Courtesy of SUBARU OF AMERICA, INC.
CAUTION:
  • Before performing diagnosis, record the freeze frame data.
  • Use CHECK BOARD when measuring the TCM terminal voltage and resistance.
  • After servicing or replacing faulty parts, perform the last step of the basic diagnostic procedure. Ref. to TRANSMISSION (DIAGNOSTICS)>BASIC DIAGNOSTIC PROCEDURE .
  1. CHECK DTC  .

    Read the DTC using Subaru Select Monitor. Ref. to TRANSMISSION (DIAGNOSTICS)>DIAGNOSTIC TROUBLE CODE (DTC) .

    Besides DTC P0841 and P0867, is DTC P0842 or P0843 displayed?

    Yes  : Perform the diagnosis according to DTCs other than P0841 and P0867. Ref. to TRANSMISSION (DIAGNOSTICS)>Diagnostic Trouble Code (DTC)>LIST .

    No  : Go to  2 .

  2. CHECK DTC  .

    Read the DTC using Subaru Select Monitor. Ref. to TRANSMISSION (DIAGNOSTICS)>DIAGNOSTIC TROUBLE CODE (DTC) .

    Besides DTC P0841 and P0867, is DTC P0746 or P0747 displayed?

    Yes  : Perform the diagnosis according to DTC P0867. Ref. to TRANSMISSION (DIAGNOSTICS)>Diagnostic Procedure with Diagnostic Trouble Code (DTC)>DTC P0867: TRANSMISSION FLUID PRESSURE .

    No  : Go to  3 .

  3. CHECK INPUT SIGNAL FOR TCM  .
    1. Turn the ignition switch to ON.
    2. Read the data of [secondary pressure sensor voltage.] using Subaru Select Monitor. (While shaking the secondary pressure sensor harness) Ref. to TRANSMISSION (DIAGNOSTICS)>DATA MONITOR .

    Is the value of [secondary pressure sensor voltage.] 0.39 - 0.61 V?

    Yes  : Go to  11 .

    No  : Go to  4 .

  4. CHECK HARNESS  .
    1. Turn the ignition switch to OFF.
    2. Disconnect the TCM connector.
    3. Disconnect the secondary pressure sensor connector.
    4. Measure the resistance between TCM connector and secondary pressure sensor connector.

    Connector & terminal 

    (T10) No. 2 - (AT6) No. 3:

    (T10) No. 5 - (AT6) No. 2:

    (T10) No. 33 - (AT6) No. 1:

    Is the resistance less than 1 Ω?

    Yes  : Go to  5 .

    No  : Repair the open circuit of harness.

  5. CHECK HARNESS  .

    Measure the resistance between TCM connectors.

    Connector & terminal 

    (T10) No. 2 - (T10) No. 33:

    (T10) No. 5 - (T10) No. 2:

    (T10) No. 33 - (T10) No. 5:

    Is the resistance 1 MΩ or more?

    Yes  : Go to  6 .

    No  : Repair the short circuit of harness.

  6. CHECK HARNESS  .

    Measure the resistance between TCM connector and transmission body.

    Connector & terminal 

    (T10) No. 2 - Transmission body:

    (T10) No. 5 - Transmission body:

    (T10) No. 33 - Transmission body:

    Is the resistance 1 MΩ or more?

    Yes  : Go to  7 .

    No  : Repair the short circuit of harness.

  7. CHECK POWER SUPPLY FOR SECONDARY PRESSURE SENSOR  .
    1. Turn the ignition switch to ON.
    2. Measure the voltage between TCM connectors.

    Connector & terminal 

    (T10) No. 33 (+) - (T10) No. 2 (-):

    Is the voltage 4.6 - 5.4 V?

    Yes  : Go to  8 .

    No  : Check for poor contact of connector, and if no fault is found, replace the TCM. Ref. to CONTINUOUSLY VARIABLE TRANSMISSION (TR580)>TRANSMISSION CONTROL MODULE (TCM) .

  8. CHECK POWER SUPPLY FOR SECONDARY PRESSURE SENSOR  .
    1. Turn the ignition switch to OFF.
    2. Connect the secondary pressure sensor connector.
    3. Turn the ignition switch to ON.
    4. Measure the voltage between TCM connectors.

    Connector & terminal 

    (T10) No. 33 (+) - (T10) No. 2 (-):

    Is the voltage 4.6 - 5.4 V?

    Yes  : Go to  9 .

    No  : Replace the secondary pressure sensor. Ref. to CONTINUOUSLY VARIABLE TRANSMISSION (TR580)>SECONDARY PRESSURE SENSOR .

  9. CHECK SECONDARY PRESSURE SENSOR OUTPUT  .

    Measure the voltage between TCM connectors.

    Connector & terminal 

    (T10) No. 5 (+) - (T10) No. 2 (-):

    Is the voltage 0.39 - 0.61 V?

    Yes  : Check for poor contact of connector, and if no fault is found, replace the TCM. Ref. to CONTINUOUSLY VARIABLE TRANSMISSION (TR580)>TRANSMISSION CONTROL MODULE (TCM) .

    No  : Go to  10 .

  10. CHECK CONNECTOR  .
    1. Turn the ignition switch to OFF.
    2. Disconnect the TCM connector.
    3. Disconnect the secondary pressure sensor connector.
    4. Check the TCM connector (T10) and the secondary pressure sensor connector (AT6).

    Is the check result OK?

    Yes  : Go to  11 .

    No  : Repair the connector, or replace harness.

  11. CHECK TRANSMISSION FLUID  .
    1. Connect all connectors.
    2. Check the amount of ATF. Ref. to CONTINUOUSLY VARIABLE TRANSMISSION (TR580)>CVTF>INSPECTION .

    Is the check result OK?

    Yes  : Go to  12 .

    No  : Adjust the amount of ATF. Go to  12 .

  12. CHECK INPUT SIGNAL FOR TCM  .
    1. Start the engine.
    2. Warm up until the ATF temperature reaches to 40 - 70°C (104 - 158°F).
    3. Depress the brake pedal and move the select lever to each range at an interval of five seconds.
      NOTE: Move the select lever in the following order: "P" - "R" - "N" - "D" - "N" - "R" -
    4. Stabilize the engine speed at idle.
    5. Read the data of [Actual Secondary Pressure] using Subaru Select Monitor. Ref. to TRANSMISSION (DIAGNOSTICS)>DATA MONITOR .

    Is [Actual Secondary Pressure] 0.5 - 1.5 MPa?

    Yes  : Go to  13 .

    No  : Replace the secondary pressure sensor. Ref. to CONTINUOUSLY VARIABLE TRANSMISSION (TR580)>SECONDARY PRESSURE SENSOR .

  13. CHECK INPUT SIGNAL FOR TCM  .
    1. Shift the select lever to "P" range.
    2. Keep the engine speed at 3, 000 rpm.
    3. Read the data of [Actual Secondary Pressure] using Subaru Select Monitor. Ref. to TRANSMISSION (DIAGNOSTICS)>DATA MONITOR .

    Is [Actual Secondary Pressure] 1.5 - 2.5 MPa? And is the difference between the actual oil pressure and the value measured in Step 12 0.2 MPa or more?

    Yes  : Go to  14 .

    No  : Replace the secondary pressure sensor. Ref. to CONTINUOUSLY VARIABLE TRANSMISSION (TR580)>SECONDARY PRESSURE SENSOR .

  14. CHECK FREEZE FRAME DATA  .
    1. Turn the ignition switch to OFF.
    2. Check the recorded freeze frame data for DTC P0867. Ref. to TRANSMISSION (DIAGNOSTICS)>FREEZE FRAME DATA .
    3. Apply the values of [Actual Secondary Pressure] and [Secondary Actual Current] recorded in the freeze frame data onto the graph shown in the following figure, and judge if either low-voltage malfunction or high-voltage malfunction occurs.
    G13874964Courtesy of SUBARU OF AMERICA, INC.
    NOTE: Symptom that the DTC P0867 illuminates can be classified into 2 patterns.
    • Low-voltage malfunction: detected due to insufficient oil pressure
    • High-voltage malfunction: detected due to excessive oil pressure

    Was the detected symptom low-voltage malfunction?

    Yes  : Replace the transmission assembly. Ref. to CONTINUOUSLY VARIABLE TRANSMISSION (TR580)>TRANSMISSION ASSEMBLY .

    No  : Go to  15 .

  15. CHECK TCM INPUT SIGNAL (STALL TEST)  .
    1. Lift up the vehicle.
    2. Start the engine.
    3. Apply the parking brake.
    4. Set the select lever to "D" range.
    5. Depress the brake pedal firmly.
    6. Slowly open the accelerator fully, and stabilize the engine speed.
    7. Read the data of [Actual Secondary Pressure] using Subaru Select Monitor. Ref. to TRANSMISSION (DIAGNOSTICS)>DATA MONITOR .

    Is the value of [Actual Secondary Pressure] 6.0 MPa or more?

    Yes  : Replace the control valve body. Ref. to CONTINUOUSLY VARIABLE TRANSMISSION (TR580)>CONTROL VALVE BODY .

    No  : Replace the transmission assembly. Ref. to CONTINUOUSLY VARIABLE TRANSMISSION (TR580)>TRANSMISSION ASSEMBLY .