LEMON Manuals: Even more car manuals for everyone
Home >> Subaru >> 2002 >> Outback Base, 4D Sedan >> Repair and Diagnosis >> Transmission >> Transmission Control Systems >> A/T & M/T Control Systems >> AT Shift Lock System >> Inspection >> At Shift Lock Control Module Power Supply And Ground Line

At Shift Lock Control Module Power Supply And Ground Line

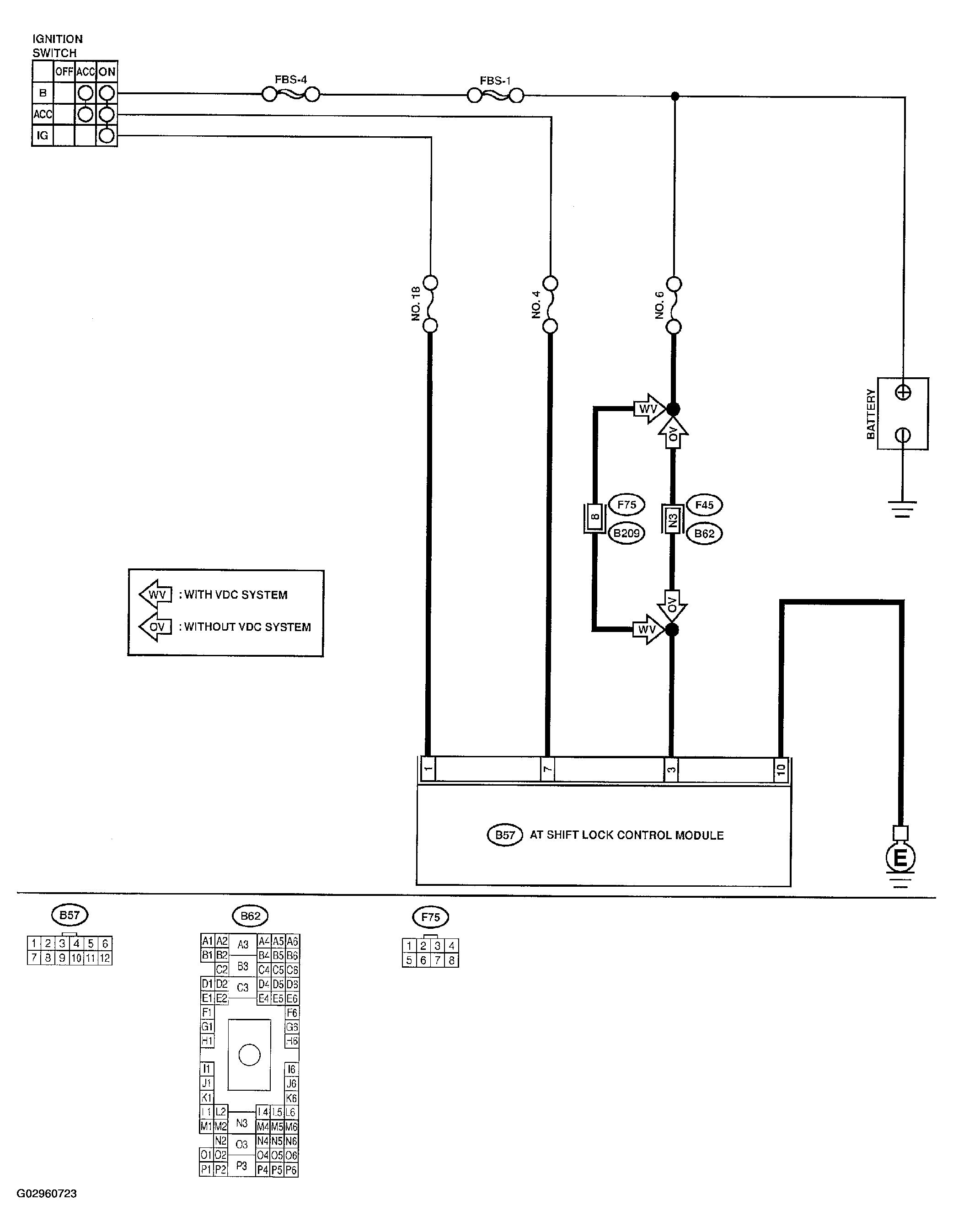
Fig 1: AT Shift Lock Control Module Power Supply & Ground Line Wiring Diagram
G02960723Courtesy of SUBARU OF AMERICA, INC.
Fig 2: AT Shift Lock Control Module Power Supply & Ground Line Inspection Chart
G02960724Courtesy of SUBARU OF AMERICA, INC.