LEMON Manuals: Even more car manuals for everyone
Home >> Smart >> 2019 >> Fortwo 2D Convertible >> Repair and Diagnosis (Single Page) >> Electrical >> Charging Systems >> Electrical System, Equipment & Instruments - 453 Chassis - 1 Of 3 >> Basic Knowledge >> Combustion Engine Fuse And Relay Module Assignment - GF54.15-P-1256-42KJ

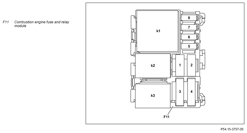
Combustion Engine Fuse And Relay Module Assignment - GF54.15-P-1256-42KJ

MODEL 453 

Fig 1: Combustion Engine Fuse Module - Model 453.0 (Except 453.091), 453.3 (Except 453.391), 453.4 (Except 453.491)
G12093896Courtesy of MERCEDES-BENZ USA
Fuse Identification Circuit Line ID (line fused) Fused function Rating in amperes (A)
f1 Signal, refrigerant compressor clutch 0.5 WH Valid with CODE I01 (Air conditioning system) or CODE I77 (Manual air conditioning system) 
Internal combustion engine relay module (K40)
Diode
f2 30 2.5 RD Valid for USA 
Supply for vacuum pump relay
Diode
f3 30 0.75 PKBN/0.75 GNBN Fuel pump with fill level sensor and temperature sensor (M3/3) 20
f4 30 1.5 RDBN Circuit 30 fused end sleeve supply (Z50/32) 25
f5 87 0.75 WHBN Supply for connector sleeves for circuit 87 (Z7/111 and Z7/112) 15
f6 30 0.5 RD Valid with CODE I01 (Air conditioning system) or CODE I77 (Manual air conditioning system) 
Refrigerant compressor relay (K40k1)
15
f7 30 0.75 RDBN Fan (M4/4) through fan relay (F11 k2) 10
f8 30 0.5 RD Valid with CODE 429 (twinamic) 
Dual clutch transmission control unit (N15/13)
10
Fig 2: Combustion Engine Fuse Module - Model 453.091/391/491
G12093896Courtesy of MERCEDES-BENZ USA
Fuse Identification Circuit Line ID (line fused) Fused function Rating in amperes (A)
f1 - - Spare -
f2 30 1.5 GYBN Transmission mode recognition sensor (B56/1), electric drive control unit (N127) 15
f3 30 5.0 RD Electric vehicle drive motor fan relay (K9/3) 40
f4 30 1.5 RDBN Battery cooling system coolant pumps relay (F11k4) 30
f5 30 0.75 GNWH/0.75 GNBN Battery cooling system coolant pump (M43/1), (M43/2) 15
f6 30 2 x 0.5 RD Battery management system control unit (N82/2), electric drive control unit (N127) 5
f7 30 2.0 WH Power electronics control unit power supply connector sleeve supply (Z99/15) 20
f8 30 0.75 WHBN Circuit 87 supply connector sleeve (Z7/111) 15