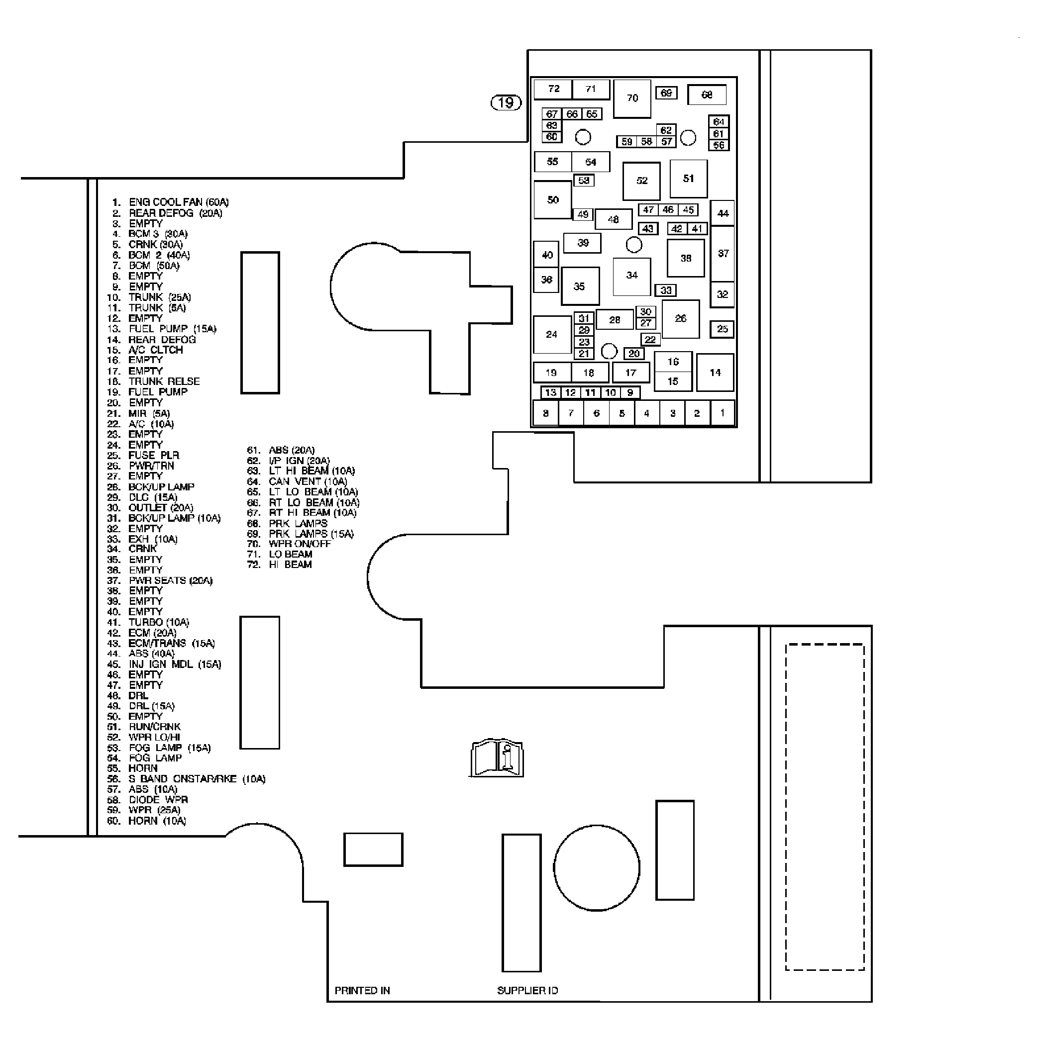
Fuse Block - Underhood Label (LNF w/M82): Notes
Fuse Block - Underhood Label Usage
| No. | Device | Rating | Description |
|---|---|---|---|
| 1 | ENG COOL FAN Fuse (LNF) | 60A | Engine Cooling Fan |
| 2 | REAR DEFOG Fuse | 20A | Rear Window Defog Relay |
| 3 | EMPTY | - | Not Used |
| 4 | BCM 3 Fuse | 30A | Body Control Module (BCM) |
| 5 | CRNK Fuse | 30A | Crank Relay |
| 6 | BCM 2 Fuse | 40A | Body Control Module (BCM) |
| 7 | BCM Fuse | 50A | Body Control Module (BCM) |
| 8 | COOL FAN 2 Fuse (LE5) | 30A | Cooling Fan 2 Relay |
| 9 | EMPTY | - | Not Used |
| 10 | TRUNK Fuse | 25A | Trunk Release Relay |
| 11 | TRUNK Fuse | 5A | Trunk Release Relay |
| 12 | EMPTY | - | Not Used |
| 13 | FUEL PUMP Fuse | 15A | Fuel Pump Relay |
| 14 | REAR DEFOG Relay | - | Defogger Grid |
| 15 | A/C CLTCH Relay | - | Engine Control Module (ECM), A/C Compressor Clutch |
| 16-17 | EMPTY | - | Not Used |
| 18 | TRUNK RELSE Relay | - | Trunk Lock Actuator, Body Control Module (BCM) |
| 19 | FUEL PUMP Relay | - | Fuel Pump and Sender Assembly |
| 20 | EMPTY | - | Not Used |
| 21 | MIR Fuse | 5A | Power Mirror Switch |
| 22 | A/C Fuse | 10A | A/C Clutch Relay |
| 23 | EMPTY | - | Not Used |
| 24 | COOL FAN 2 Relay (LE5) | - | Engine Cooling Fan, Engine Control Module (ECM) |
| 25 | FUSE PLR | - | Not Used |
| 26 | PWR/TRN Relay | - | EMISSIONS, INJ MOD, Engine Control Module (ECM) Fuses |
| 27 | EMPTY | - | Not Used |
| 28 | BCK/UP LAMP Relay (M82) | - | Backup Lamp Fuse |
| 29 | DLC Fuse | 15A | Data Link Connector Fuse |
| 30 | OUTLET Fuse | 20A | Auxiliary Power Outlet |
| 31 | BCK/UP LAMP Fuse (M82) | 10A | Backup Lamp and Backup Lamp Switch |
| 32 | EMPTY | 20A | Not Used |
| 33 | EXH Fuse | 10A | Heated Oxygen Sensor 1, 2, Mass Air Flow Sensor, Clutch Apply Sensor (MA5), Evaporative Emission Canister Purge Solenoid |
| 34 | CRNK Relay | - | Starter Motor, Engine Control Module (ECM) |
| 35-36 | EMPTY | - | Not Used |
| 37 | PWR SEATS Fuse (AF2) | 20A | Seat Adjuster Switch - Driver |
| 38-39 | EMPTY | - | Empty |
| 40 | COOL FAN (LE5) | 30A | Engine Cooling Fan |
| 41 | TURBO Fuse (LNF) | 10A | Camshaft Position (CMP) Actuator Solenoid Exhaust, Camshaft Position (CMP) Actuator Solenoid Intake, Turbocharger Wastegate Solenoid (LNF), and Turbocharger Bypass Valve Control Solenoid (LNF) |
| 42 | ECM Fuse (LNF) | 20A | Engine Control Module |
| ECM Fuse (LE5) | 15A | ||
| 43 | ECM/TRANS Fuse | 15A | Engine Control Module (ECM), Transmission Control Module (TCM) |
| 44 | ABS Fuse | 40A | Electronic Brake Control Module (EBCM) |
| 45 | INJ IGN MDL Fuse (LE5) | 10A | Ignition Coils |
| INJ IGN MDL Fuse (LNF) | 15A | ||
| 46 | BCK/UP LAMP Fuse (MA5) | 10A | Back Up Lamp |
| 47 | EMPTY | - | Not Used |
| 48 | DRL Relay | - | Body Control Module (BCM) and Headlamp Low Beam - Left |
| 49 | DRL Fuse | 15A | Daylight Running Lights Relay |
| 50 | COOL FAN Relay (LE5) | - | Engine Cooling Fan |
| 51 | RUN/CRNK Relay | - | Starter Motor |
| 52 | WPR LO/HI Relay | - | Wiper Motor |
| 53 | FOG LAMP Fuse (SKY/T96) | 15A | Fog Lamp Relay |
| 54 | FOG LAMP Relay | - | Fog Lamp - Left Front (SKY/T96) and Fog Lamp - Right Front (SKY/T96) |
| 55 | HORN Relay | - | Horn Switch |
| 56 | S BAND ONSTAR/RKE Fuse | 10A | Digital Radio Receiver (U2K), Remote Control Door Lock Receiver (RCDLR), and Vehicle Communication Interface Module (VCIM) (UE1) |
| 57 | ABS Fuse | 10A | Electronic Brake Control Module (EBCM) |
| 58 | DIODE WPR | - | Wiper Relay |
| 59 | WPR Fuse | 25A | Wiper Relay |
| 60 | HORN Fuse | 10A | Horn Switch |
| 61 | ABS Fuse | 20A | Electronic Brake Control Module (EBCM) |
| 62 | I/P IGN Fuse | 20A | Body Control Module (BCM) |
| 63 | LT HI BEAM Fuse | 10A | Headlamp - Left High Beam |
| 64 | CAN VENT Fuse | 10A | Evaporative Emission Canister Valve Solenoid |
| 65 | LT LO BEAM Fuse | 10A | Headlamp - Left Low Beam |
| 66 | RT LO BEAM Fuse | 10A | Headlamp - Right Low Beam |
| 67 | RT HI BEAM Fuse | 10A | Headlamp- Right High Beam |
| 68 | PRK LAMPS Relay | - | Body Control Module (BCM), License Lamp, Marker Lamp - Left Front, Marker Lamp - Left Rear, Marker Lamp - Right Front, Marker Lamp - Right Rear, Park Lamp - Left Front, Park Lamp - Right Front, Park/Turn Signal Lamp - Left Front, Park/Turn Signal Lamp - Right Front, Tail/Stop and Turn Signal Lamp - Left Outer, Tail/Stop and Turn Signal Lamp - Left Inner, Tail/Stop and Turn Signal Lamp - Right Inner, and Tail/Stop and Turn Signal Lamp - Right Outer |
| 69 | PRK LAMPS Fuse | 15A | PRK LAMPS Relay |
| 70 | WPR ON/OFF Relay | - | Windshield Wiper Motor |
| 71 | LO BEAM Relay | - | Left Low Beam Fuse, Right Low Beam Fuse, and Body Control Module (BCM) |
| 72 | HI BEAM Relay | - | Left Hi Beam Fuse, Right Hi Beam Fuse, and Body Control Module (BCM) |