LEMON Manuals: Even more car manuals for everyone
Home >> Saturn >> 2005 >> Relay AWD >> Repair and Diagnosis >> External Pages >> Different car >> Section 5 (Computer/Integrating Systems) >> Schematic and Routing Diagrams >> Body Control System Schematics

Body Control System Schematics

WARNING: This page is about a different car, the 2005 Chevrolet Malibu. However, it is still accessible from the selected car via links, so may be relevant.
Fig 1: Power, Ground, Data Link and Engine Controls References
GM1501140Courtesy of GENERAL MOTORS CORP.
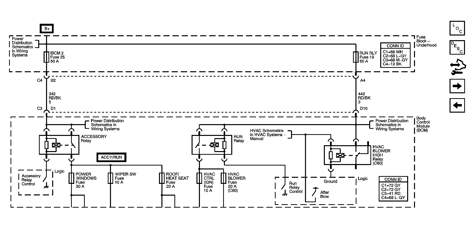
Fig 2: Accessory, HVAC Blower High and RUN Relays
GM1501141Courtesy of GENERAL MOTORS CORP.
Fig 3: ABS, A/T Shift Lock Controls, Brake Warning, Cruise Control, Door Lock/Indicator, Engine Controls and Engine Cooling References
GM1501146Courtesy of GENERAL MOTORS CORP.
Fig 4: Adjustable Pedals, Body Rear End, Defogger, Headlights/DRL, Horns and Wiper/Washer References
GM1501151Courtesy of GENERAL MOTORS CORP.
Fig 5: Lighting System References Continued
GM1501153Courtesy of GENERAL MOTORS CORP.