LEMON Manuals: Even more car manuals for everyone
Home >> Pontiac >> 2009 >> Torrent Base, AWD >> Repair and Diagnosis >> External Pages >> Different car >> Section 168 (Data Communication System) >> Schematic and Routing Diagrams >> Body Control System Schematics

Body Control System Schematics

WARNING: This page does not describe the selected car, but rather 6 other vehicles, including the 2009 GMC Savana Special, 2009 GMC Savana Camper Special, 2009 GMC Savana, 2009 Chevrolet RV Cutaway, and 2009 Chevrolet Cutaway. However, it is still accessible from the selected car via links, so may be relevant.
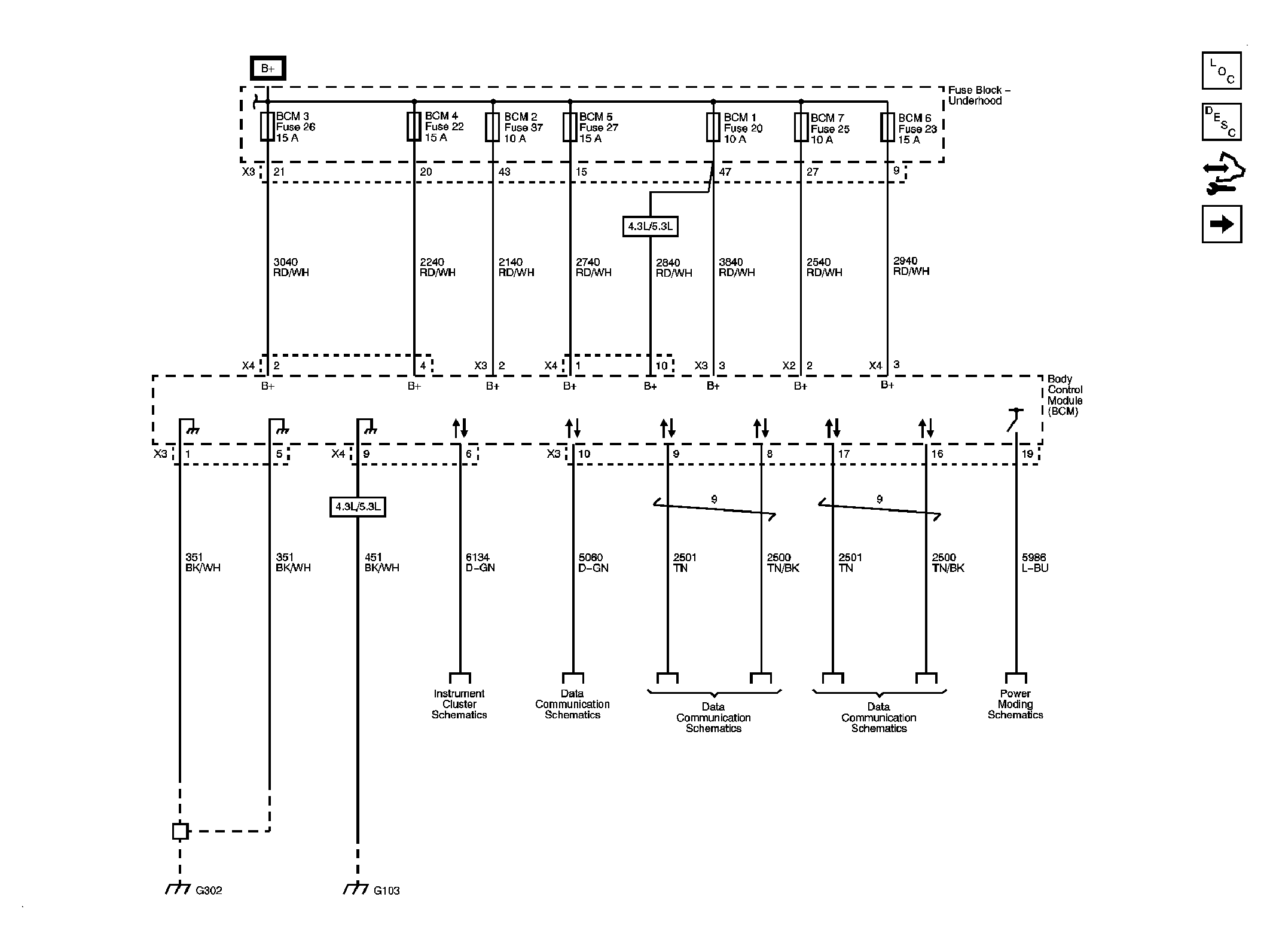
Fig 1: BCM Power, Ground and Serial Data Schematic
GM2080089Courtesy of GENERAL MOTORS CORP.
Fig 2: BCM Inputs and Outputs Schematic (1 of 4)
GM2080095Courtesy of GENERAL MOTORS CORP.
Fig 3: BCM Inputs and Outputs Schematic (2 of 4)
GM2080104Courtesy of GENERAL MOTORS CORP.
Fig 4: BCM Inputs and Outputs Schematic (3 of 4)
GM2080110Courtesy of GENERAL MOTORS CORP.
Fig 5: BCM Inputs and Outputs Schematic (4 of 4)
GM2080116Courtesy of GENERAL MOTORS CORP.