LEMON Manuals: Even more car manuals for everyone
Home >> Pontiac >> 2009 >> G8 Base >> Repair and Diagnosis >> External Pages >> Different car >> Section 54 (Data Communication System) >> Schematic and Routing Diagrams >> Body Control System Schematics

Body Control System Schematics

WARNING: This page is about a different car, the 2008 Pontiac G8. However, it is still accessible from the selected car via links, so may be relevant.
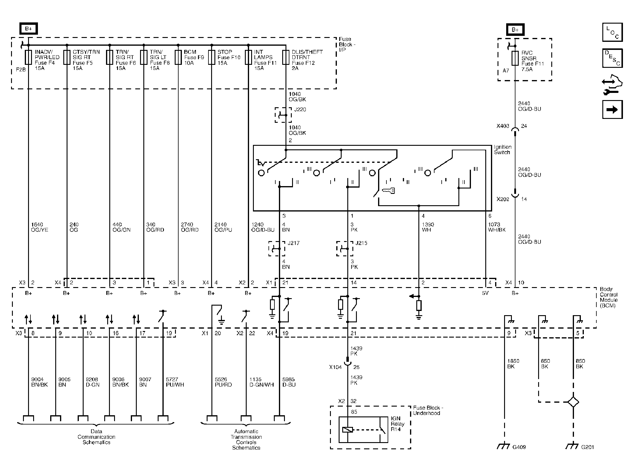
Fig 1: Module Power, Ground, Serial Data, and Transmission Subsystem References
GM2034122Courtesy of GENERAL MOTORS CORP.
Fig 2: Cruise Control, Exterior Lights, Interior Lights, Horn, Door Lock, Release System, Hydraulic Brakes, and Antilock Brake Subsystem References
GM2074590Courtesy of GENERAL MOTORS CORP.
Fig 3: Headlight, Wiper/Washer, Fog Light, Exterior Lights, and Starting and Charging Subsystem References
GM2074594Courtesy of GENERAL MOTORS CORP.
Fig 4: Instrument Cluster, Door Lock, Heated/Cooled Seat, Immobilizer, and Power Moding Subsystem References
GM2074596Courtesy of GENERAL MOTORS CORP.