LEMON Manuals: Even more car manuals for everyone
Home >> Pontiac >> 2009 >> G8 Base >> Repair and Diagnosis >> External Pages >> Different car >> Section 32 (Anti-Lock Brake System, Traction Control System & Stability Control System) >> Schematic and Routing Diagrams >> Antilock Brake System Schematics

Antilock Brake System Schematics

WARNING: This page is about a different car, the 2008 Pontiac G8. However, it is still accessible from the selected car via links, so may be relevant.
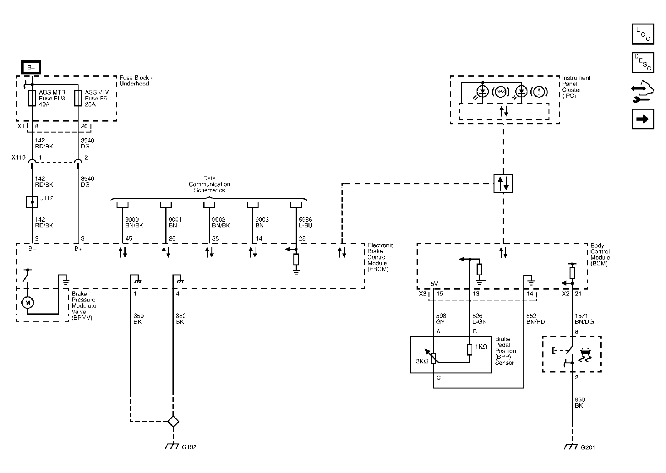
Fig 1: Module Power, Ground and Serial Data
GM2034114Courtesy of GENERAL MOTORS CORP.
Fig 2: Wheel Speed Sensors
GM2034116Courtesy of GENERAL MOTORS CORP.
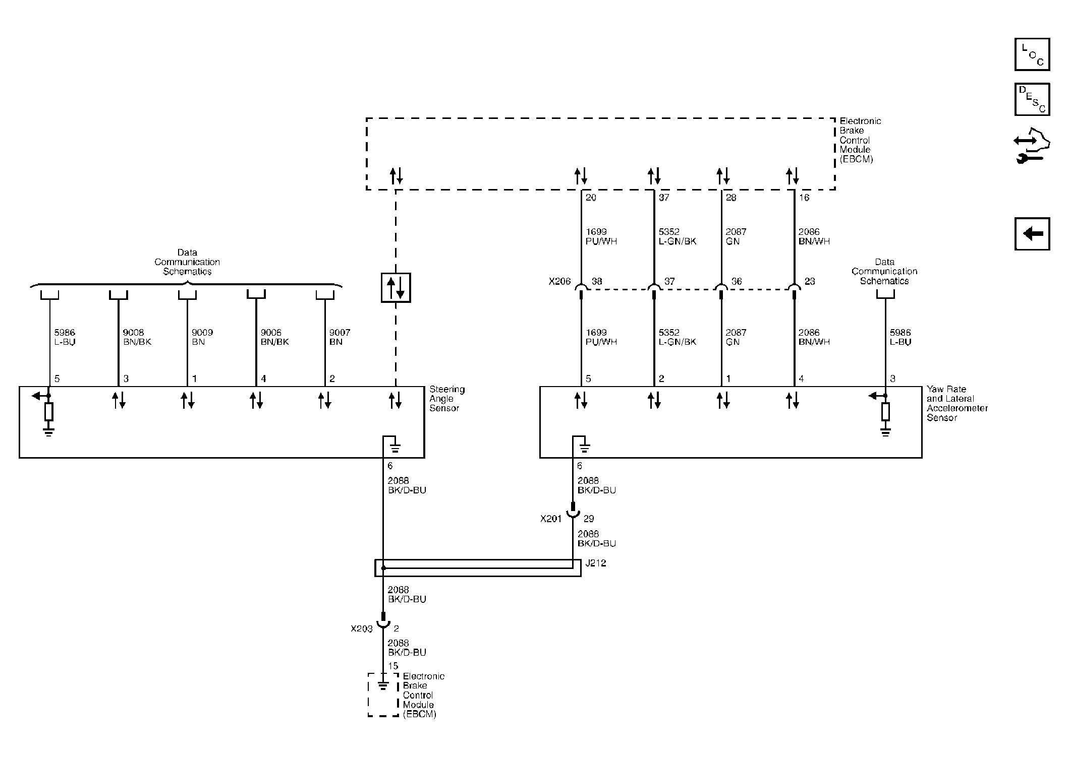
Fig 3: Electronic Stability Program Sensors
GM2034113Courtesy of GENERAL MOTORS CORP.