LEMON Manuals: Even more car manuals for everyone
Home >> Pontiac >> 2008 >> Grand Prix Base >> Repair and Diagnosis >> Accessories & Equipment >> Infotainment >> Cellular System, Entertainment System, And Navigation System >> Schematic and Routing Diagrams >> Radio/Navigation System Schematics

Radio/Navigation System Schematics

Fig 1: Power, Ground, and References Schematic
GM1888793Courtesy of GENERAL MOTORS CORP.
Fig 2: Radio to Speakers Schematic - UW6
GM1888796Courtesy of GENERAL MOTORS CORP.
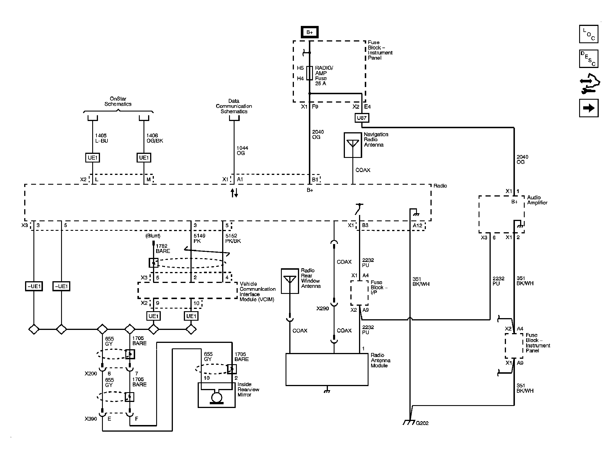
Fig 3: Audio Signal Communication Schematic - U87
GM1888797Courtesy of GENERAL MOTORS CORP.
Fig 4: Speakers - Front Schematic - U87
GM1888801Courtesy of GENERAL MOTORS CORP.
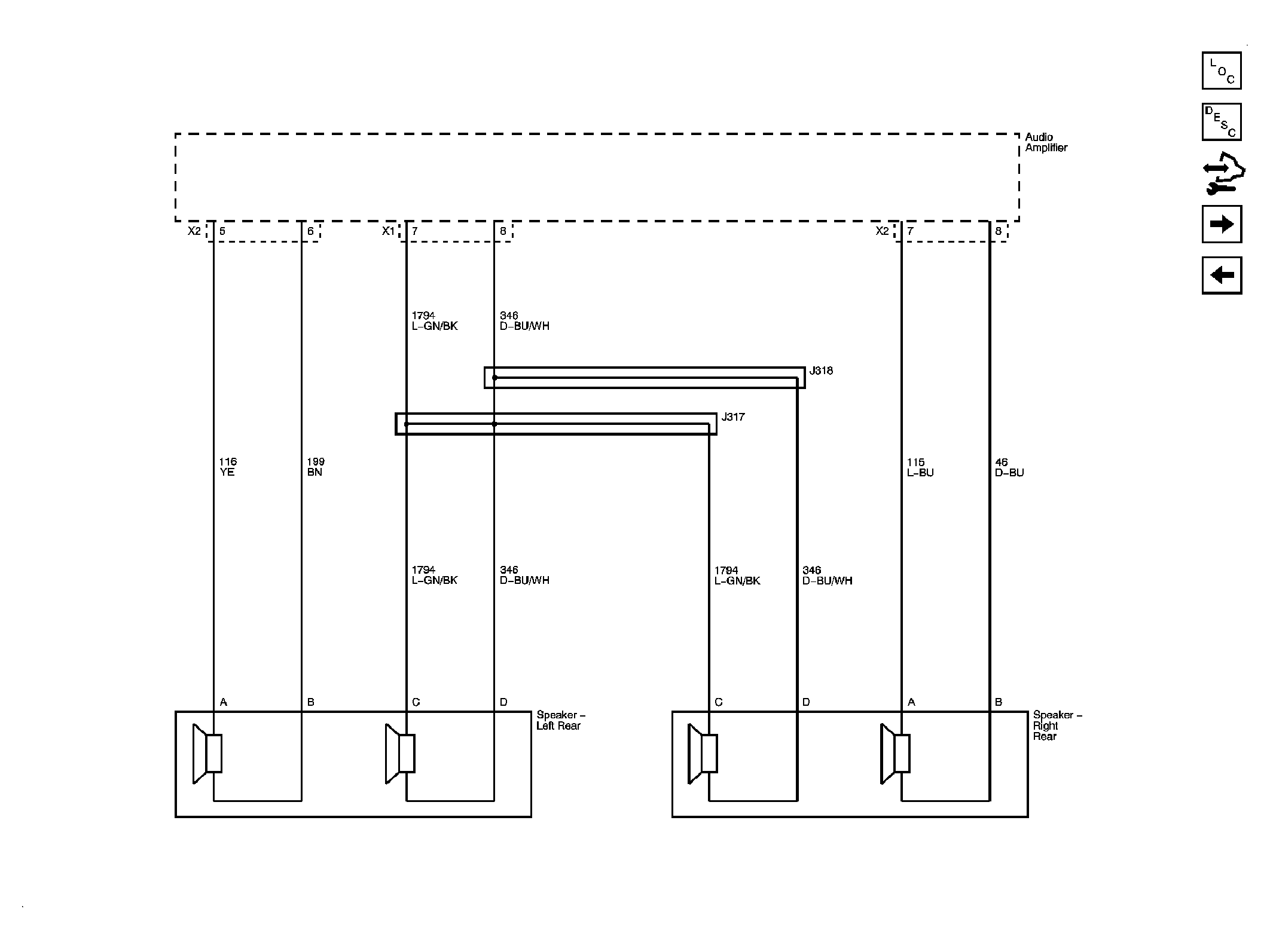
Fig 5: Speakers - Rear Schematic - U87
GM1888805Courtesy of GENERAL MOTORS CORP.
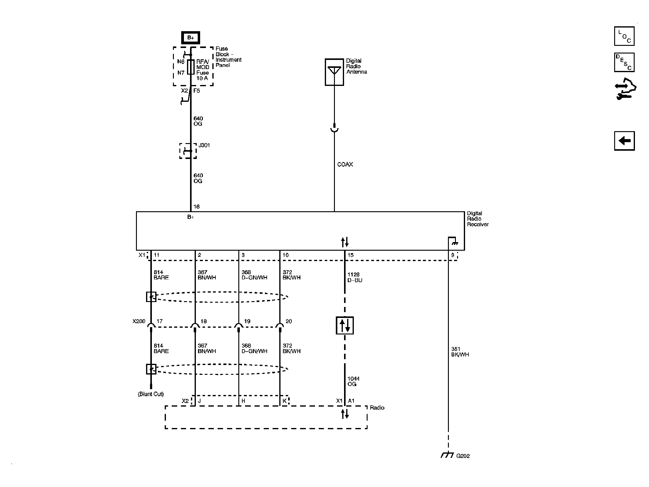
Fig 6: Satellite Radio Schematic - U2K
GM1888806Courtesy of GENERAL MOTORS CORP.