LEMON Manuals: Even more car manuals for everyone
Home >> Pontiac >> 2007 >> Vibe Automatic >> Repair and Diagnosis >> Accessories & Equipment >> Infotainment >> Cellular System, Entertainment System, And Navigation System >> Schematic and Routing Diagrams >> Radio/Navigation System Schematics

Radio/Navigation System Schematics

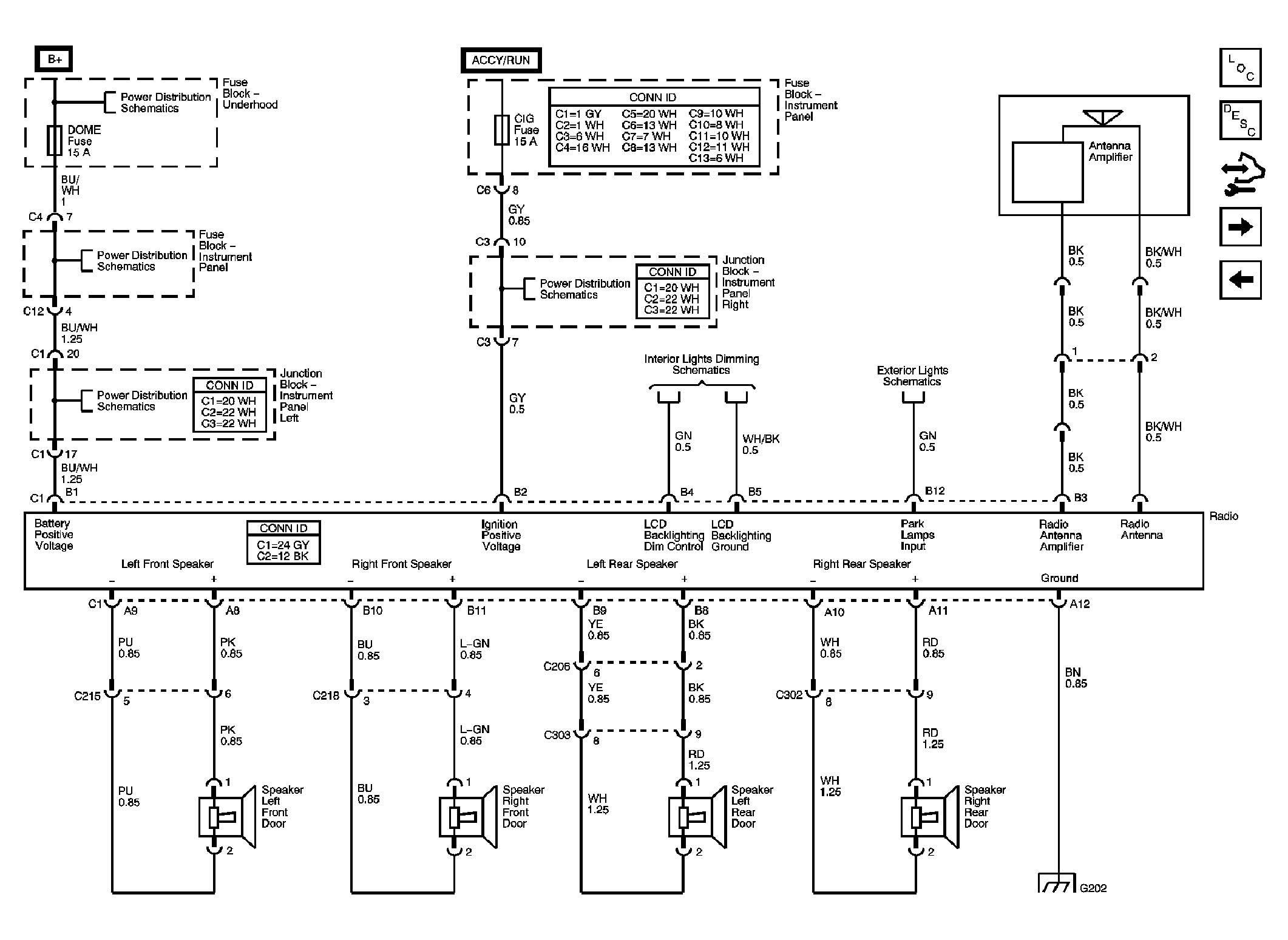
Fig 1: Radio U1A, UZ6
GM1725945Courtesy of GENERAL MOTORS CORP.
Fig 2: Radio - UW4
GM1426723Courtesy of GENERAL MOTORS CORP.
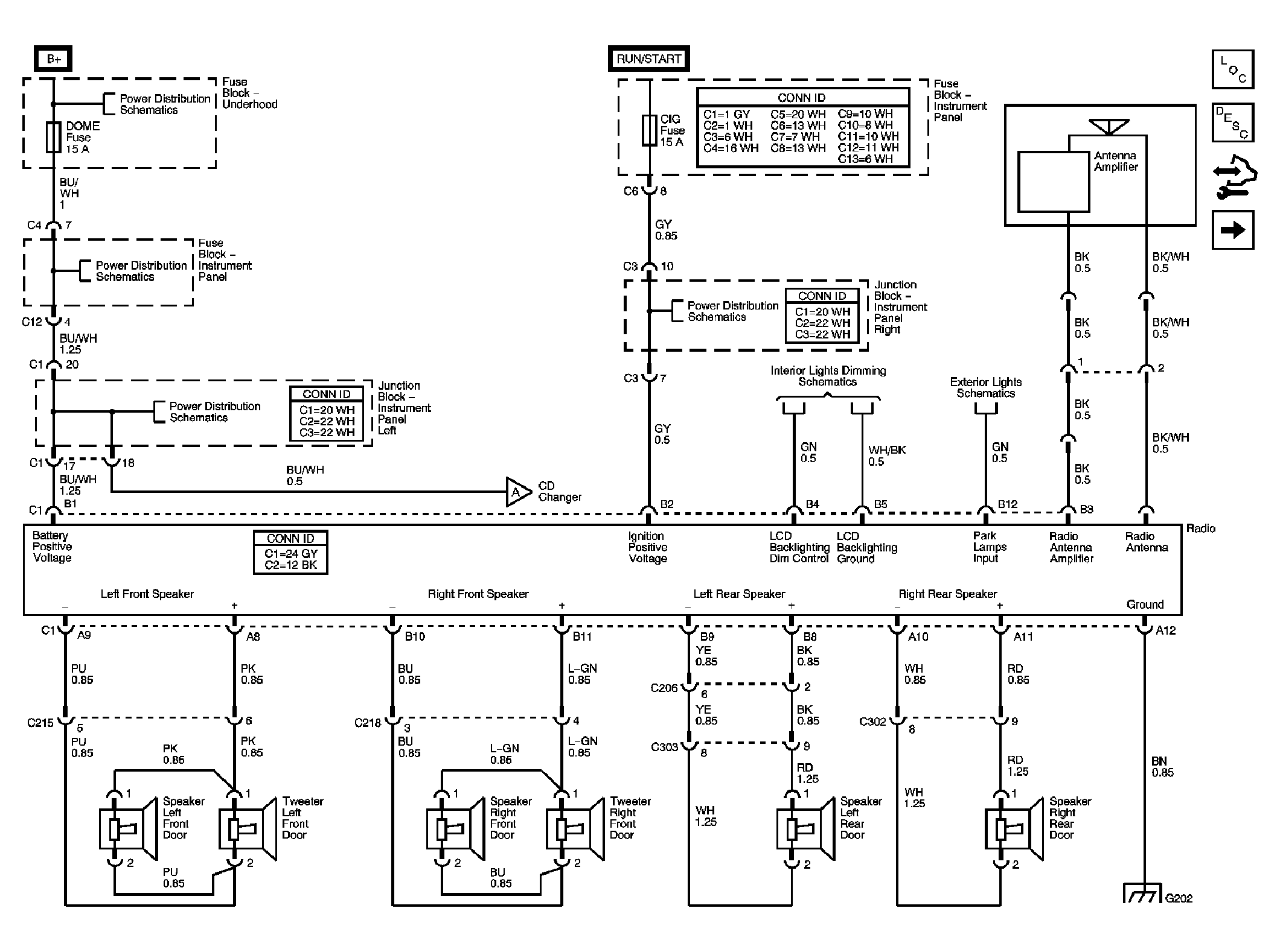
Fig 3: Radio Monsoon U1P, U6S
GM1426725Courtesy of GENERAL MOTORS CORP.
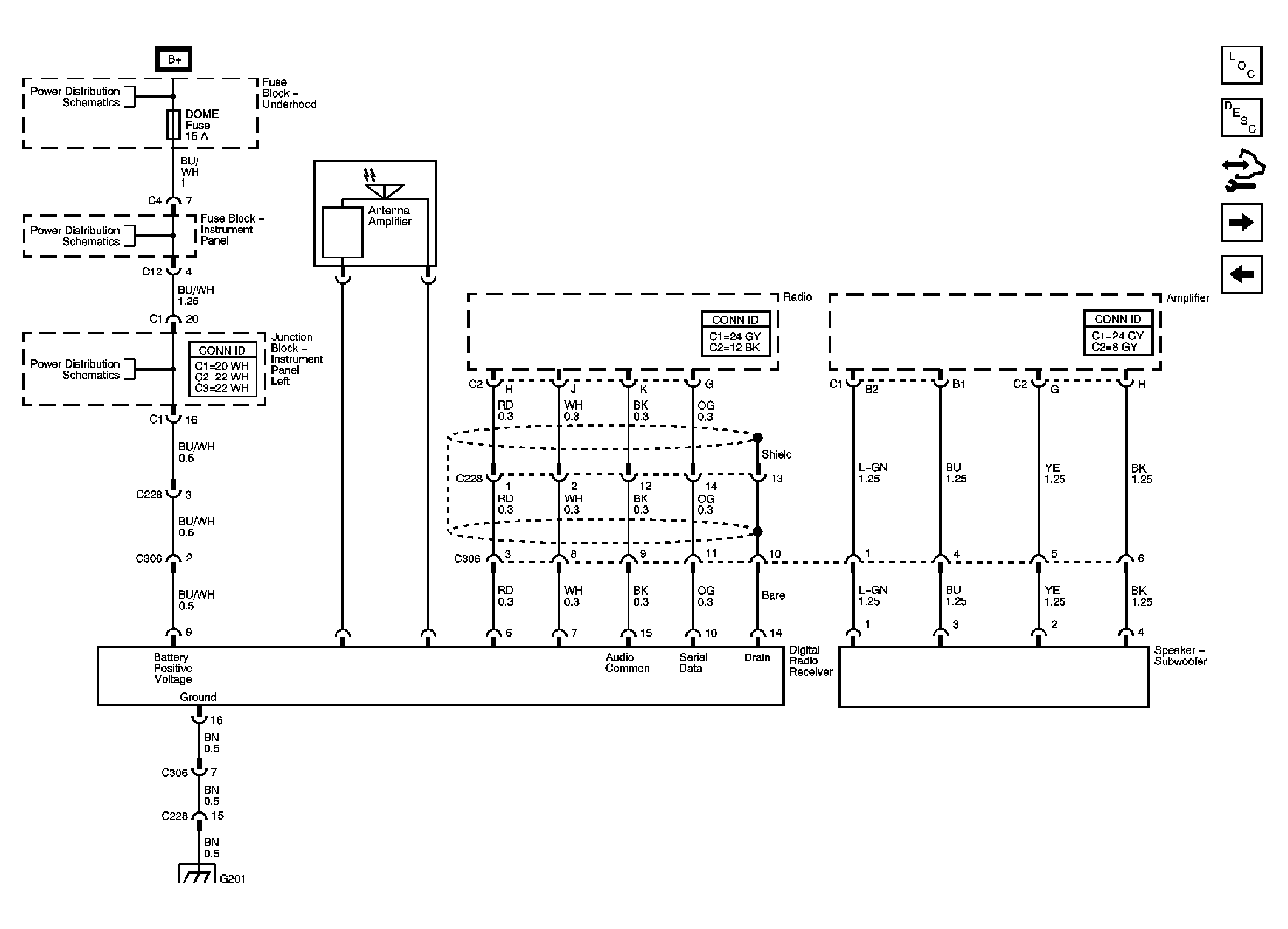
Fig 4: Digital Radio Receiver and Subwoofer U1P, U2K, U6S
GM1426726Courtesy of GENERAL MOTORS CORP.
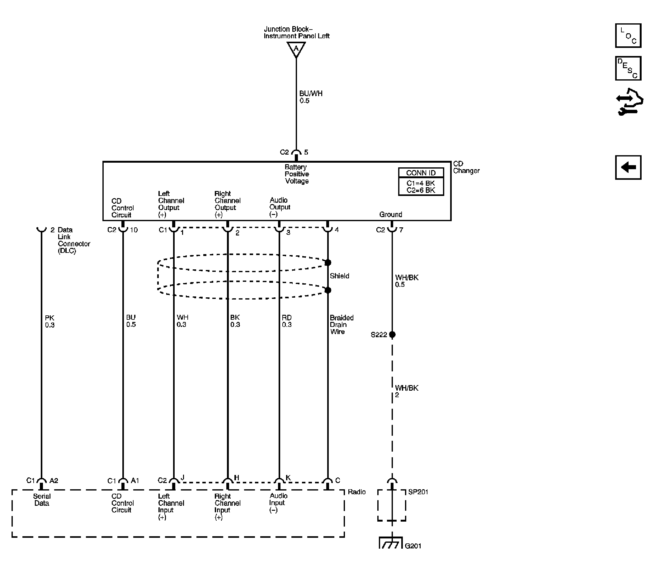
Fig 5: Radio and Remote CD Changer U1A, UC6
GM1725951Courtesy of GENERAL MOTORS CORP.