LEMON Manuals: Even more car manuals for everyone
Home >> Pontiac >> 2007 >> Grand Prix Base >> Repair and Diagnosis >> External Pages >> Different car >> Section 40 (Keyless Entry System And Remote Functions) >> Schematic and Routing Diagrams >> Remote Function Schematics

Remote Function Schematics

WARNING: This page is about a different car, the 2007 Buick LaCrosse and 2007 Buick Allure. However, it is still accessible from the selected car via links, so may be relevant.
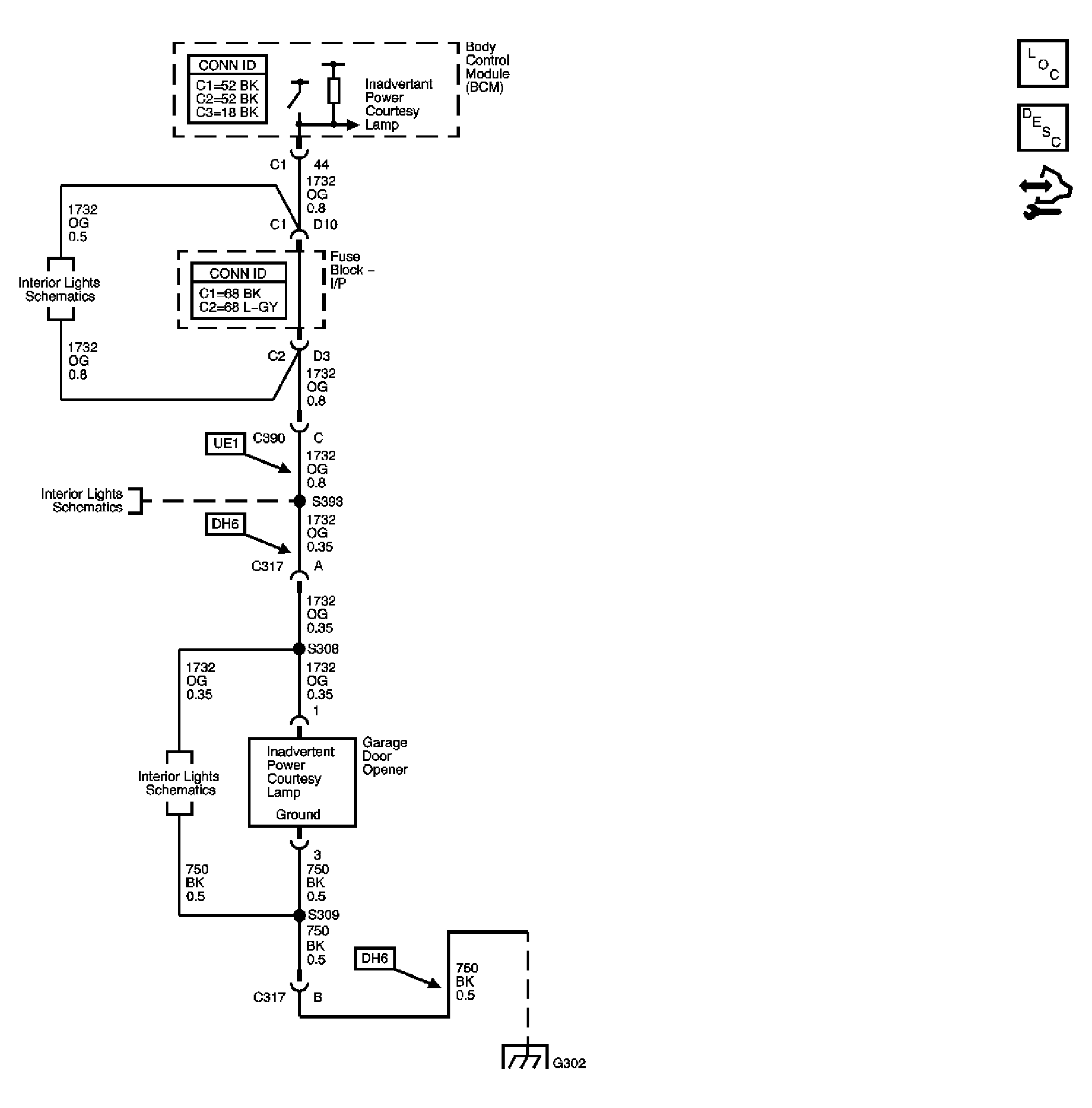
Fig 1: Garage Door Opener Schematic
GM1803235Courtesy of GENERAL MOTORS CORP.
Fig 2: Keyless Door Entry Schematic
GM1803240Courtesy of GENERAL MOTORS CORP.