LEMON Manuals: Even more car manuals for everyone
Home >> Pontiac >> 1990 >> LeMans Base >> Repair and Diagnosis >> Engine Performance >> System >> Engine Controls - Basic Testing >> Fuel System >> Fuel Pressure

Fuel Pressure

WARNING: ALWAYS relieve fuel pressure before disconnection any fuel injection-related component. DO NOT allow fuel to contact engine or electrical components.

Fuel Pressure Release

To remove any residual system pressure, remove fuel pump fuse (No. 16, 20-amp) from fuse block in passenger compartment. Start and run engine until engine stalls. Engage starter again for about 3 seconds. Turn ignition off and install fuse.

Fuel Pump Relay

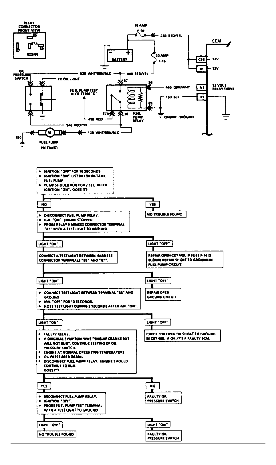
Use circuit wiring diagram and diagnostic flow charts (A-5) and (A-7) to diagnose and service fuel pump relay faults. See Fig 1 -3.

Checking Fuel Pressure

1) With fuel pressure relieved, remove air cleaner and gasket. Remove flexible steel fuel line from between throttle body and fuel filter. When removing fuel line, always use 2 wrenches to prevent damage. Install fuel pressure gauge between throttle body and fuel filter.

2) Start vehicle and observe fuel pressure reading. Fuel pressure should be 9-13 psi (.6-.9 kg/cm2 ). If fuel pressure is not within specification, refer to diagnostic flow charts (A-5) and (A-7) in this article. See Fig 1 -3.

3) Release fuel pressure as described in step 1). Remove fuel pressure gauge. To check fuel pump volume, insert end of fuel line into a container. Apply battery voltage to terminal "G" of the ALDL test connector. See Fig 4 .

4) Fuel pump should supply at least 1.0 pt. (.8 L) in 30 seconds. If flow is less than specified, check for restricted fuel line. If fuel line is okay, replace fuel pump. Install steel flex line between fuel filter and throttle body. Start engine and check for leaks. Install air cleaner and gasket.

Fig 1: Fuel Pump Relay Diagnostic Flow Chart (A-5)
G94615Courtesy of GENERAL MOTORS CORP.
Fig 2: Fuel System Diagnostic (A-7) (1 of 2)
G94616Courtesy of GENERAL MOTORS CORP.
Fig 3: Fuel System Diagnostic (A-7) (2 of 2)
G94617Courtesy of GENERAL MOTORS CORP.
Fig 4: View of ALDL Test Connector
G90I15543Courtesy of GENERAL MOTORS CORP.