LEMON Manuals: Even more car manuals for everyone
Home >> Mitsubishi >> 2012 >> Lancer Evolution MR >> Repair and Diagnosis >> External Pages >> Different variant/trim >> Section 60 (MITSUBISHI Multi-Communication System (MMCS) - Lancer) >> Diagnosis >> Symptom Procedures >> Inspection Procedure 1: No Navigation Screen Is Displayed >> Notes

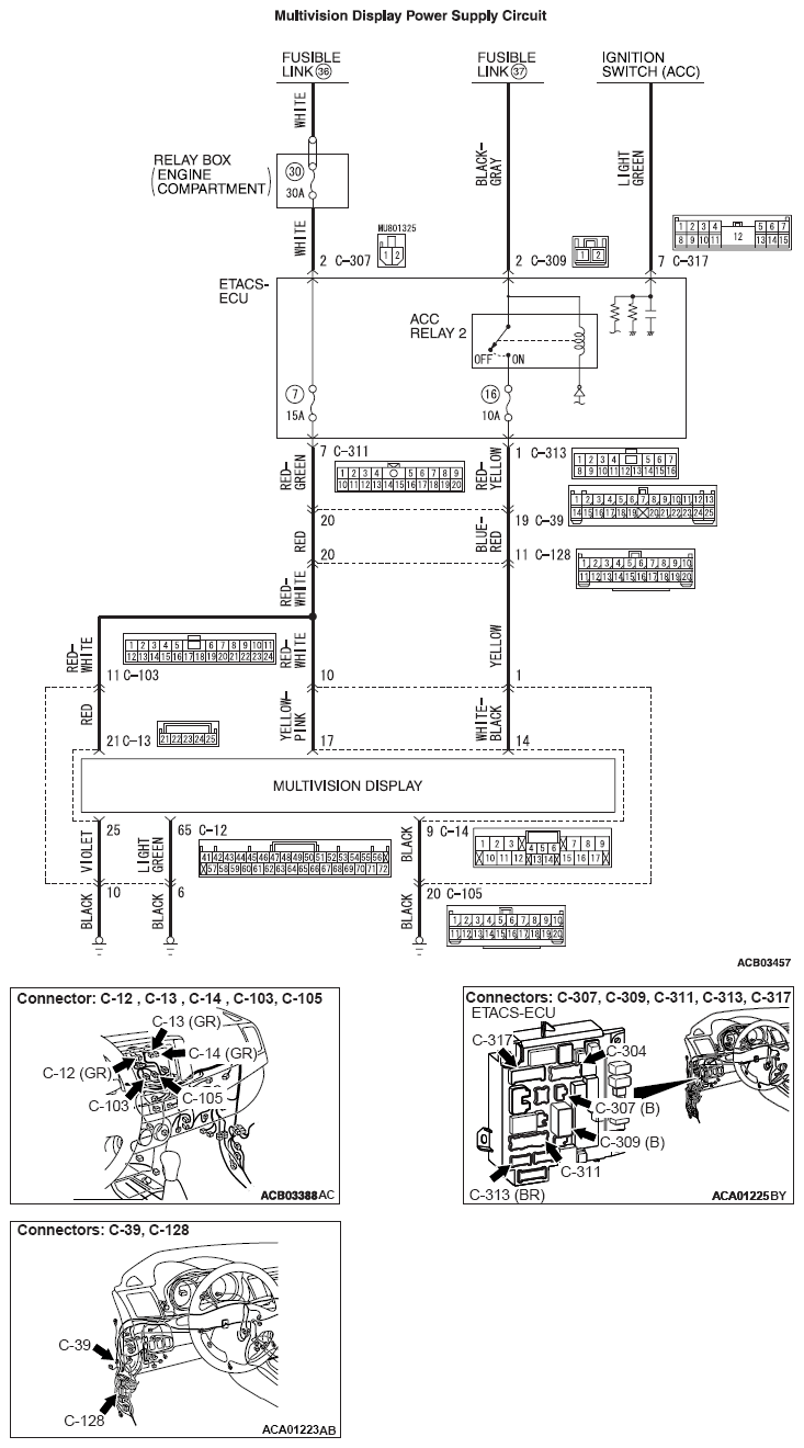
Inspection Procedure 1: No Navigation Screen Is Displayed: Notes

WARNING: This page is about a different variant/trim than selected.
CAUTION: Before replacing the multivision display, ensure that the power supply circuit, the ground circuit, and the communication circuit are normal. (Check that the voltage is 10 V or more.)
Fig 1: Multivision Display Power Supply Circuit Diagram
G08296251Courtesy of MITSUBISHI MOTOR SALES OF AMERICA.
CAUTION: When the ignition switch is turned to the ACC position for 30 minutes with the ETACS-ECU function, the ACC power is cut-off automatically. For this function, the time to cut-off can be changed with ETACS system by the scan tool MB991958 or the MMCS operation. (Refer to ON-VEHICLE SERVICE < ETACS > or ON-VEHICLE SERVICE < MMCS >)