LEMON Manuals: Even more car manuals for everyone
Home >> Mitsubishi >> 2006 >> Lancer Evolution >> Repair and Diagnosis (Single Page) >> Electrical >> Body Electrical >> Chassis Electrical - Lancer Evolution >> Combination Meter Assembly And Vehicle Speed Sensor >> Equipment Diagnosis >> Symptom Procedures >> INSPECTION PROCEDURE 1: Speedometer does not Work. >> Notes

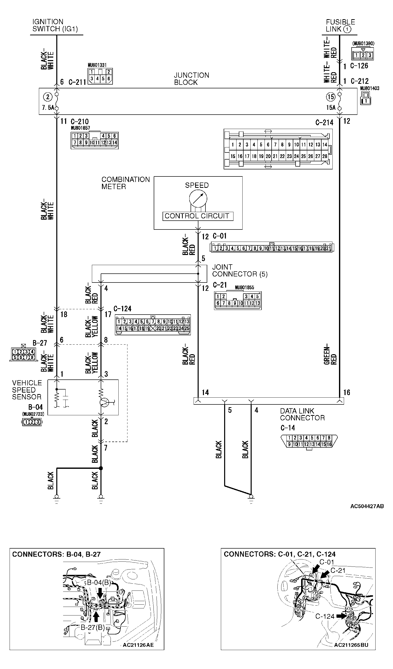
INSPECTION PROCEDURE 1: Speedometer does not Work.: Notes

Fig 1: Identifying Speedometer Circuit
G04298318Courtesy of MITSUBISHI MOTOR SALES OF AMERICA.