LEMON Manuals: Even more car manuals for everyone
Home >> Mercedes Benz >> 2017 >> Metris Van Passenger >> Repair and Diagnosis >> Steering >> Steering Linkage >> Steering (2 Of 2) -- 447 Chassis >> Wiring Diagrams >> Wiring Diagram For Steering Column Module Control Unit >> Wiring Diagram For Steering Column Module Control Unit - PE46.10-S-2101-97VVB

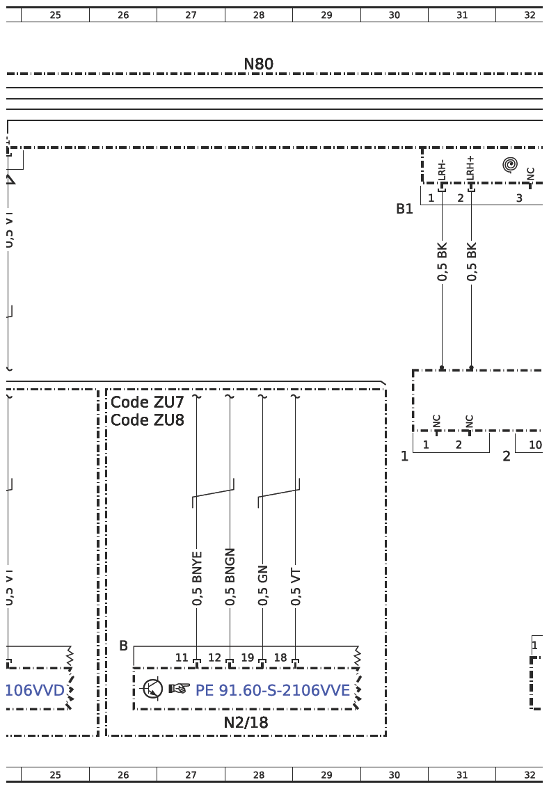
Wiring Diagram For Steering Column Module Control Unit - PE46.10-S-2101-97VVB

Model 447.6 except code M8E (Electric motor 85 kW/battery 60 kWh (usable)) except code ME0 (Electric motor 85 kW) except code XM0 (Facelift) except code XM7 (MOPF II) except code ZL3 (National version for Latin America) N80 

Model 447.7 except code M7E (Electric motor 150 kW/battery 60 kWh (usable)) except code ME0 (Electric motor 85 kW) except code ME4 (Electric motor 145 kW) except code XM0 (Facelift) except code XM7 (MOPF II) except code ZL3 (National version for Latin America) N80 

Code: Designation: Position:
A0 Color code key 56L
CAN E Chassis CAN 15K
Code G42 7G-TRONIC PLUS automatic transmission 40H
Code JW5 Lane Keeping Assist 6D
Code ZU7 Canada version 26F
Code ZU8 USA version 26F
K40/11 Firewall fuse and relay module 3L
K40/11 Firewall fuse and relay module 8L
K40/11f30 Fuse 30 7L
K40/11f49 Fuse 49 2L
M99 Steering wheel vibration motor 39L
N135 Steering wheel electronics 34F
N135 Steering wheel electronics 42F
N2/18 Supplemental restraint system (SRS) control unit 19L
N2/18 Supplemental restraint system (SRS) control unit 23L
N2/18 Supplemental restraint system (SRS) control unit 28L
N80 Steering column tube module (MRM) control unit 4A
N80 Steering column tube module (MRM) control unit 12A
N80 Steering column tube module (MRM) control unit 20A
N80 Steering column tube module (MRM) control unit 28A
N80 Steering column tube module (MRM) control unit 36A
N80 Steering column tube module (MRM) control unit 44A
N80 Steering column tube module (MRM) control unit 52A
R12/7 Driver airbag squib 45L
R12/7r1 Driver airbag ignition squib 1 45K
R12/7r2 Driver airbag ignition squib 2 45K
S110 Left multifunction steering wheel button group 33L
S110/1 Steering wheel downshift button 43L
S111 Right multifunction steering wheel button group 36L
S111/1 Steering wheel upshift button 41L
S16/13 DIRECT SELECT selector lever 54B
S4 Combination switch 47B
S40/4 Cruise control lever 51B
U106 Valid for HIGHLINE airbag 17F
U107 Valid for LOWLINE airbag 22F
U172 Valid without code ZU7 Canada version 17F
U172 Valid without code ZU7 Canada version 22F
U173 Valid without code ZU8 USA version 17G
U173 Valid without code ZU8 USA version 22G
W1/6 Cockpit ground point 9E
W1/6 Cockpit ground point 12G
W1/6 Cockpit ground point 14G
X228 Cockpit wiring harness/fuse and relay module electrical connector 1 2F
X228/2 Cockpit wiring harness/fuse and relay module electrical connector 3 6F
X30/28 Chassis CAN (CAN E) potential distributor electrical connector 15L
Z6/185 Cockpit ground connection connector sleeve 1 13E
G16501939Courtesy of MERCEDES-BENZ USA
G16501940Courtesy of MERCEDES-BENZ USA
G16501941Courtesy of MERCEDES-BENZ USA
G16501942Courtesy of MERCEDES-BENZ USA
G16501943Courtesy of MERCEDES-BENZ USA
G16501944Courtesy of MERCEDES-BENZ USA
G16501945Courtesy of MERCEDES-BENZ USA