LEMON Manuals: Even more car manuals for everyone
Home >> Mercedes Benz >> 2000 >> ML430 >> Repair and Diagnosis >> Engine Performance >> Vacuum Diagrams >> Introduction

Vacuum Diagrams: Introduction

NOTE: Information for C43 4.3L V8 (engine 113.944), and E55 and ML55 5.5L V8 (engine 113.980) is not available from manufacturer.

This article contains underhood views or schematics of vacuum hose routing. Use these vacuum diagrams during the visual inspection. This will assist in identifying improperly routed vacuum hoses, which cause driveability and/or computer-indicated malfunctions.

Fig 1: Vacuum Diagram (1998 2.3L Non-Supercharged Engine)
G97C06201Courtesy of MERCEDES-BENZ OF NORTH AMERICA.
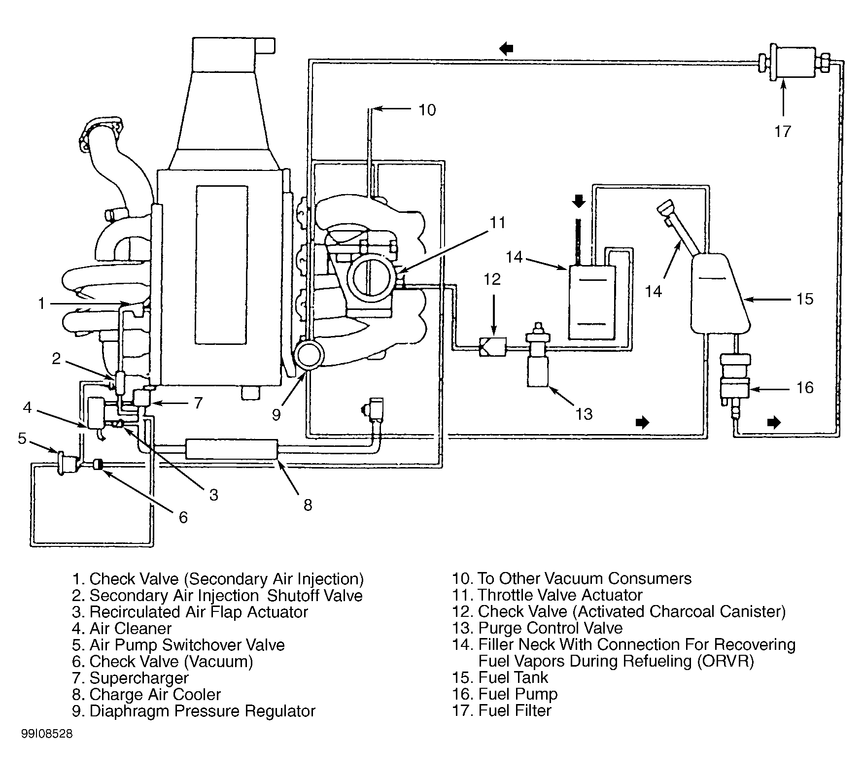
Fig 2: Vacuum Diagram (1998-2000 2.3L Supercharged Engine 111)
G99I08528Courtesy of MERCEDES-BENZ OF NORTH AMERICA.
Fig 3: Vacuum Diagram (1998-99 3.2L Inline 6-Cylinder Engine 104)
G99A08529Courtesy of MERCEDES-BENZ OF NORTH AMERICA.
Fig 4: Vacuum Diagram (1998-2000 2.8L V6 Engine 112, 3.2L V6 Engine 112, 4.3L V8 Engine 113 & 5.0L V8 Engine 113)
G99C08530Courtesy of MERCEDES-BENZ OF NORTH AMERICA.
Fig 5: Vacuum Diagram (1998-99 4.2L V8 & 5.0L V8 - Engines 119.98)
G99E08531Courtesy of MERCEDES-BENZ OF NORTH AMERICA.
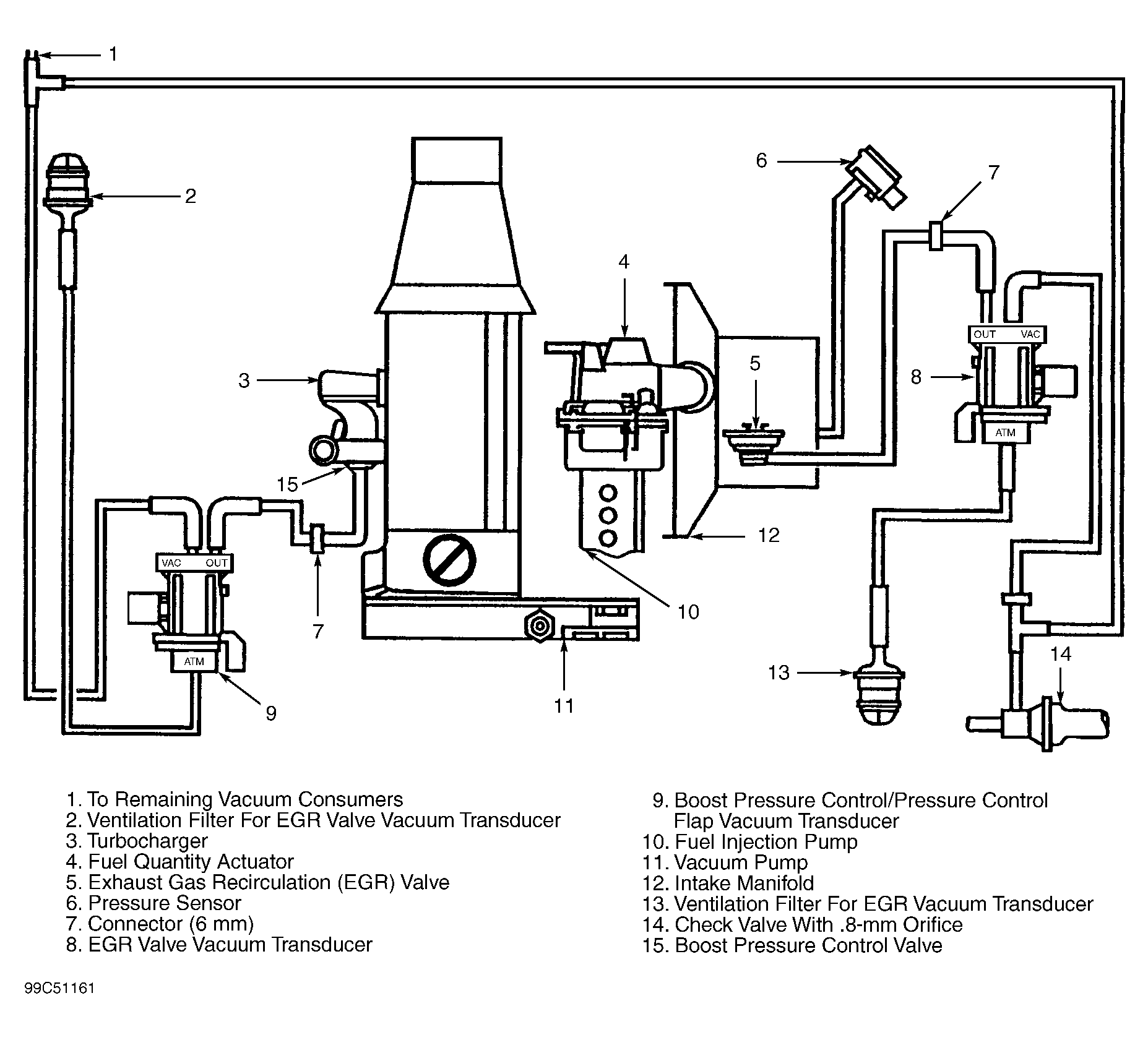
Fig 6: Vacuum Diagram (1998 3.0L Turbo Diesel Engine 606)
G99C51161Courtesy of MERCEDES-BENZ OF NORTH AMERICA.
Fig 7: Vacuum Diagram (1999 3.0L Turbo Diesel Engine 606)
G00011558Courtesy of MERCEDES-BENZ OF NORTH AMERICA.