LEMON Manuals: Even more car manuals for everyone
Home >> Lexus >> 2021 >> ES 250 Base >> Repair and Diagnosis >> External Pages >> Different car >> Section 158 (Power Mirror Control System (Hybrid) (W/ Memory) - Diagnostics - Introduction) >> POWER MIRROR CONTROL SYSTEM (for HV Model with Memory) >> System Diagram [07/2019 - 10/2019] >> System Diagram [07/2019 - 10/2019]

System Diagram [07/2019 - 10/2019]

WARNING: This page does not describe the selected car, but rather 6 other vehicles, including the 2024 Lexus ES 300h, 2023 Lexus ES 300h, 2022 Lexus ES 300h, 2021 Lexus ES 300h, and 2020 Lexus ES 300h. However, it is still accessible from the selected car via links, so may be relevant.
Fig 1: Power Mirror Control (With Memory) Wiring Diagram (07/2019 - 10/2019) (1 Of 3)
GTY949793Courtesy of © TOYOTA, LICENSE AGREEMENT TMS1002
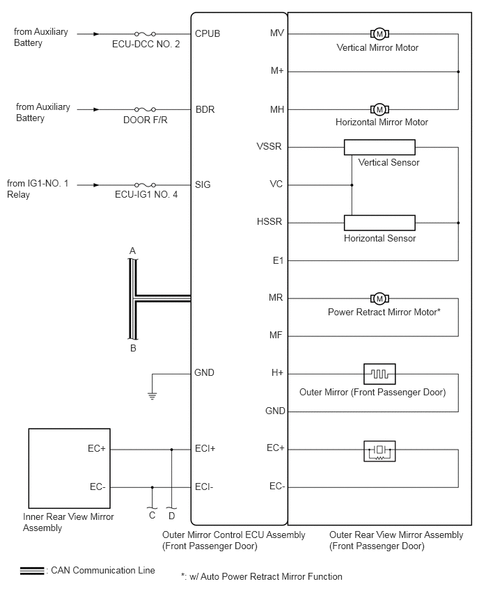
Fig 2: Power Mirror Control (With Memory) Wiring Diagram (07/2019 - 10/2019) (2 Of 3)
GTY949644Courtesy of © TOYOTA, LICENSE AGREEMENT TMS1002
Fig 3: Power Mirror Control (With Memory) Wiring Diagram (07/2019 - 10/2019) (3 Of 3)
GTY949672Courtesy of © TOYOTA, LICENSE AGREEMENT TMS1002
COMMUNICATION TABLE

Sender Receiver Signal Line
Main Body ECU (Multiplex Network Body ECU) Outer Mirror Control ECU Assembly
  • IG signal
  • ACC signal
  • Outer mirror switch assembly signal
  • Mirror position request signal (memory and reactivation function)
  • Mirror position request signal (reverse shift-linked function)
CAN
Outer Mirror Control ECU Assembly Main Body ECU (Multiplex Network Body ECU)
  • Outer mirror state signal
  • Seat memory switch signal
CAN
Certification ECU (Smart Key ECU Assembly) Main Body ECU (Multiplex Network Body ECU) Key ID signal CAN
Air Conditioning Amplifier Assembly Outer Mirror Control ECU Assembly Mirror heater drive request signal CAN
Hybrid Vehicle Control ECU Main Body ECU (Multiplex Network Body ECU) Reverse signal CAN
Rear Window Defogger switch (Air Conditioning Control Assembly) Air Conditioning Amplifier Assembly Mirror heater switch (rear window defogger switch) operation signal LIN