LEMON Manuals: Even more car manuals for everyone
Home >> Lexus >> 2012 >> IS F >> Repair and Diagnosis (Single Page) >> Electrical >> Fuses & Circuit Breakers >> OEM Junction Block, Ecu & Fuse/Relay Locations >> Relay Block Identification >> Engine Room Relay Block No. 2 Assembly And Engine Room Junction Block No. 2 Assembly - Left Engine Compartment >> Notes

Engine Room Relay Block No. 2 Assembly And Engine Room Junction Block No. 2 Assembly - Left Engine Compartment: Notes

Left Engine Compartment  (See Figure)

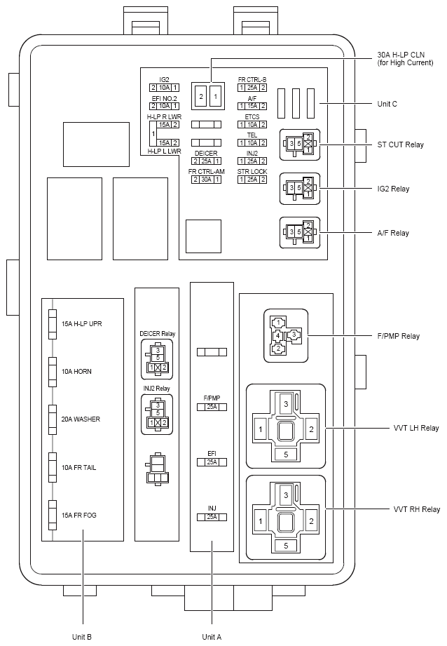
Fig 1: Engine Room R/B & J/B No. 2 Assembly Fuse & Relay Identification (1 Of 2)
G08939539Courtesy of © TOYOTA, LICENSE AGREEMENT TMS1002
ENGINE ROOM R/B NO. 2 AND D43J/B NO. 2 RELAY IDENTIFICATION

RELAY DESCRIPTION
ST CUT Relay
IG2 Relay
A/F Relay
F/PMP Relay
VVT LH Relay
VVT RH Relay
ENGINE ROOM R/B & J/B NO. 2 FUSE IDENTIFICATION LEGEND

Fuse System
10A EFI No. 2 Electronically Controlled Transmission and A/T Indicator and Engine Control
10A ETCS Cruise Control
Dynamic Radar Cruise Control
Electronically Controlled Transmission and A/T Indicator and Engine Control
10A FR TAIL Automatic Light Control and Light Auto Turn Off System
Headlight
Taillight
10A HORN Engine Immobilizer System, Smart Access System with Push-Button Start, Starting, Steering Lock, Theft Deterrent and Wireless Door Lock Control
Horn
10A IG2 Electronically Controlled Transmission and A/T Indicator and Engine Control
Ignition
10A TEL LEXUS ENFORM or Safety Connect
15A A/F Electronically Controlled Transmission and A/T Indicator and Engine Control
15A FR FOG Front Fog Light
15A H-LP L LWR Headlight
15A H-LP R LWR Headlight
15A H-LP UPR Headlight
20A WASHER Front Wiper and Washer
Headlight Cleaner
25A DEICER Front Window Deicer
25A EFI Cruise Control
Dynamic Radar Cruise Control
Electronically Controlled Transmission and A/T Indicator and Engine Control
25A F/PMP Electronically Controlled Transmission and A/T Indicator and Engine Control
25A INJ Electronically Controlled Transmission and A/T Indicator and Engine Control
25A INJ2 Electronically Controlled Transmission and A/T Indicator and Engine Control
25A STR LOCK Engine Immobilizer System, Smart Access System with Push-Button Start, Starting, Steering Lock, Theft Deterrent and Wireless Door Lock Control
30A H-LP CLN Headlight Cleaner
Fig 2: Engine Room R/B No. 2 Assembly And Engine Room J/B No. 2 Assembly (2 Of 2)
G08939540Courtesy of © TOYOTA, LICENSE AGREEMENT TMS1002