LEMON Manuals: Even more car manuals for everyone
Home >> Lexus >> 2011 >> IS 350C >> Repair and Diagnosis (Single Page) >> Electrical >> Fuses & Circuit Breakers >> OEM Junction Block, Ecu & Fuse/Relay Locations >> Relay Block Identification >> Engine Room Relay Block No. 2 Assembly And Engine Room Junction Block No. 2 Assembly

Engine Room Relay Block No. 2 Assembly And Engine Room Junction Block No. 2 Assembly

Left Engine Compartment  (See Figure)

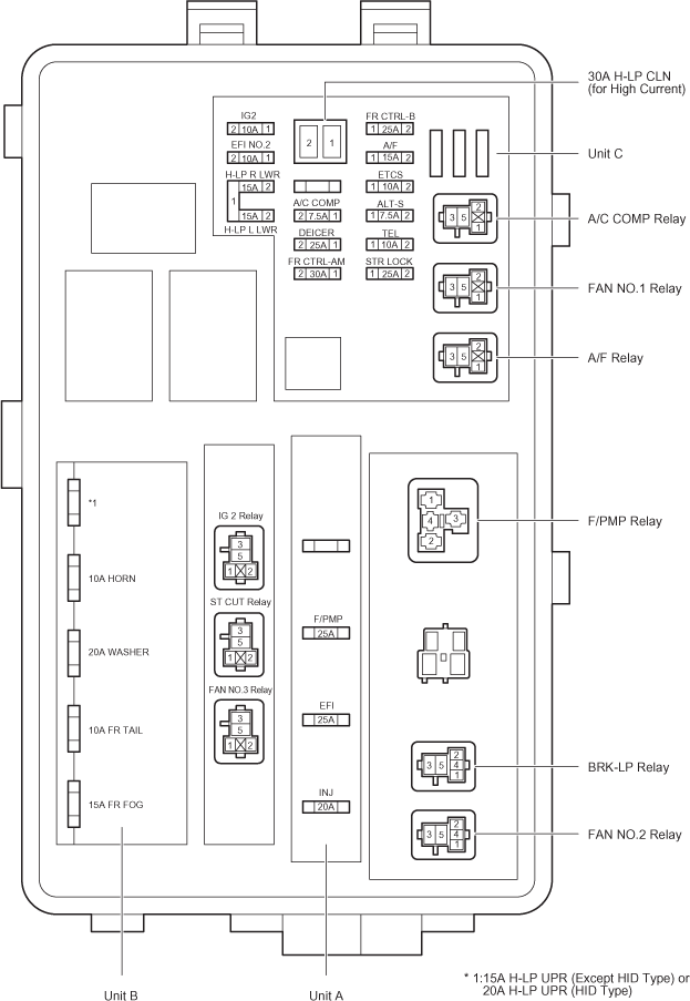
Fig 1: Engine Room R/B And J/B No. 2 Assembly Fuse & Relay Identification (1 Of 2)
G07585271Courtesy of © TOYOTA, LICENSE AGREEMENT TMS1002
ENGINE ROOM R/B NO. 2 AND J/B NO. 2 RELAY IDENTIFICATION

RELAY DESCRIPTION
A/C COMP Relay
Fan No. 1 Relay
A/F Relay
F/PMP Relay
BRK-LP Relay
Fan No. 2 Relay
ENGINE ROOM R/B AND J/B NO. 2 FUSE IDENTIFICATION LEGEND

Fuse System
7.5A A/C COMP Air Conditioning
7.5A ALT-S Charging
7.5A RH-IG Front Window Deicer
10A EFI NO. 2 Electronically Controlled Transmission and A/T Indicator (2GR-FSE)
Electronically Controlled Transmission and A/T Indicator (4GR-FSE)
Engine Control (2GR-FSE)
Engine Control (4GR-FSE)
10A ETCS Cruise Control (2GR-FSE)
Cruise Control (4GR-FSE)
Dynamic Radar Cruise Control (2GR-FSE)
10A ETCS Dynamic Radar Cruise Control (4GR-FSE)
Electronically Controlled Transmission and A/T Indicator (2GR-FSE)
Electronically Controlled Transmission and A/T Indicator (4GR-FSE)
Engine Control (2GR-FSE)
Engine Control (4GR-FSE)
10A FR TAIL Automatic Light Control
Headlight
Light Auto Turn Off System
Taillight
Theft Deterrent
10A HORN Horn
Smart Access System with Push-Button Start
Theft Deterrent
10A IG2 Engine Control (2GR-FSE)
Engine Control (4GR-FSE)
Ignition (2GR-FSE)
Ignition (4GR-FSE)
10A TEL LEXUS ENFORM or Safety Connect
15A A/F Engine Control (2GR-FSE)
Engine Control (4GR-FSE)
15A FR FOG Front Fog Light
15A H-LP L LWR Headlight
15A H-LP R LWR Headlight
15A H-LP UPR (Except HID Type) Headlight
Headlight Beam Level Control
20A H-LP UPR (HID Type) Headlight
Headlight Beam Level Control
20A INJ Engine Control (2GR-FSE)
Engine Control (4GR-FSE)
20A WASHER Front Wiper and Washer
Headlight Cleaner
25A DEICER Front Window Deicer
25A EFI Cruise Control (2GR-FSE)
Cruise Control (4GR-FSE)
Dynamic Radar Cruise Control (2GR-FSE)
Dynamic Radar Cruise Control (4GR-FSE)
Electronically Controlled Transmission and A/T Indicator (2GR-FSE)
Electronically Controlled Transmission and A/T Indicator (4GR-FSE)
Engine Control (2GR-FSE)
25A EFI Engine Control (4GR-FSE)
25A F/PMP Engine Control (2GR-FSE)
Engine Control (4GR-FSE)
25A STR LOCK Smart Access System with Push-Button Start
30A H-LP CLN Headlight Cleaner
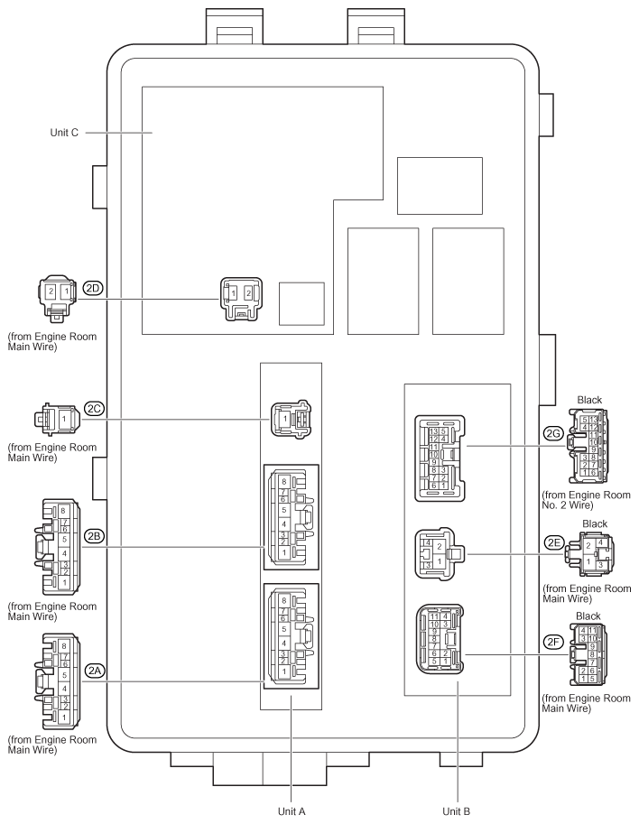
Fig 2: Engine Room R/B No. 2 And J/B No. 2 Assembly Fuse/Relay Locations (2 Of 2)
G07585272Courtesy of © TOYOTA, LICENSE AGREEMENT TMS1002