LEMON Manuals: Even more car manuals for everyone
Home >> Jeep >> 2007 >> Commander Base, 4.7 P, AWD >> Repair and Diagnosis >> Engine Performance >> System >> DTCS P0123 To P0174 >> P0137-O2 Sensor 1/2 Circuit Low >> Circuit Schematic

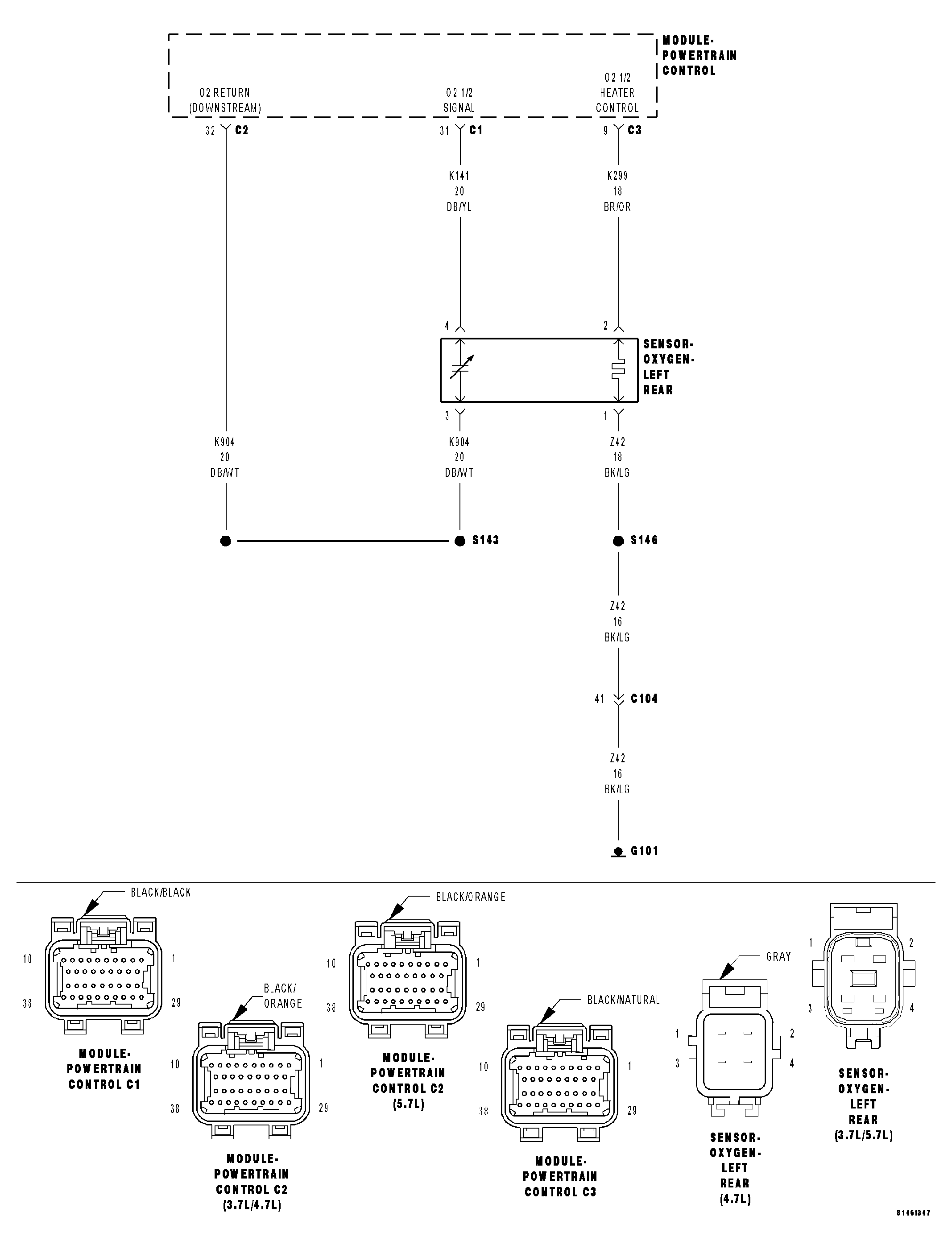
Circuit Schematic

Fig 1: Left Rear O2 Sensor Circuit Schematic
GC0027009Courtesy of CHRYSLER LLC