LEMON Manuals: Even more car manuals for everyone
Home >> Isuzu >> 2007 >> Ascender 4WD >> Repair and Diagnosis >> External Pages >> Different car >> Section 98 (Data Communication System) >> Schematic and Routing Diagrams >> Body Control System Schematics

Body Control System Schematics

WARNING: This page is about a different car, the 2007 Pontiac Torrent and 2007 Chevrolet Equinox. However, it is still accessible from the selected car via links, so may be relevant.
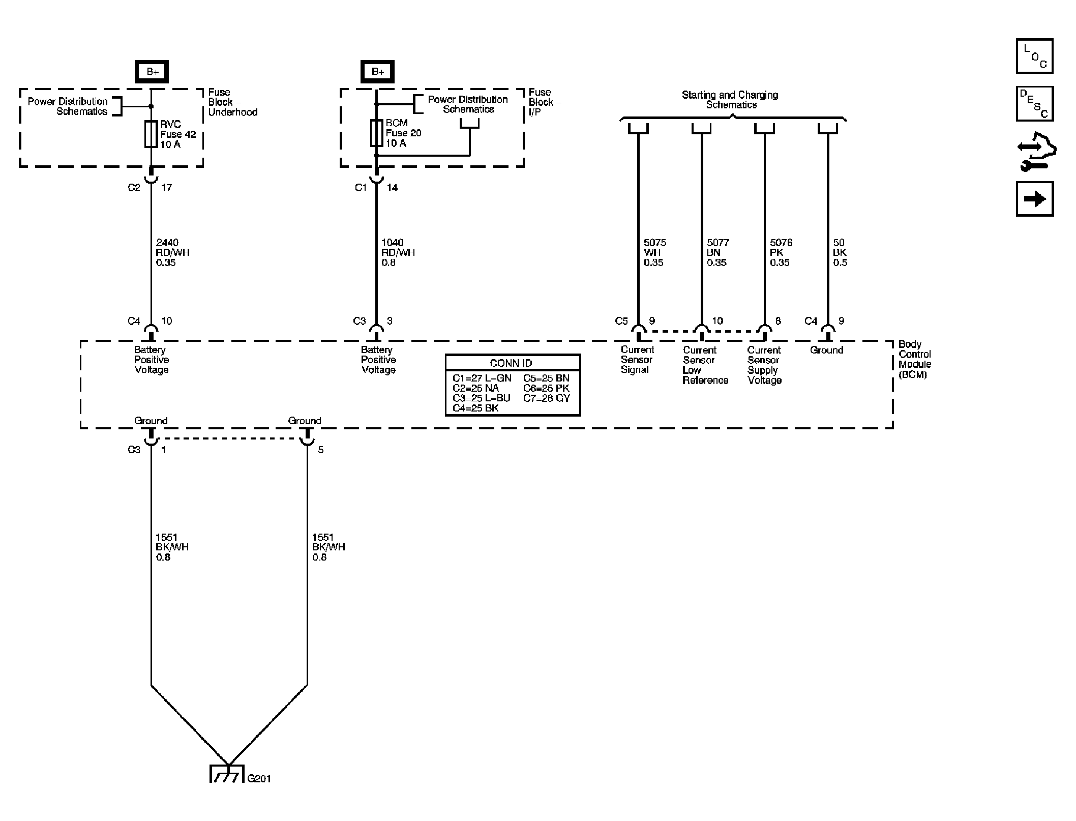
Fig 1: Power and Ground, Starting & Charging Schematic
GM1805020Courtesy of GENERAL MOTORS CORP.
Fig 2: Exterior Lights, Radio, Data Communications, ABS & Automatic Transmission Schematic
GM1804981Courtesy of GENERAL MOTORS CORP.
Fig 3: Shift Lock, Headlights, Cruise, Wiper & I/P Schematic
GM1804986Courtesy of GENERAL MOTORS CORP.
Fig 4: Interior Lights, Door Locks, Exterior Lights, Release Systems, Movable Windows & Horns Schematic
GM1804997Courtesy of GENERAL MOTORS CORP.