LEMON Manuals: Even more car manuals for everyone
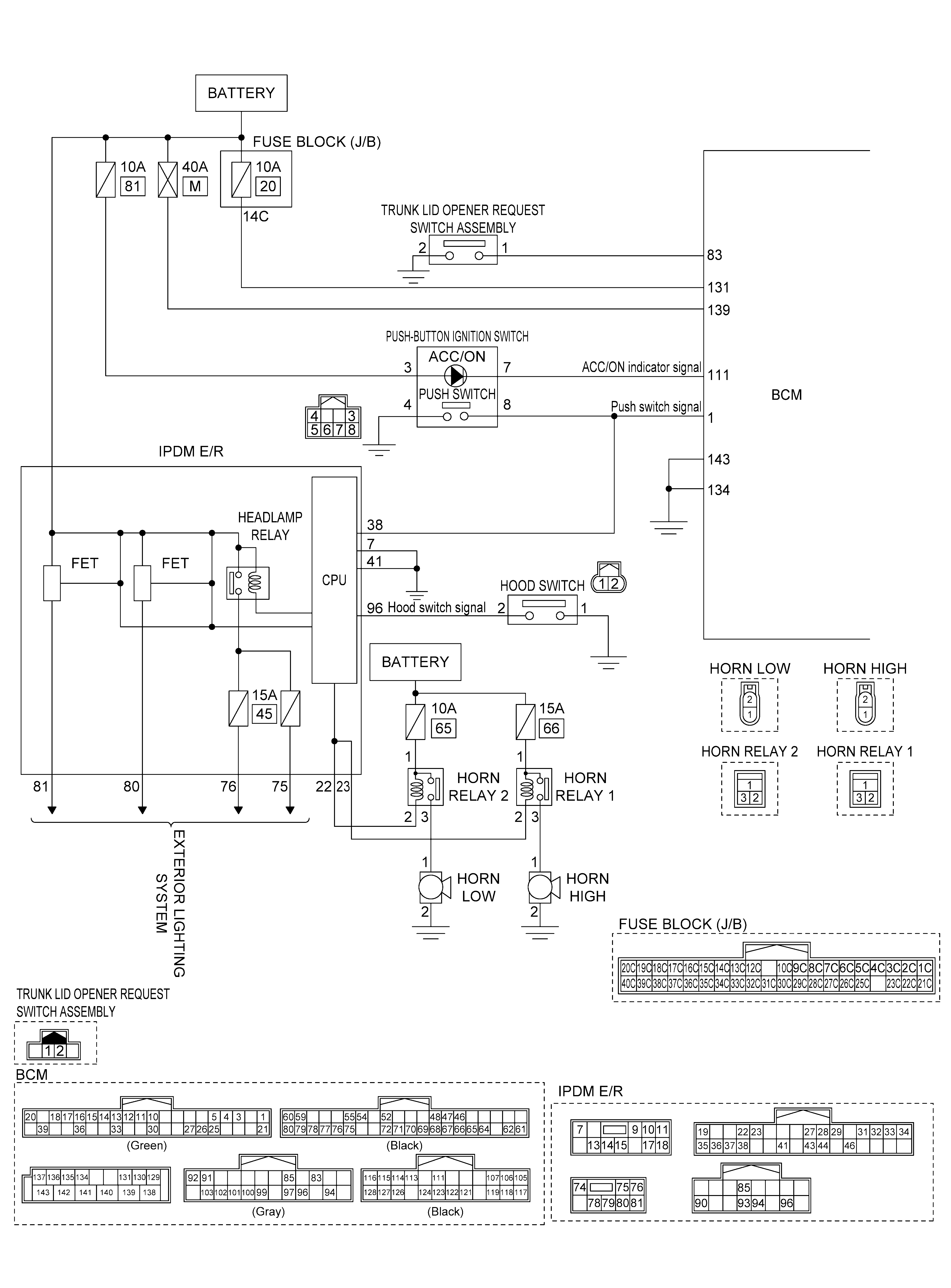
Home >> Infiniti >> 2017 >> Q50 Base, AWD >> Repair and Diagnosis >> External Pages >> Different car >> Section 420 (Security Control System) >> System Description >> System >> Vehicle Security System >> Circuit Diagram >> 2.0L Turbo Gasoline Engine Models

2.0L Turbo Gasoline Engine Models

WARNING: This page is about a different car, the 2019 Infiniti Q50. However, it is still accessible from the selected car via links, so may be relevant.
GNSJMKIB6827GB-827Courtesy of NISSAN NORTH AMERICA, INC.
GNSJMKIB6826GB-826Courtesy of NISSAN NORTH AMERICA, INC.