LEMON Manuals: Even more car manuals for everyone
Home >> Infiniti >> 2004 >> FX45 >> Repair and Diagnosis >> Engine Performance >> Engine Control System >> DTC P2138 App Sensor >> Diagnostic Procedure

Diagnostic Procedure

  1. Check Ground Connections 
    1. Turn ignition switch OFF.
    2. Loosen and retighten three ground screws on the body. See Figure .

      Refer to GROUND INSPECTION  .

    OK or NG

    1. OK: go to 2.
    2. NG: Repair or replace ground connections.

  2. Check APP Sensor 1 Power Supply Circuit 
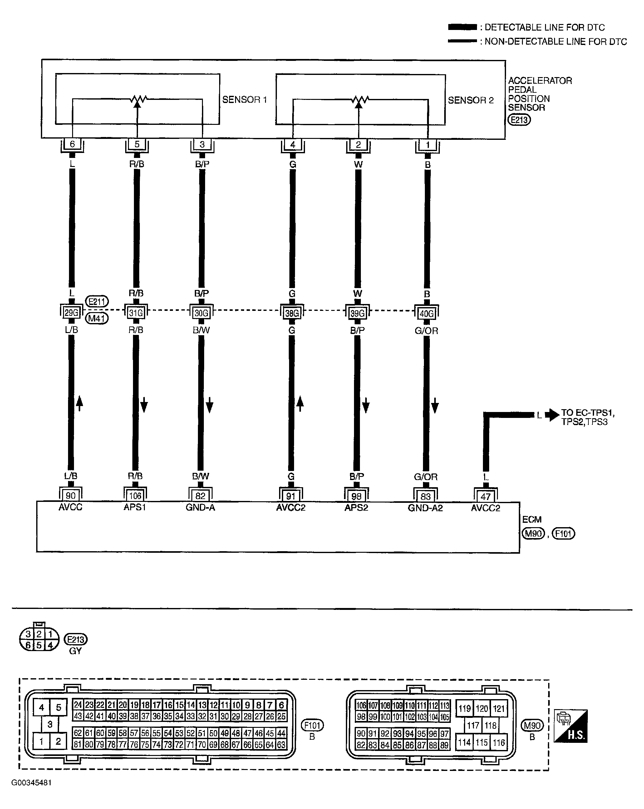
    1. Disconnect accelerator pedal position (APP) sensor harness connector. See Figure .
    2. Turn ignition switch ON.
    3. Check voltage between APP sensor terminal 6 and group with CONSULT-II or tester. See Figure .
      1. Voltage: Approximately 5V 

    OK or NG

    1. OK: go to  4 .
    2. NG: go to 3.

  3. Detect Malfunctioning Part 

    Check the following.

    • Harness connectors E211, M41
    • Harness for open or short between ECM and accelerator pedal position sensor
      1. Repair open circuit or short to ground or short to power in harness or connectors.

  4. Check APP Sensor 2 Power Supply Circuit-I 
    1. Disconnect accelerator pedal position (APP) sensor harness connector. See Figure .
    2. Turn ignition switch ON.
    3. Check voltage between APP sensor terminal 4 and ground with CONSULT-II or tester.
      Fig 1: Testing APP Sensors Ground Circuit (W/DVOM)
      G00345487Courtesy of NISSAN MOTOR CO., U.S.A.
      1. Voltage: Approximately 5V 

    OK or NG

    1. OK: go to  10 .
    2. NG: go to 5.

  5. Check APP Sensor 2 Power Supply Circuit-II 
    1. Turn ignition switch OFF.
    2. Disconnect ECM harness connector.
    3. Check harness continuity between APP sensor terminal 4 and ECM terminal 91.

      Refer to wiring diagram. See Figure .

      1. Continuity should exist  .

    OK or NG

    1. OK: go to  7 .
    2. NG: go to 6.

  6. Detect Malfunctioning Part 

    Check the following.

    • Harness connectors E211, M41
    • Harness for open or short between ECM and accelerator pedal position sensor

    1. Repair or replace open circuit.
  7. Check APP Sensor 2 Power Supply Circuit-III 

    Check harness for short to power and short to ground, between the following terminals. See Figure .

    OK or NG

    1. OK: go to 8.
    2. NG: Repair short to ground or short to power in harness or connectors.

  8. Check Throttle Position Sensor 

    Refer to COMPONENT INSPECTION  .

    OK or NG

    1. OK: go to  16 .
    2. NG: go to 9.

  9. Replace Electric Throttle Control Actuator 
    1. Replace the electric throttle control actuator.
    2. Perform THROTTLE VALVE CLOSED POSITION LEARNING  .
    3. Perform IDLE AIR VOLUME LEARNING  .
    1. Inspection end 
  10. Check APP Sensor Ground Circuit For Open And Short 
    1. Turn ignition switch OFF.
    2. Disconnect ECM harness connector.
    3. Check harness continuity between APP sensor terminal 3 and ECM terminal 82, APP sensor terminal 1 and ECM terminal 83.

      Refer to wiring diagram. See Figure .

      1. Continuity should exist  .
    4. Also check harness for short to ground and short to power.

    OK or NG

    1. OK: go to  12 .
    2. NG: go to 11.

  11. Detect Malfunctioning Part 

    Check the following.

    • Harness connectors E211, M41
    • Harness for open or short between ECM and accelerator pedal position sensor
      1. Repair open circuit or short to ground or short to power in harness or connectors.

  12. Check APP Sensor Input Signal Circuit For Open And Short 
    1. Check harness continuity between ECM terminal 106 and APP sensor terminal 5, ECM terminal 98 and APP sensor terminal 2.

      Refer to wiring diagram. See Figure .

      1. Continuity should exist  .
    2. Also check harness for short to ground and short to power.

    OK or NG

    1. OK: go to  14 .
    2. NG: go to 13.

  13. Detect Malfunctioning Part 

    Check the following.

    • Harness connectors E211, M41
    • Harness for open or short between ECM and accelerator pedal position sensor
      1. Repair open circuit or short to ground or short to power in harness or connectors.

  14. Check APP Sensor 

    Refer to COMPONENT INSPECTION  .

    OK or NG

    1. OK: go to  16 .
    2. NG: go to 15.

  15. Replace Accelerator Pedal Assembly 
    1. Replace accelerator pedal assembly.
    2. Perform ACCELERATOR PEDAL RELEASED POSITION LEARNING  .
    3. Perform THROTTLE VALVE CLOSED POSITION LEARNING  .
    4. Perform IDLE AIR VOLUME LEARNING  .
    1. Inspection end 
  16. Check Intermittent Incident 

    Refer to TROUBLE DIAGNOSIS FOR INTERMITTENT INCIDENT  .

    1. Inspection end