LEMON Manuals: Even more car manuals for everyone
Home >> Infiniti >> 2004 >> FX35 AWD >> Repair and Diagnosis >> Engine Performance >> Engine Control System >> DTC P1122: Electric Throttle Control Function >> Diagnostic Procedure

Diagnostic Procedure

  1. Check Ground Connections 
    1. Turn ignition switch OFF.
    2. Loosen and retighten three ground screws on the body. See Figure. Refer to GROUND INSPECTION .

    OK or NG

    1. OK: Go to 2.
    2. NG: Repair or replace ground connections.

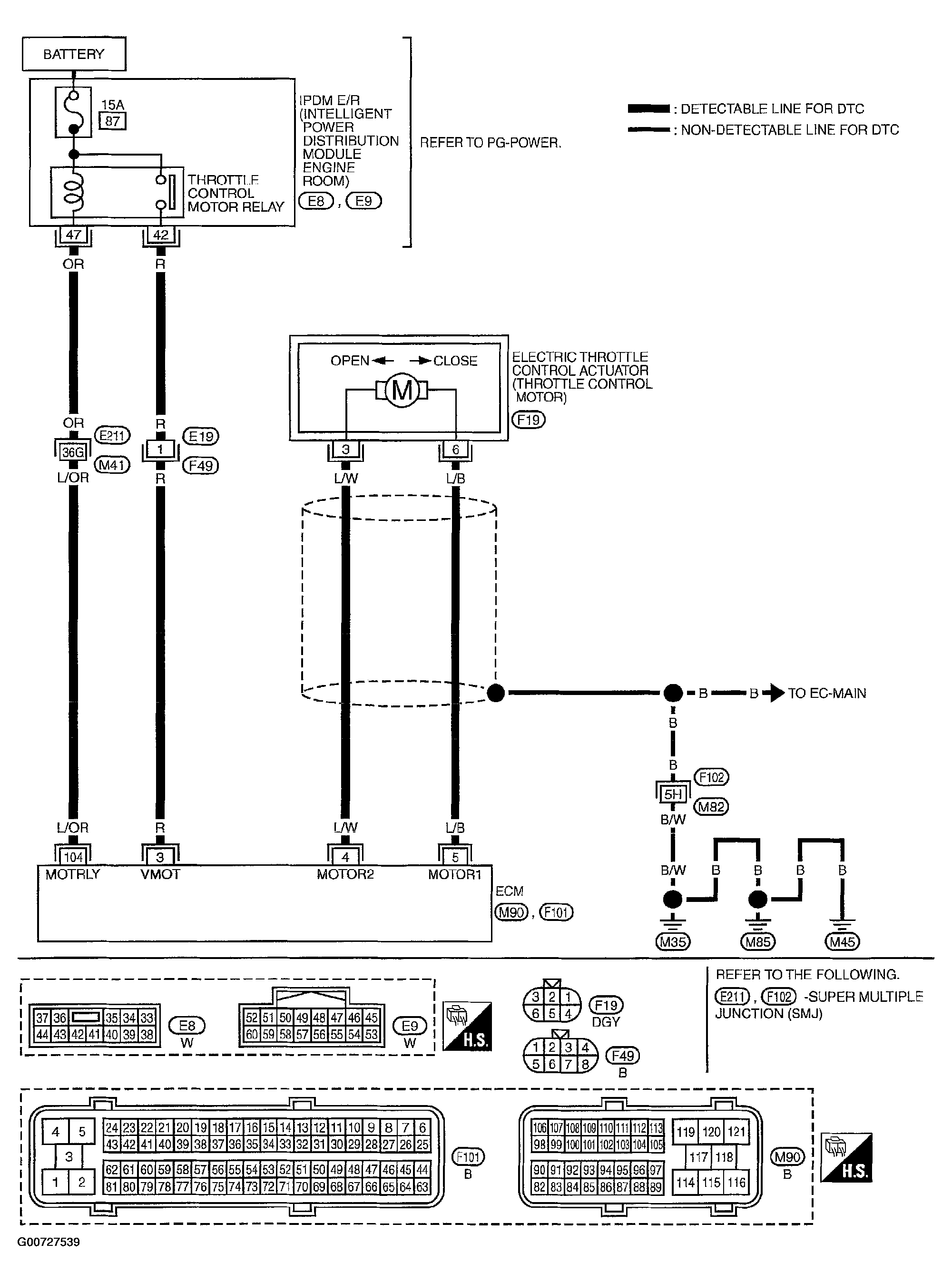
  2. Check Throttle Control Motor Relay Input Signal Circuit-I 
    1. Check voltage between ECM terminal 3 and ground under the following conditions with CONSULT-II or tester.
      Fig 1: Testing Throttle Control Motor Relay Operation (DVOM)
      G00727543Courtesy of NISSAN MOTOR CO., U.S.A.
      Fig 2: Throttle Control Motor Relay Circuit Specifications
      G00727542Courtesy of NISSAN MOTOR CO., U.S.A.

    OK or NG

    1. OK: Go to  10.
    2. NG: Go to 3.

  3. Check Throttle Control Motor Relay Input Signal Circuit-II 
    1. Turn ignition switch OFF.
    2. Disconnect ECM harness connector.
    3. Disconnect IPDM E/R harness connector E8.
    4. Check continuity between ECM terminal 3 and IPDM E/R terminal 42.

      Refer to wiring diagram. See Figure.

      Continuity should exist  .

    5. Also check harness for short to ground and short to power.

    OK or NG

    1. OK: Go to  5.
    2. NG: Go to 4.

  4. Detect Malfunctioning Part 

    Check the following.

    • Harness connectors E19, F49
    • Harness for open or short between ECM and IPDM E/R

    1. Repair open circuit or short to ground or short to power in harness or connectors.
  5. Check Throttle Control Motor Relay Power Supply Circuit-I 
    1. Reconnect all harness connectors disconnected.
    2. Turn ignition switch OFF.
    3. Check voltage between ECM terminal 104 and ground with CONSULT-II or tester.
      Fig 3: Testing Power To Throttle Control Motor Relay (DVOM)
      G00727544Courtesy of NISSAN MOTOR CO., U.S.A.

      Voltage: Battery voltage 

    OK or NG

    1. OK: Go to  9.
    2. NG: Go to 6.

  6. Check Throttle Control Motor Relay Power Supply Circuit-II 
    1. Disconnect ECM harness connector.
    2. Disconnect IPDM E/R harness connector E9.
    3. Check continuity between ECM terminal 104 and IPDM E/R terminal 47.

      Refer to wiring diagram. See Figure.

      Continuity should exist  .

    4. Also check harness for short to ground and short to power.

    OK or NG

    1. OK: Go to  8.
    2. NG: Go to 7.

  7. Detect Malfunctioning Part 

    Check the following.

    • Harness connectors E211, M41
    • Harness for open or short between ECM and IPDM E/R

    1. Repair open circuit or short to ground or short to power in harness or connectors.
  8. Check Fuse 
    1. Disconnect 15A fuse.
    2. Check 15A fuse for blown.

    OK or NG

    1. OK: Go to 9.
    2. NG: Replace 15A fuse.

  9. Check Intermittent Incident 

    Refer to TROUBLE DIAGNOSIS FOR INTERMITTENT INCIDENT .

    OK or NG

    1. OK: Replace IPDM E/R. Refer to ENGINE COMPARTMENT JUNCTION & RELAY BLOCKS .
    2. NG: Repair or replace harness or connectors.
  10. Check Throttle Control Motor Output Signal Circuit For Open Or Short 
    1. Turn ignition switch OFF.
    2. Disconnect electric throttle control actuator harness connector.
    3. Disconnect ECM harness connector.
    4. Check harness continuity between the following terminals. See Fig 5.

      Refer to wiring diagram. See Figure.

      Fig 4: Locating Electric Throttle Control Actuator
      G00727546Courtesy of NISSAN MOTOR CO., U.S.A.
      Fig 5: Electric Throttle Control Actuator Specificaitons
      G00727545Courtesy of NISSAN MOTOR CO., U.S.A.
    5. Also check harness for short to ground and short to power.

      OK or NG

      1. OK: Go to 11.
      2. NG: Repair or replace.

  11. Check Electric Throttle Control Actuator Visually 
    1. Remove the intake air duct.
    2. Check if foreign matter is caught between the throttle valve and the housing.

    OK or NG

    1. OK: Go to 12.
    2. NG: Remove the foreign matter and clean the electric throttle control actuator inside. See Figure.

  12. Check Throttle Control Motor 

    Refer to COMPONENT INSPECTION .

    OK or NG

    1. OK: Go to 13.
    2. NG: Go to  14.

  13. Check Intermittent Incident 

    Refer to TROUBLE DIAGNOSIS FOR INTERMITTENT INCIDENT .

    OK or NG

    1. OK: Go to 14.
    2. NG: Repair or replace harness or connectors.

  14. Replace Electric Throttle Control Actuator 
    1. Replace the electric throttle control actuator.
    2. Perform THROTTLE VALVE CLOSED POSITION LEARNING .
    3. Perform IDLE AIR VOLUME LEARNING .
    1. Inspection end