LEMON Manuals: Even more car manuals for everyone
Home >> Hummer >> 2010 >> H3 Base, Standard >> Repair and Diagnosis >> External Pages >> Different car >> Section 38 (Data Communication System) >> Schematic and Routing Diagrams >> Body Control System Schematics

Body Control System Schematics

WARNING: This page is about a different car, the 2010 GMC Canyon and 2010 Chevrolet Colorado. However, it is still accessible from the selected car via links, so may be relevant.
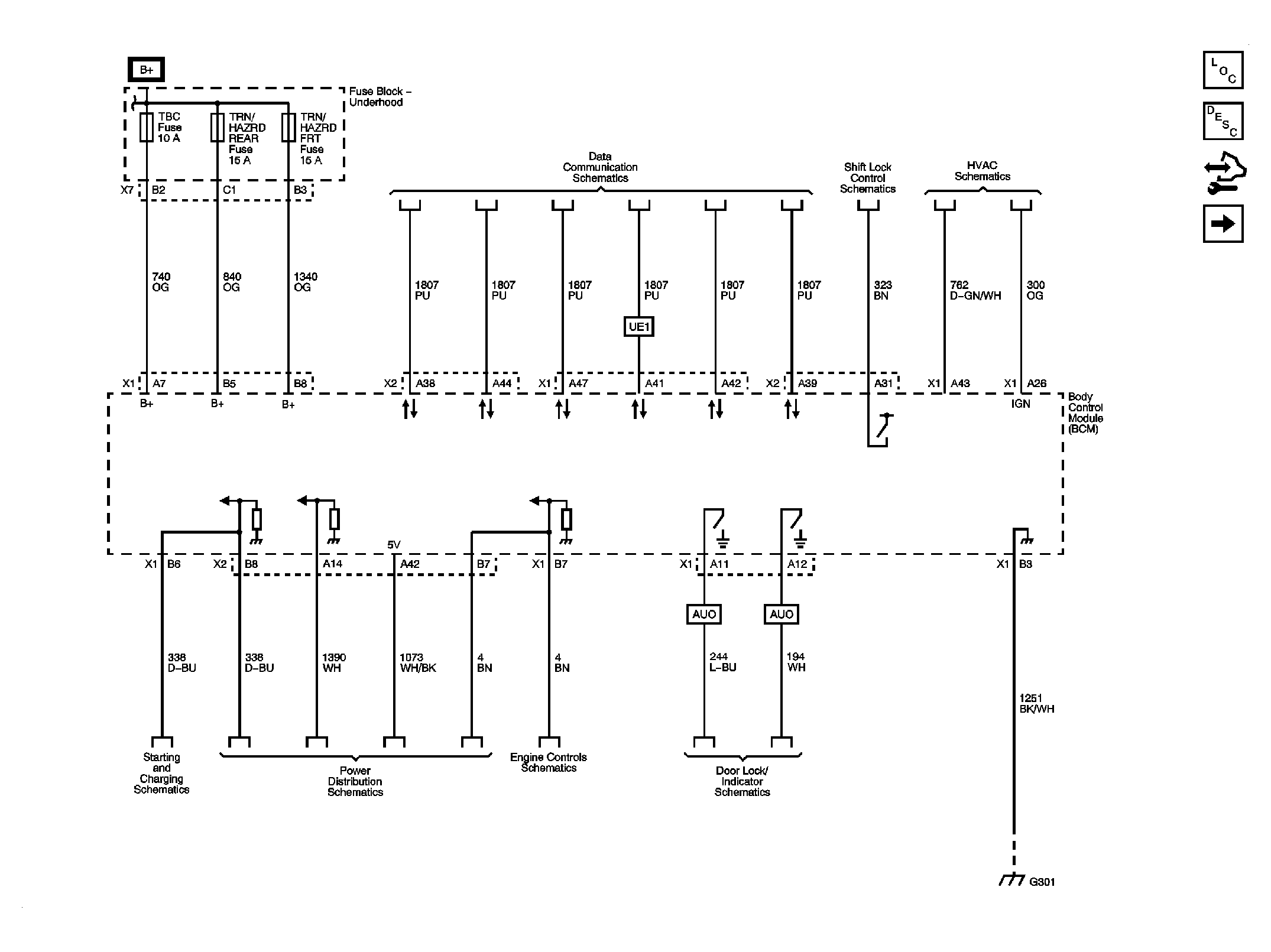
Fig 1: Power, Ground, Serial Data, and Controlled/Monitored Subsystem References
GM2242672Courtesy of GENERAL MOTORS CORP.
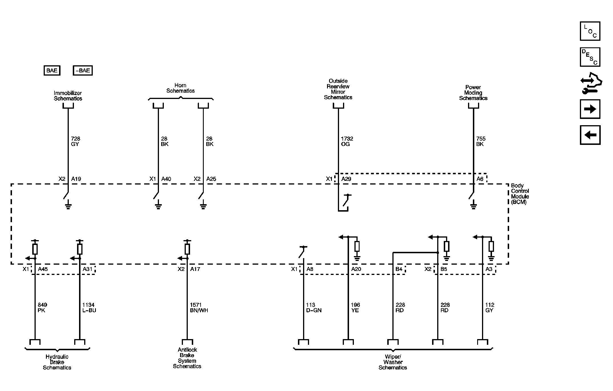
Fig 2: Theft, Horn, Mirror, Power Moding, Brake, and Wiper/Washer System References
GM2242674Courtesy of GENERAL MOTORS CORP.
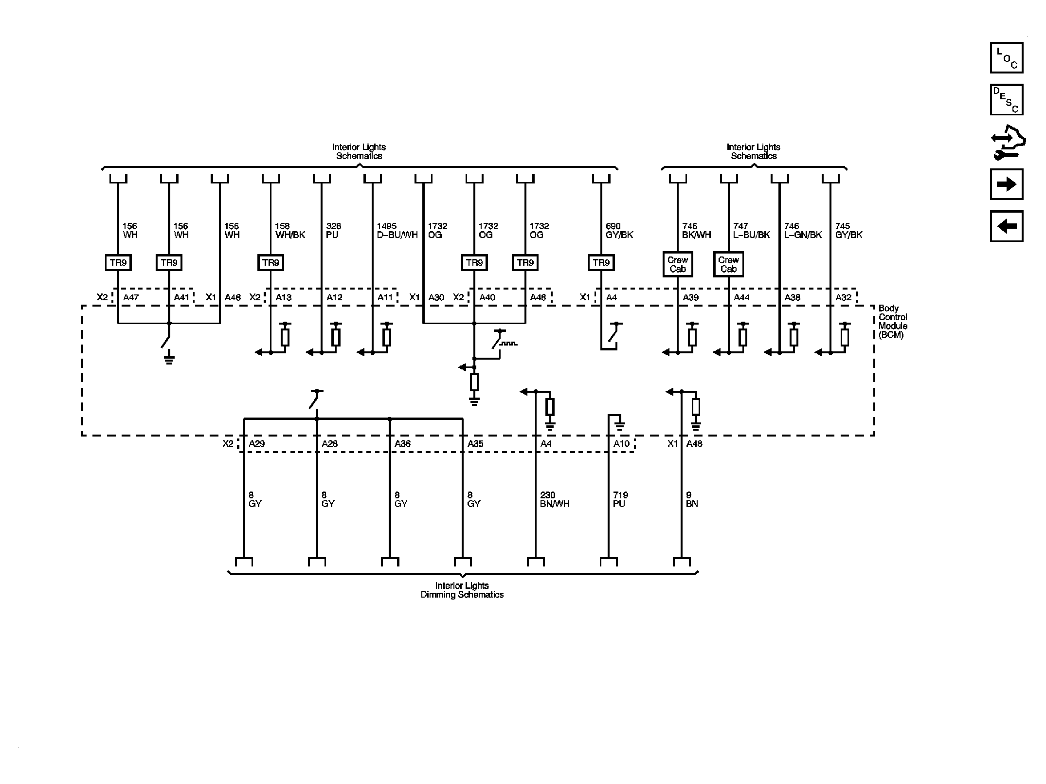
Fig 3: Interior Lights and Interior Lights Dimming References
GM2242676Courtesy of GENERAL MOTORS CORP.
Fig 4: Exterior Lights References
GM2242677Courtesy of GENERAL MOTORS CORP.