LEMON Manuals: Even more car manuals for everyone
Home >> Hummer >> 2009 >> H3 Base, Standard >> Repair and Diagnosis (Single Page) >> Body & Frame >> Ignition Switch/Steering Lock >> Wiring Systems And Power Management - Introduction >> Schematic and Routing Diagrams >> Power Moding Schematics

Power Moding Schematics

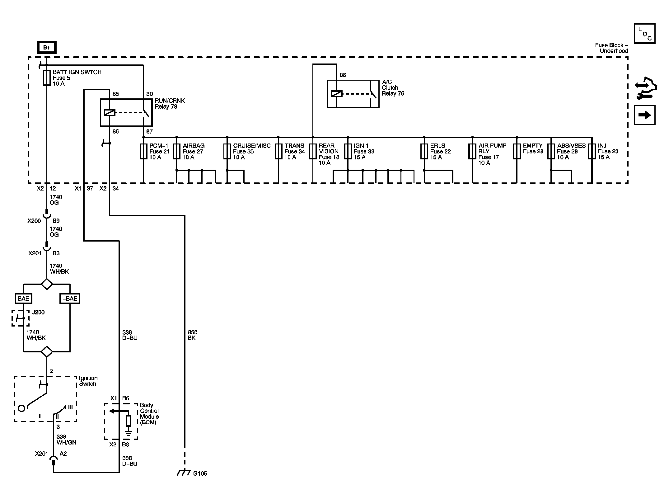
Fig 1: RUN/CRNK Relay Schematic
GM2240871Courtesy of GENERAL MOTORS CORP.
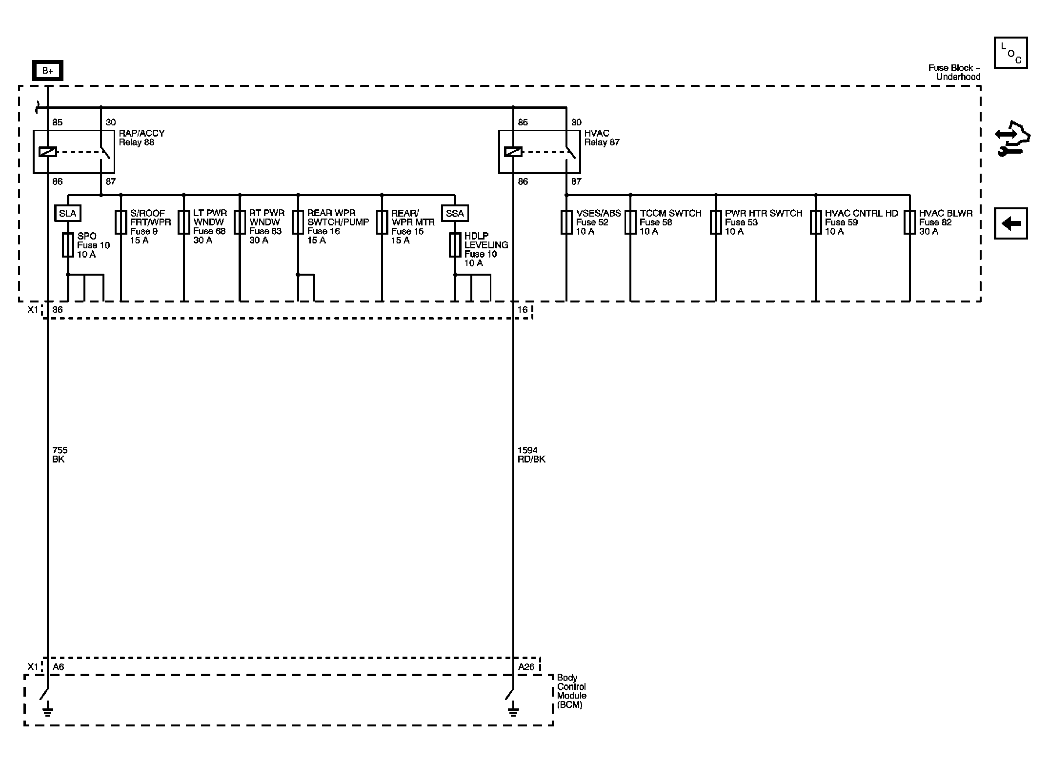
Fig 2: RAP/ACCY and HVAC Relays Schematic
GM2080561Courtesy of GENERAL MOTORS CORP.