LEMON Manuals: Even more car manuals for everyone
Home >> Hummer >> 2008 >> H3 Base, Standard >> Repair and Diagnosis >> External Pages >> Different car >> Section 53 (Data Communication System) >> Schematic and Routing Diagrams >> Body Control System Schematics

Body Control System Schematics

WARNING: This page is about a different car, the 2008 Isuzu i-370, 2008 Isuzu i-290, 2008 GMC Canyon, and 2008 Chevrolet Colorado. However, it is still accessible from the selected car via links, so may be relevant.
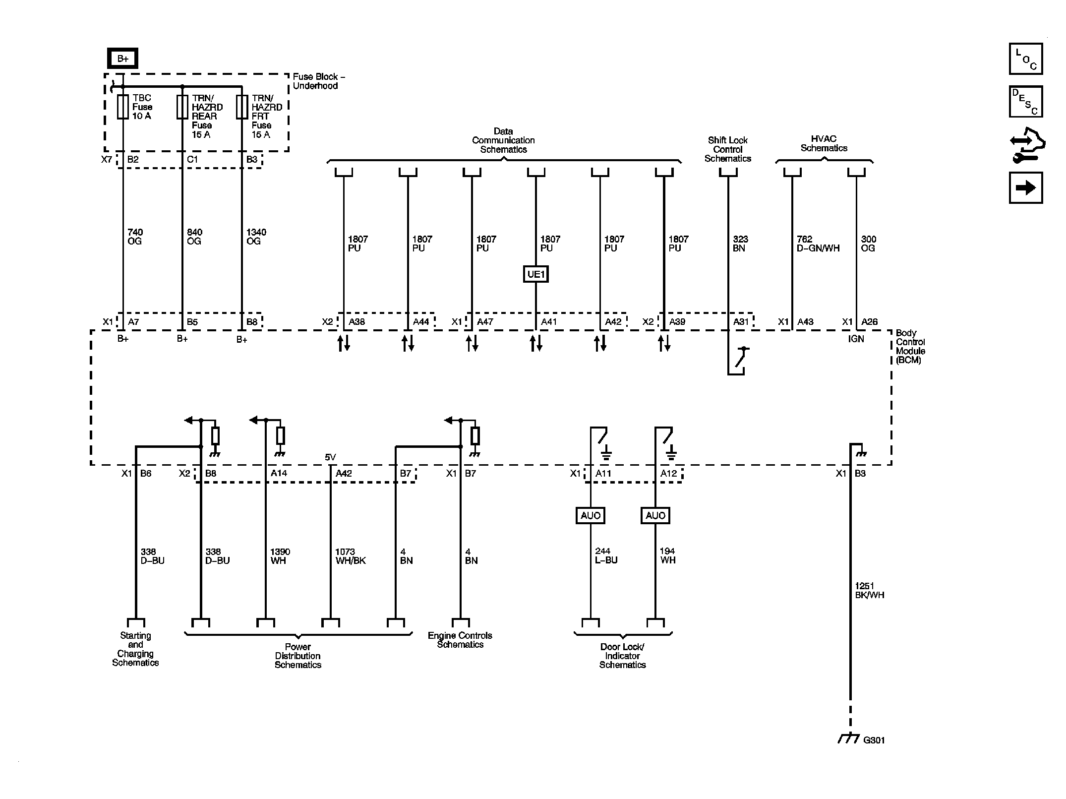
Fig 1: Power, Ground, Serial Data, and Controlled/Monitored Subsystem References
GM1907515Courtesy of GENERAL MOTORS CORP.
Fig 2: Theft, Horn, Mirror, Power Moding, Brake and Wiper/Washer System References
GM1907518Courtesy of GENERAL MOTORS CORP.
Fig 3: Interior Lights and Interior Lights Dimming References
GM1907519Courtesy of GENERAL MOTORS CORP.
Fig 4: Exterior Lighting References
GM1907520Courtesy of GENERAL MOTORS CORP.