LEMON Manuals: Even more car manuals for everyone
Home >> Hummer >> 2008 >> H3 Base, Automatic >> Repair and Diagnosis >> External Pages >> Different car >> Section 199 (Anti-Lock Brake System, Traction Control System & Stability Control System) >> Schematic and Routing Diagrams >> Antilock Brake System Schematics (JL7)

Antilock Brake System Schematics (JL7)

WARNING: This page is about a different car, the 2008 Cadillac STS. However, it is still accessible from the selected car via links, so may be relevant.
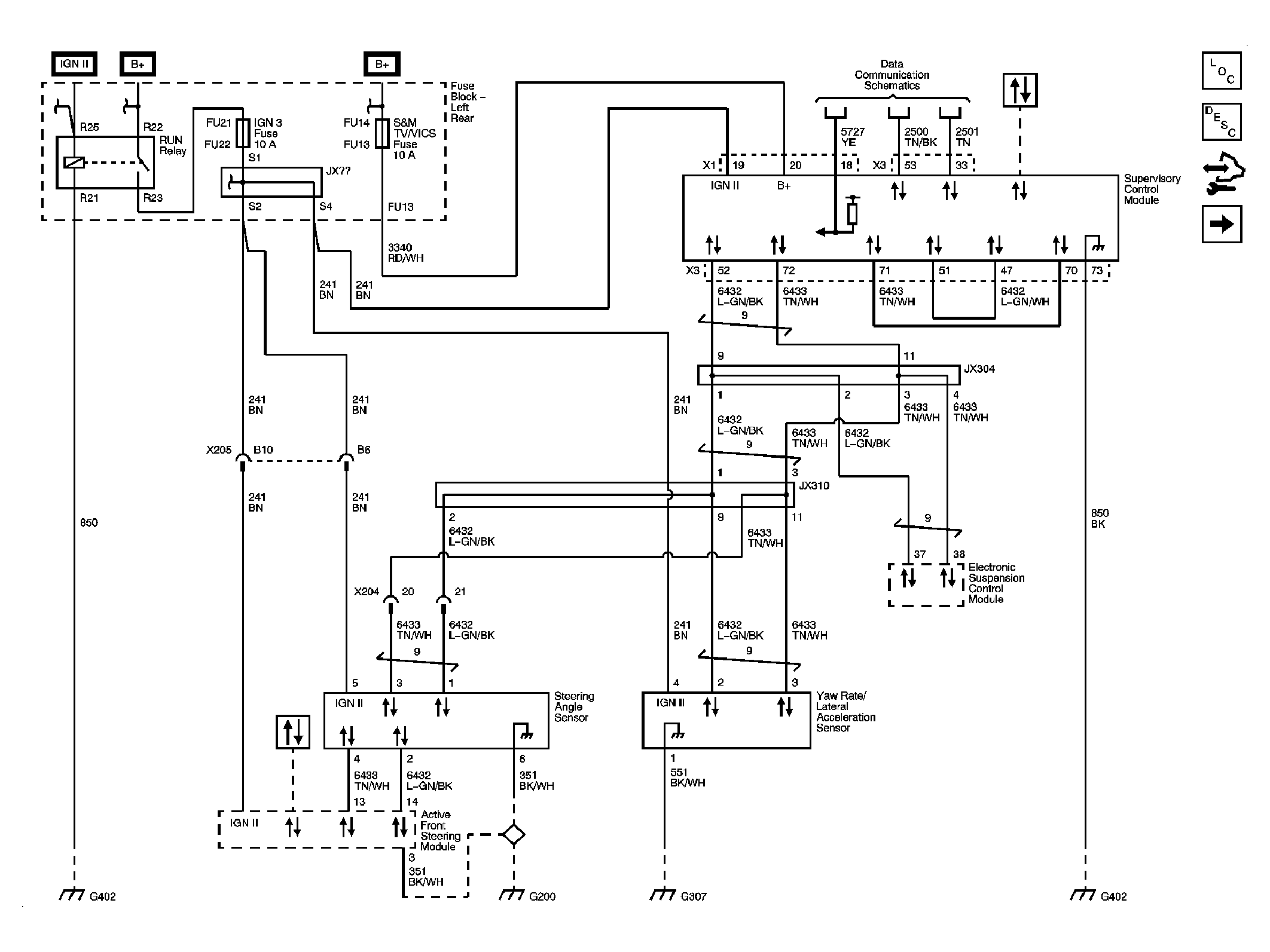
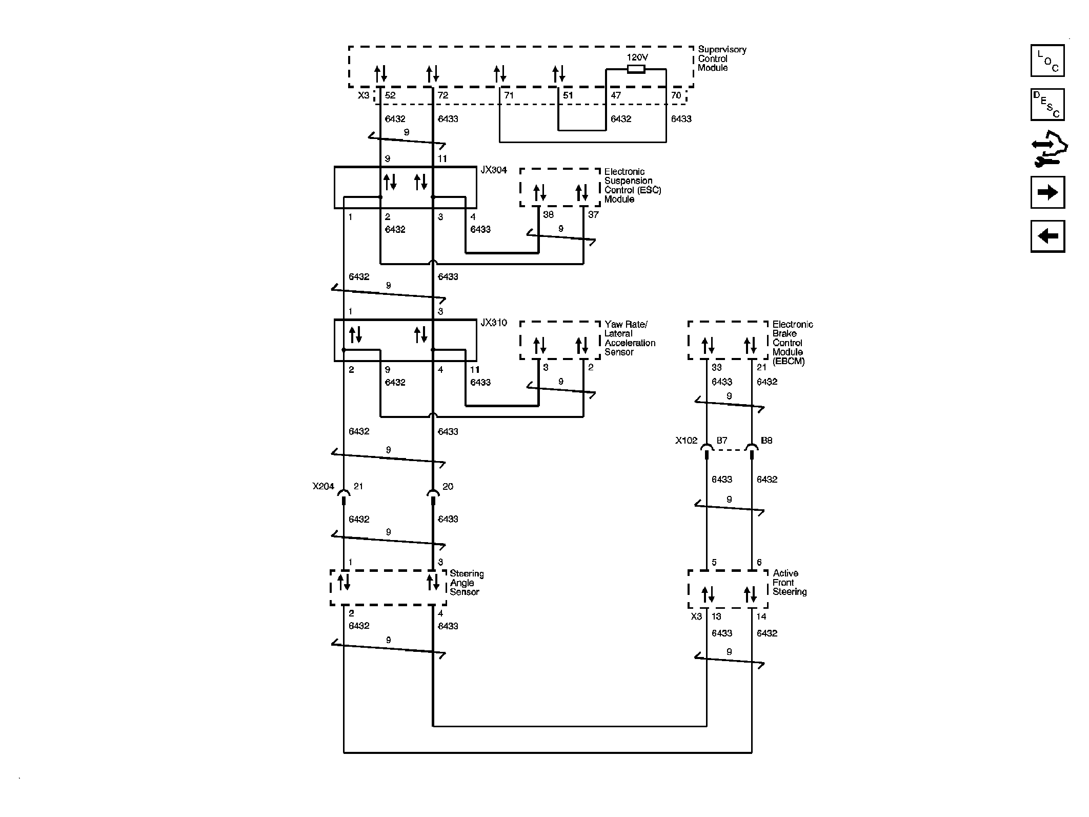
Fig 1: Steering Angle and Acceleration Sensors Schematic
GM1914945Courtesy of GENERAL MOTORS CORP.
Fig 2: Data Communication Schematic
GM1914954Courtesy of GENERAL MOTORS CORP.
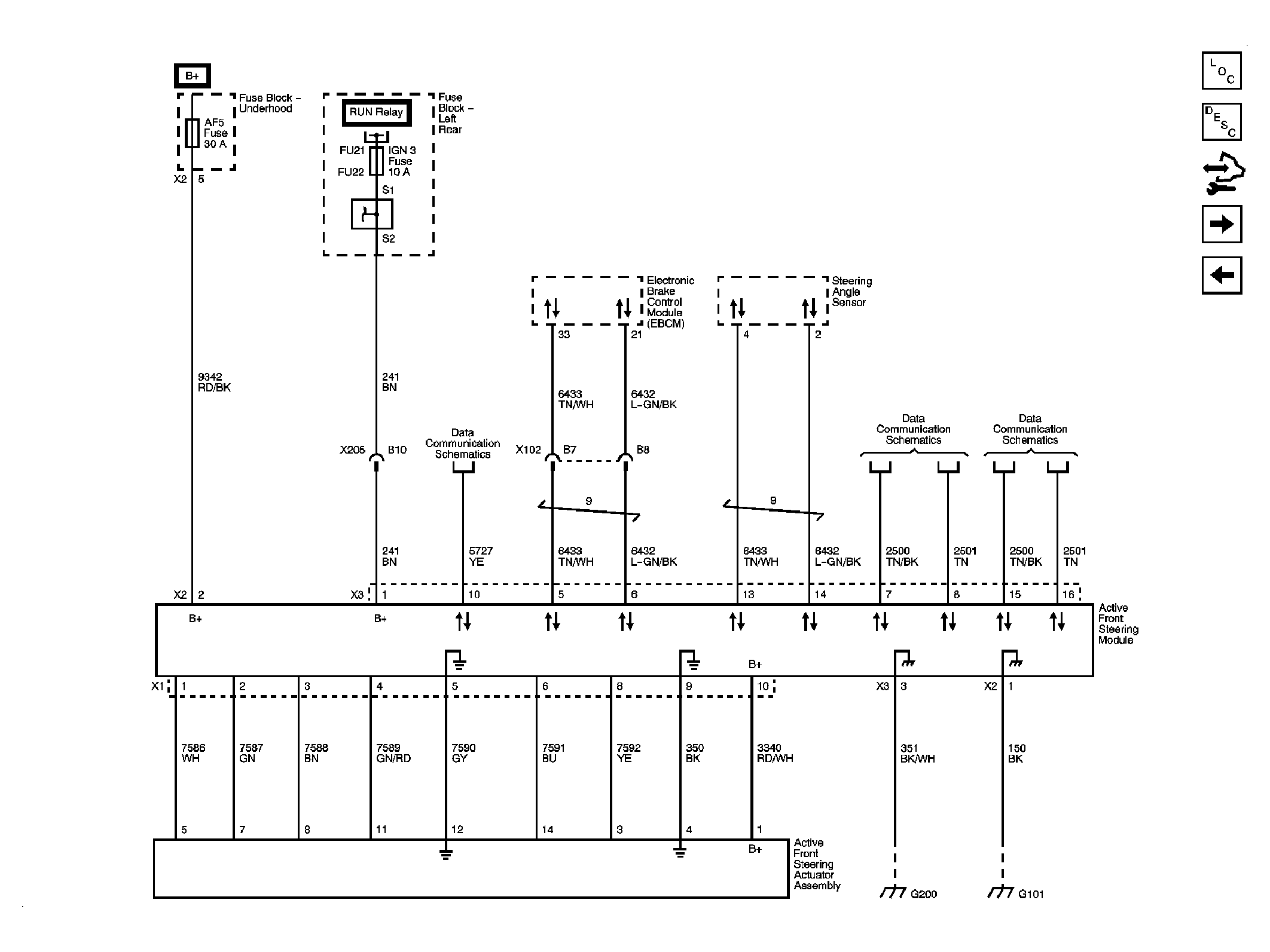
Fig 3: Active Front Steering Module and Actuator Schematic
GM1914958Courtesy of GENERAL MOTORS CORP.
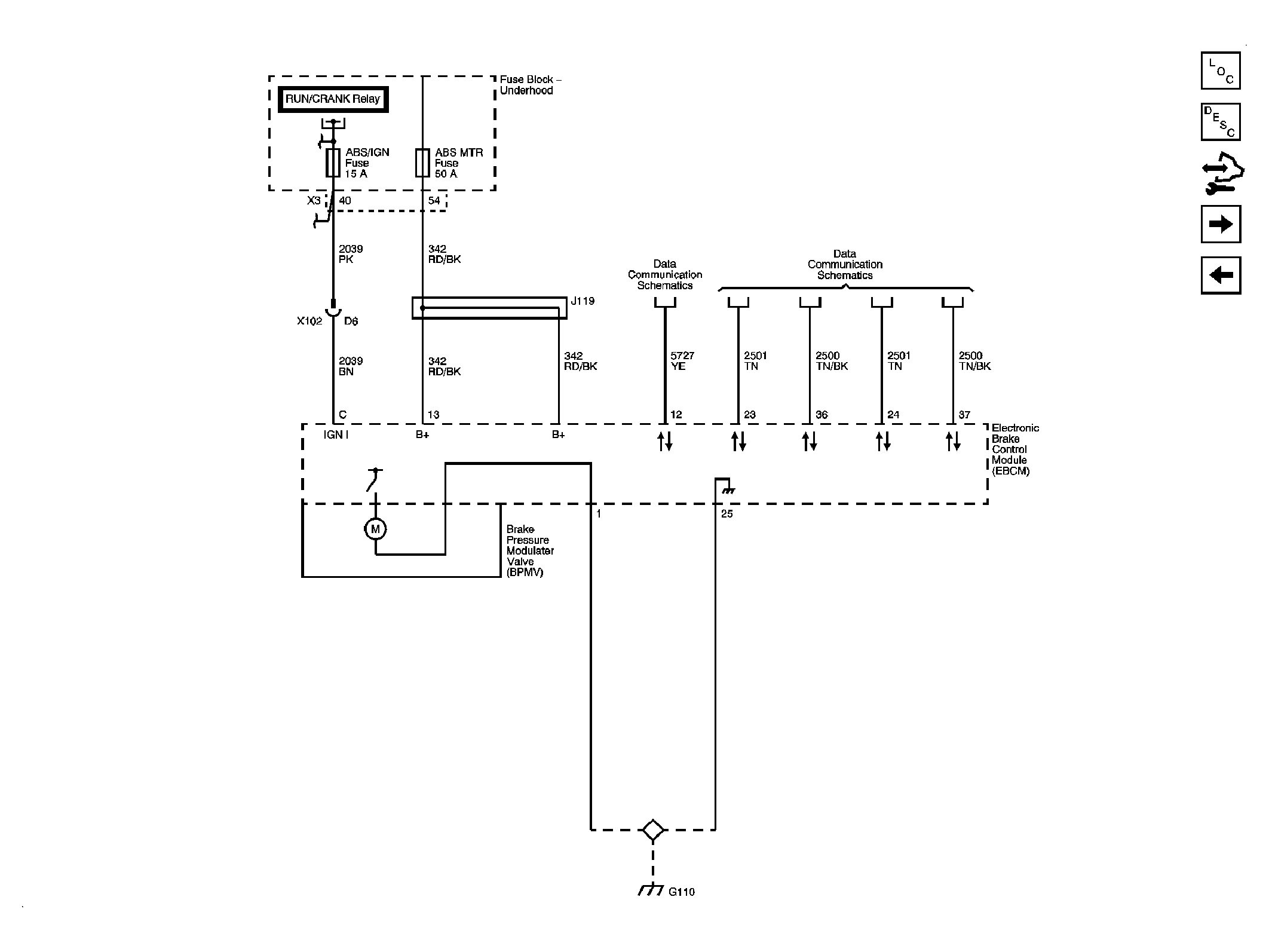
Fig 4: EBCM Power, Ground, and DLC Schematic
GM1914961Courtesy of GENERAL MOTORS CORP.
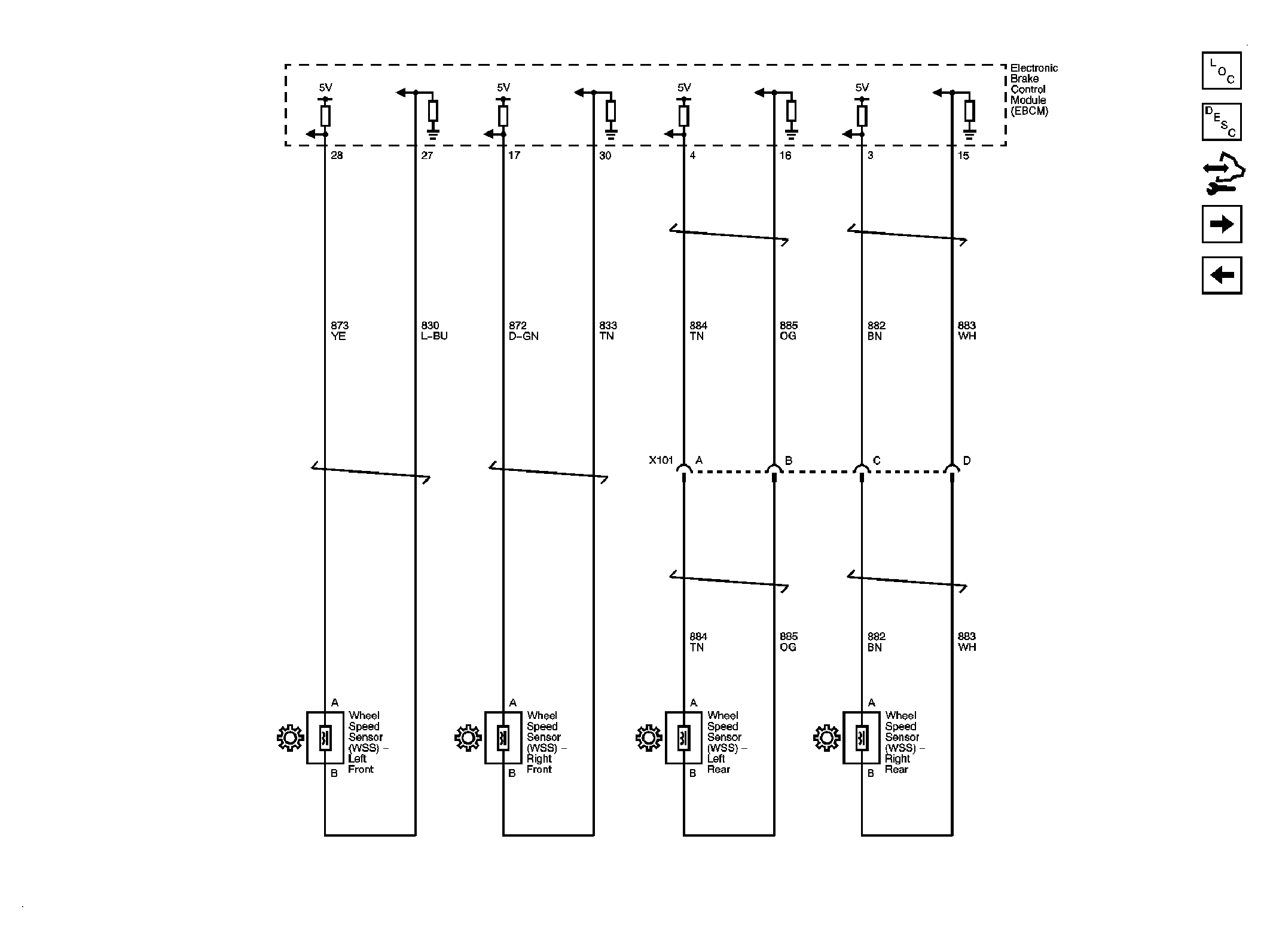
Fig 5: Wheel Speed Sensors Schematic
GM1914965Courtesy of GENERAL MOTORS CORP.
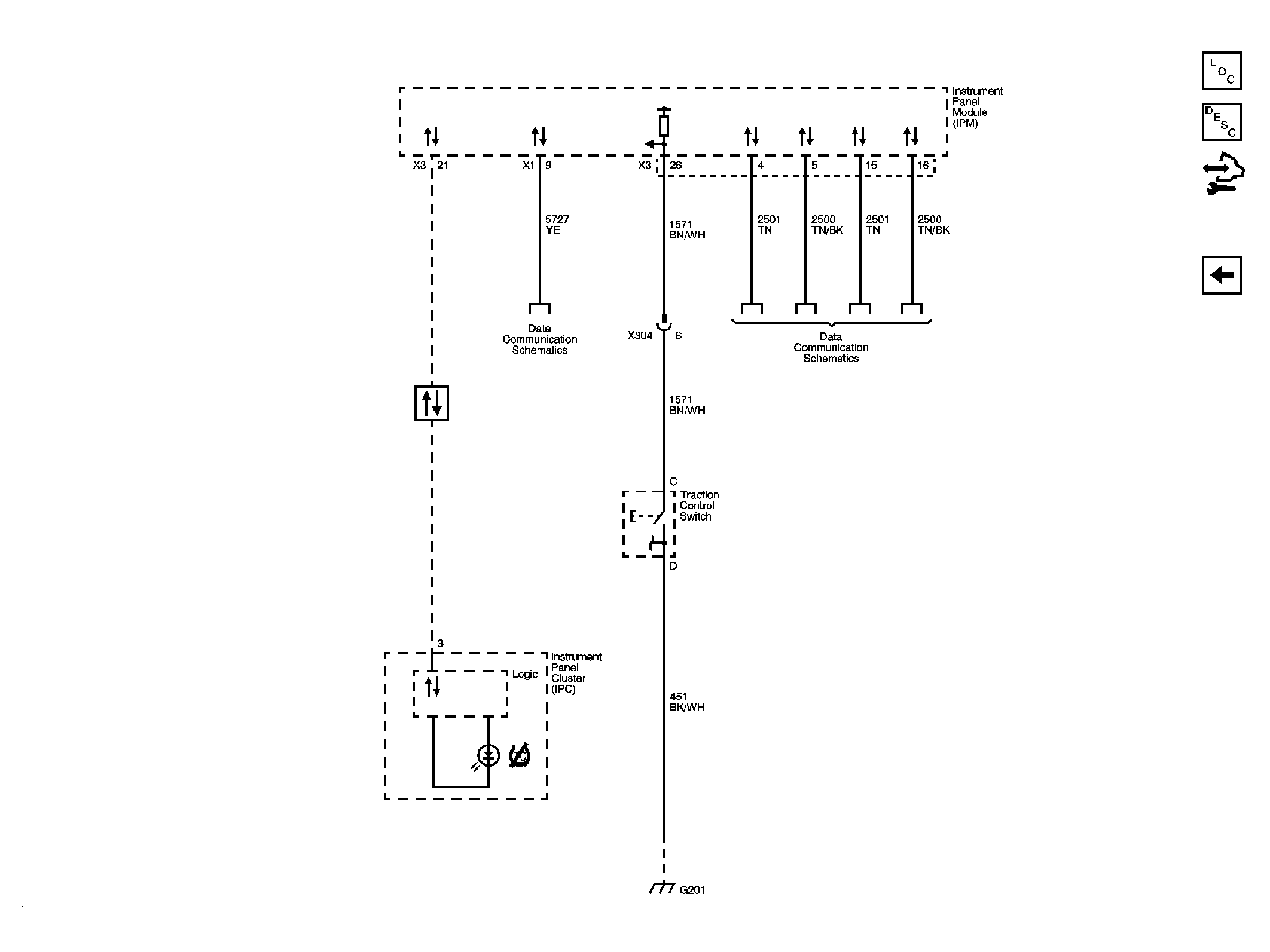
Fig 6: Traction Control Schematic
GM1914969Courtesy of GENERAL MOTORS CORP.