LEMON Manuals: Even more car manuals for everyone
Home >> Hummer >> 2008 >> H3 Base, Automatic >> Repair and Diagnosis >> External Pages >> Different car >> Section 199 (Anti-Lock Brake System, Traction Control System & Stability Control System) >> Schematic and Routing Diagrams >> Antilock Brake System Schematics (Except JL7)

Antilock Brake System Schematics (Except JL7)

WARNING: This page is about a different car, the 2008 Cadillac STS. However, it is still accessible from the selected car via links, so may be relevant.
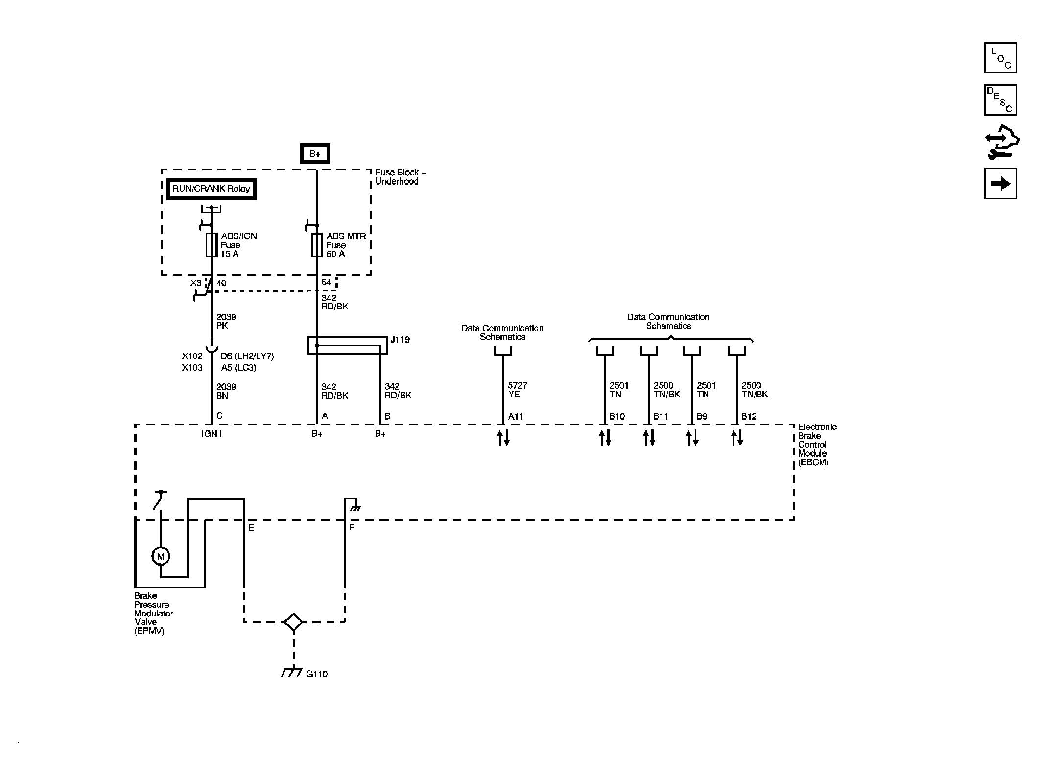
Fig 1: EBCM Module Power, Ground and DLC Schematic
GM1905986Courtesy of GENERAL MOTORS CORP.
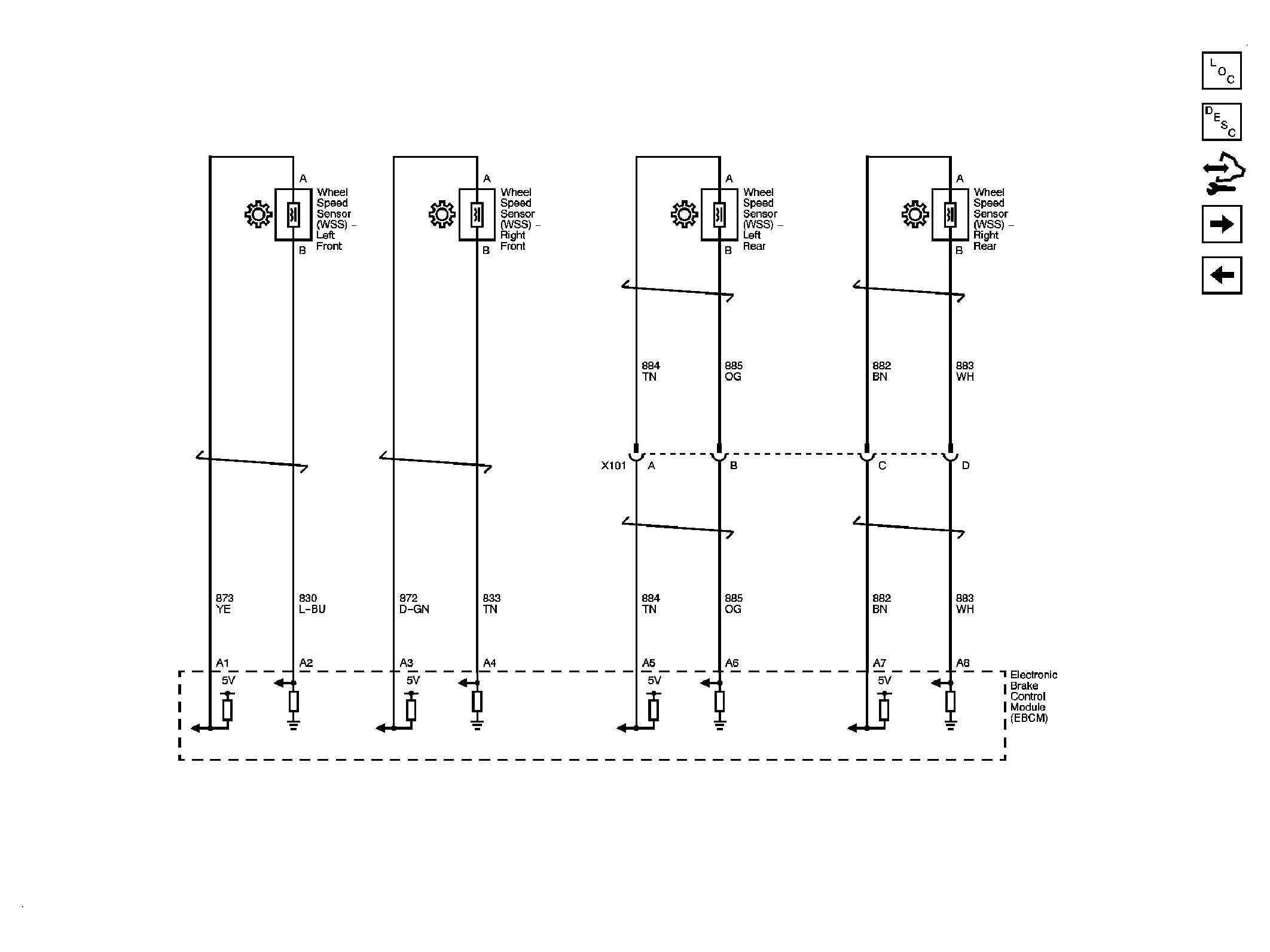
Fig 2: Wheel Speed Sensors Schematic
GM1905988Courtesy of GENERAL MOTORS CORP.
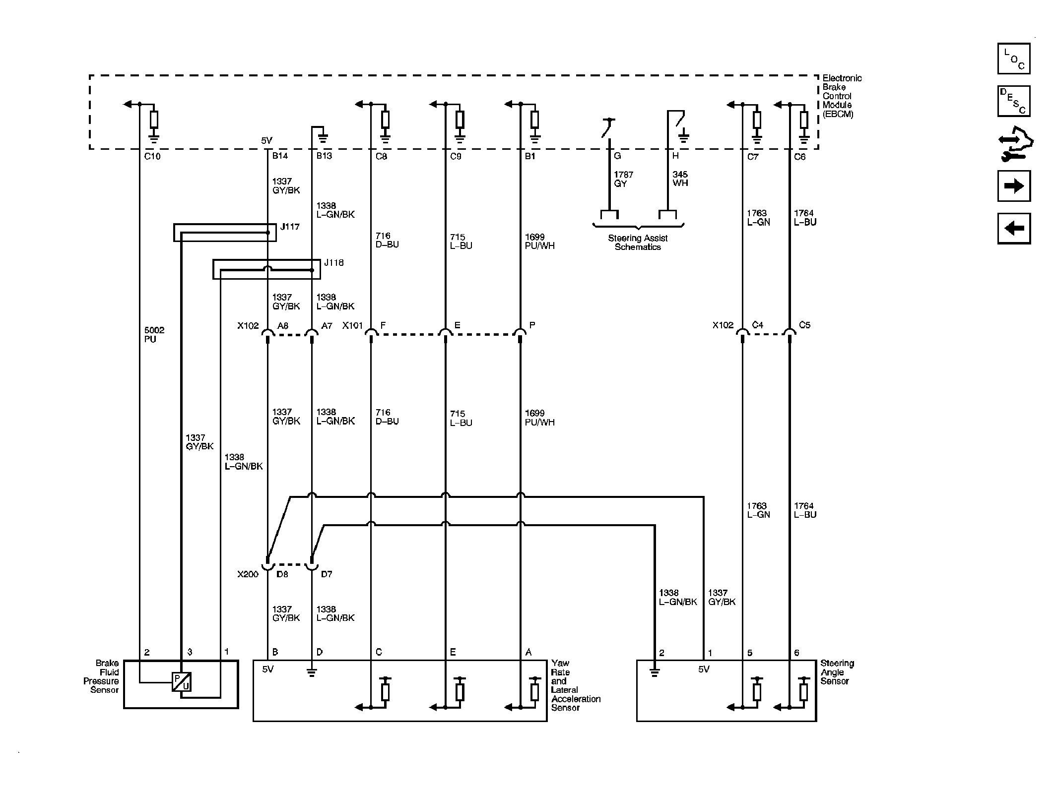
Fig 3: Stability Control System Schematic
GM1905990Courtesy of GENERAL MOTORS CORP.
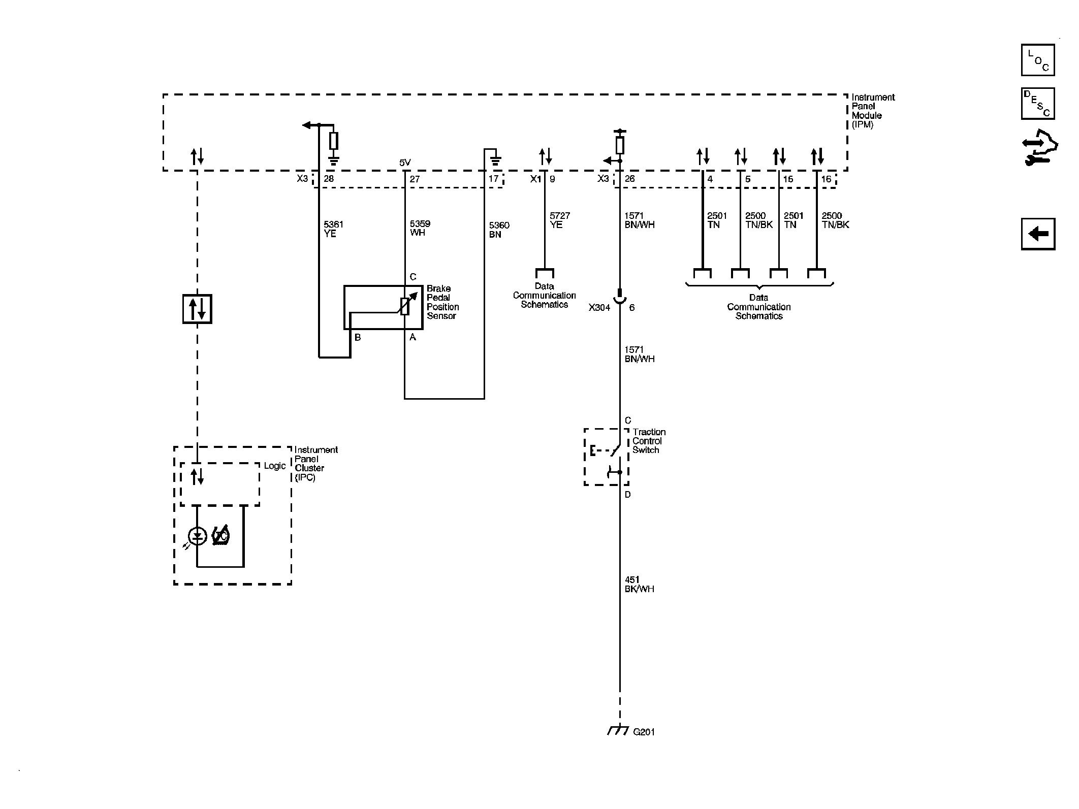
Fig 4: Indicator and Traction Control Schematic
GM1905992Courtesy of GENERAL MOTORS CORP.