LEMON Manuals: Even more car manuals for everyone
Home >> Hummer >> 2008 >> H3 Alpha >> Repair and Diagnosis >> External Pages >> Different car >> Section 405 (Data Communication System) >> Schematic and Routing Diagrams >> Body Control System Schematics

Body Control System Schematics

WARNING: This page is about a different car, the 2009 Cadillac STS. However, it is still accessible from the selected car via links, so may be relevant.
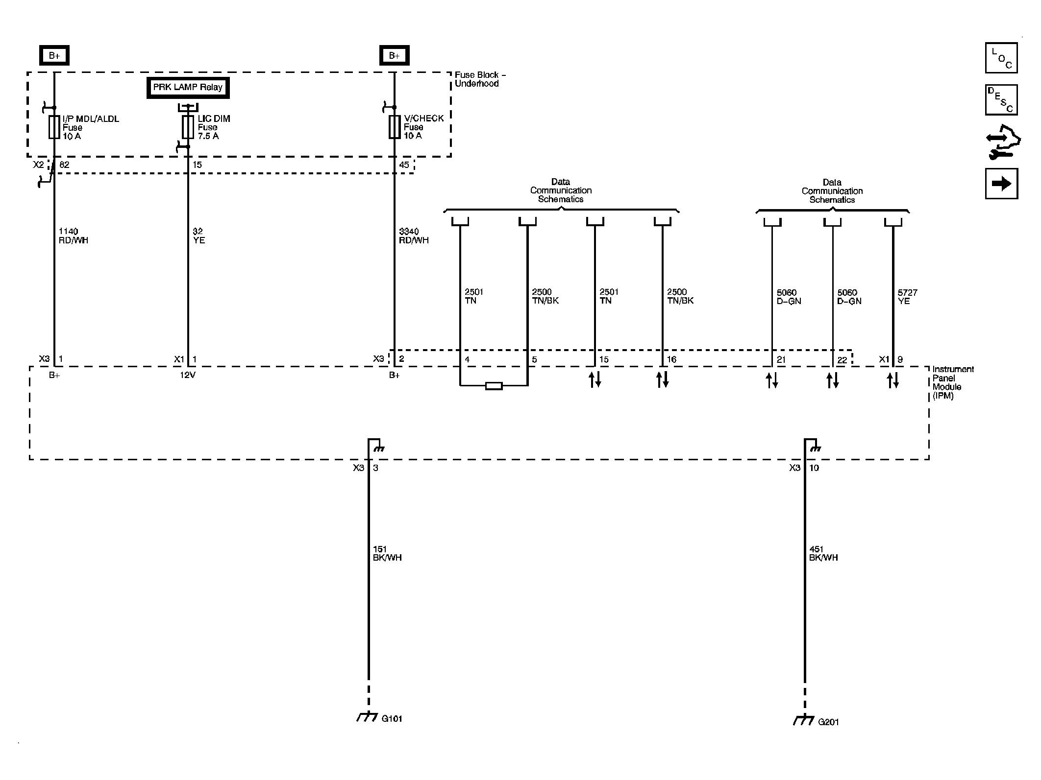
Fig 1: IPM Power, Grounds and DLC
GM2063577Courtesy of GENERAL MOTORS CORP.
Fig 2: IPM Inputs and Outputs 1 of 3
GM2063583Courtesy of GENERAL MOTORS CORP.
Fig 3: IPM Inputs and Outputs 2 of 3
GM2063588Courtesy of GENERAL MOTORS CORP.
Fig 4: IPM Inputs and Outputs 3 of 3
GM2063591Courtesy of GENERAL MOTORS CORP.
Fig 5: RIM Power, Grounds and DLC
GM2063596Courtesy of GENERAL MOTORS CORP.
Fig 6: RIM Inputs and Outputs
GM2063599Courtesy of GENERAL MOTORS CORP.