LEMON Manuals: Even more car manuals for everyone
Home >> Hummer >> 2007 >> H3 Automatic >> Repair and Diagnosis >> External Pages >> Different car >> Section 6 (Computer/Integrating Systems) >> Schematic and Routing Diagrams >> Body Control System Schematics

Body Control System Schematics

WARNING: This page is about a different car, the 2005 GMC Canyon and 2005 Chevrolet Colorado. However, it is still accessible from the selected car via links, so may be relevant.
Fig 1: Power, Ground, Serial Data & Controlled/Monitored Subsystem Reference Schematic
GM1471957Courtesy of GENERAL MOTORS CORP.
Fig 2: Subsystem References To Theft, Horn, Seat Belt, Outside Mirror, RAP, Brake Warning, ABS & Wiper/Washer Systems Schematic
GM1472004Courtesy of GENERAL MOTORS CORP.
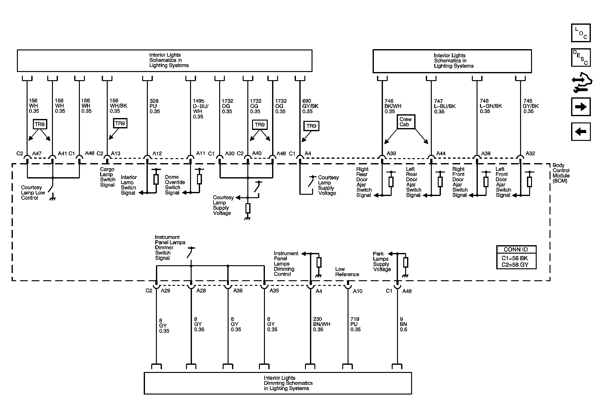
Fig 3: Subsystem References To Interior Light & Interior Lights Dimming Systems Schematic
GM1472044Courtesy of GENERAL MOTORS CORP.
Fig 4: Lighting System Reference Schematic
GM1472144Courtesy of GENERAL MOTORS CORP.