LEMON Manuals: Even more car manuals for everyone
Home >> GMC >> 2015 >> Terrain SL, Gas >> Repair and Diagnosis >> Engine Performance >> System >> Data Communication System >> Schematic Wiring Diagrams >> Body Control System Wiring Schematics >> Module Power, Grounds, and Subsystem References (1 of 4)

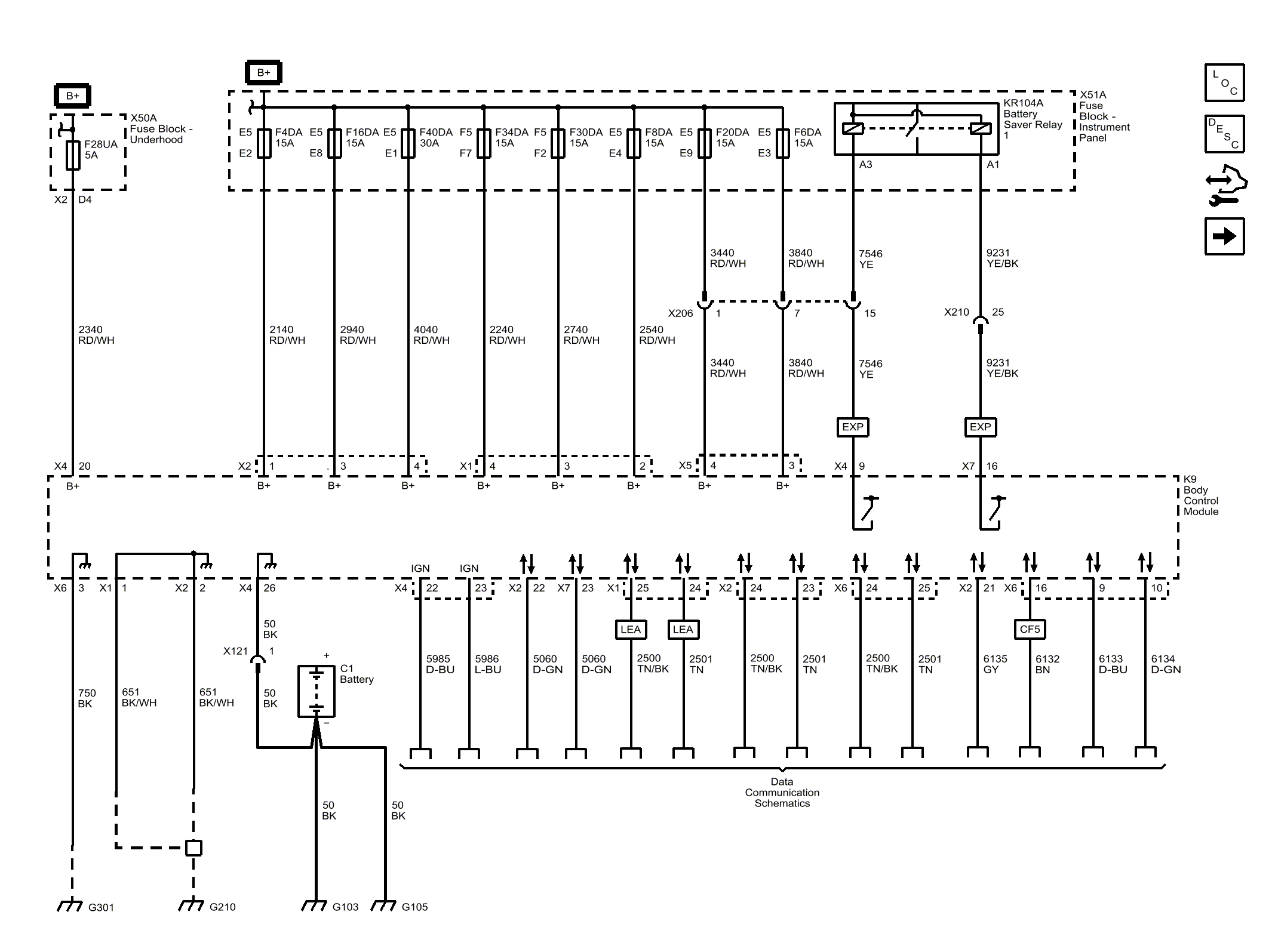
Module Power, Grounds, and Subsystem References (1 of 4)

Fig 1: Module Power, Grounds, and Subsystem References (1 of 4)
GM3804496Courtesy of GENERAL MOTORS COMPANY