LEMON Manuals: Even more car manuals for everyone
Home >> GMC >> 2007 >> Acadia SLT, AWD >> Repair and Diagnosis >> External Pages >> Different car >> Section 220 (Keyless Entry System And Remote Functions) >> Schematic and Routing Diagrams >> Remote Function Schematics

Remote Function Schematics

WARNING: This page is about a different car, the 2007 Cadillac SRX. However, it is still accessible from the selected car via links, so may be relevant.
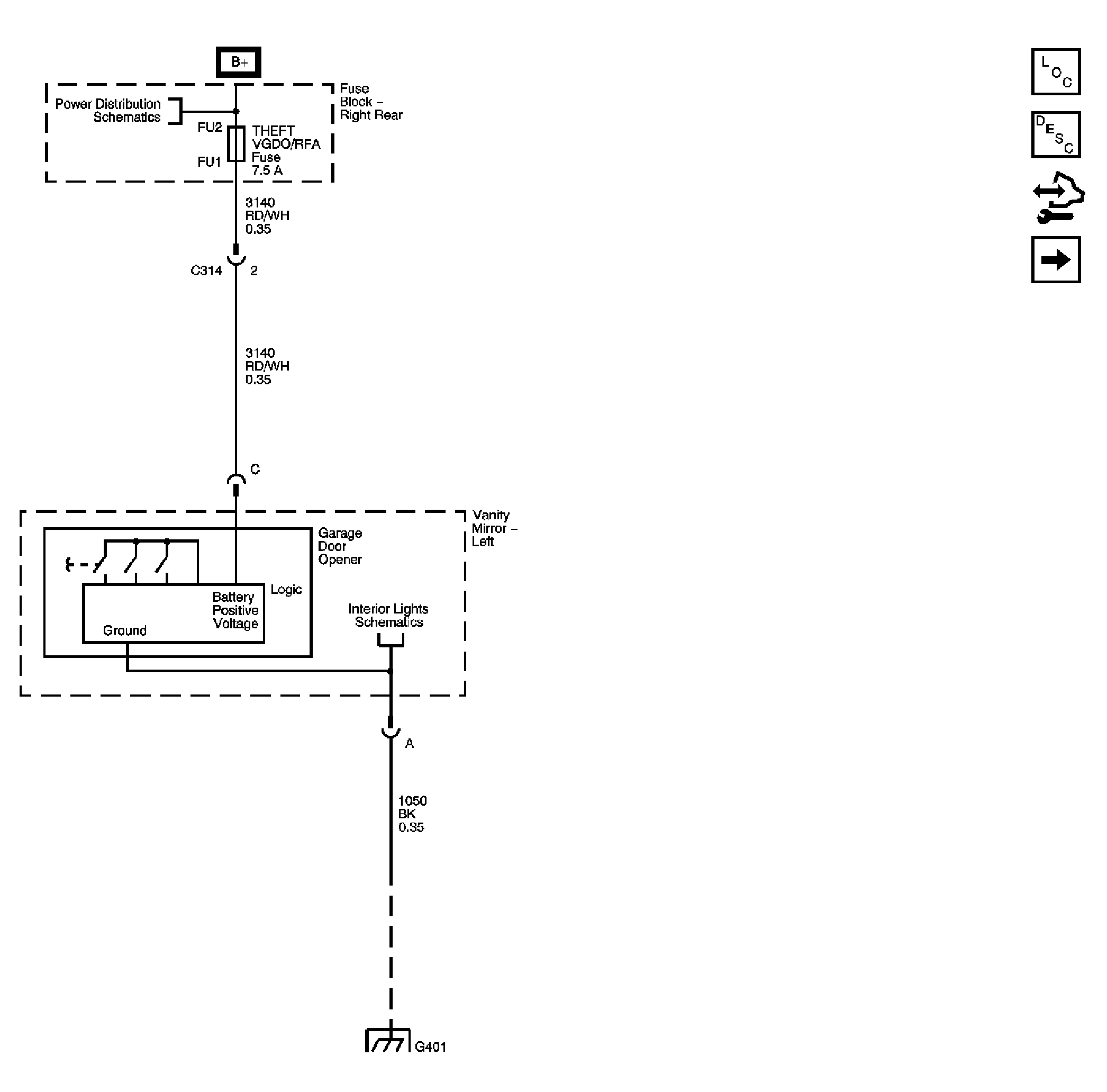
Fig 1: Garage Door Opener Schematic
GM1750424Courtesy of GENERAL MOTORS CORP.
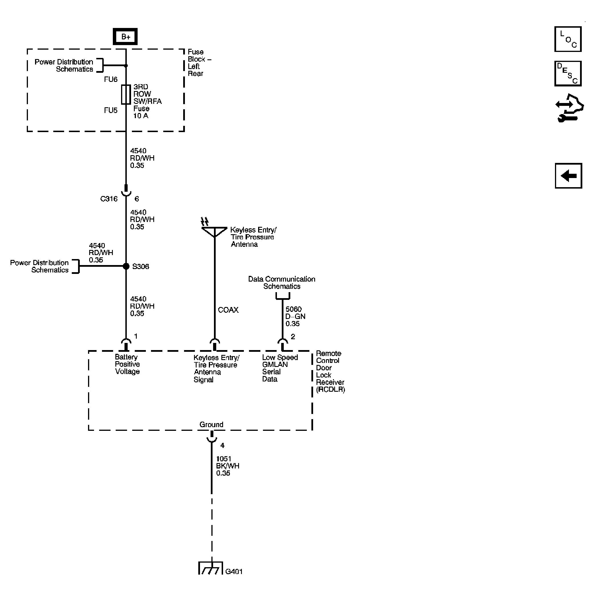
Fig 2: Keyless Entry Schematic
GM1750428Courtesy of GENERAL MOTORS CORP.