LEMON Manuals: Even more car manuals for everyone
Home >> GMC >> 2002 >> Jimmy 2D Utility, Part Time, Automatic >> Repair and Diagnosis >> External Pages >> Different car >> Section 1960 (Engine Controls And Fuel - 3.5L - Introduction) >> Schematic and Routing Diagrams >> Engine Controls Schematics

Engine Controls Schematics

WARNING: This page is about a different car, the 2009 Saturn Vue. However, it is still accessible from the selected car via links, so may be relevant.
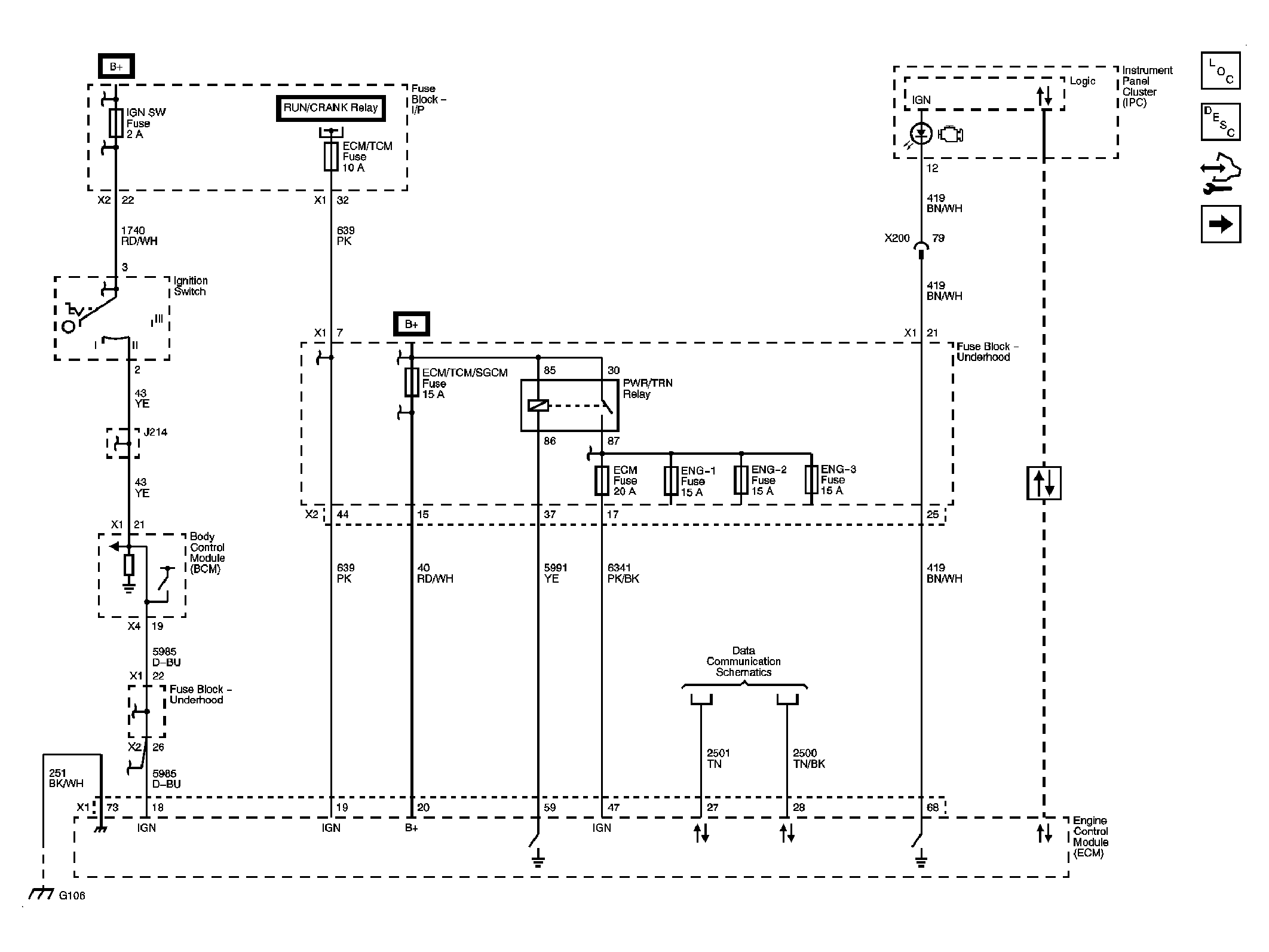
Fig 1: Module Power, Ground, Serial Data, and MIL (LZ4)
GM2079799Courtesy of GENERAL MOTORS CORP.
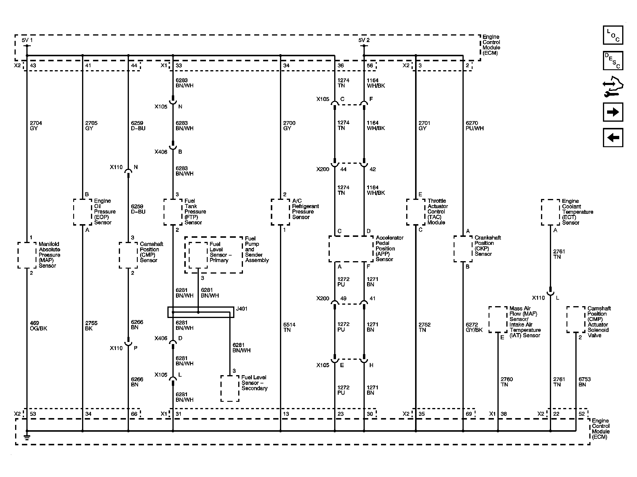
Fig 2: Engine Data Sensors - 5-Volt 1 and Low Reference (LZ4)
GM2079804Courtesy of GENERAL MOTORS CORP.
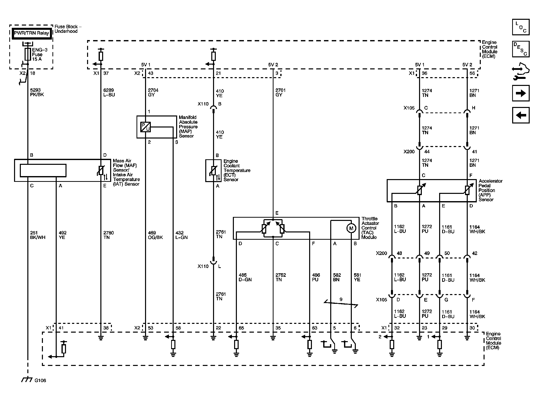
Fig 3: Engine Data Sensors - Pressure and Temperature (LZ4)
GM2079811Courtesy of GENERAL MOTORS CORP.
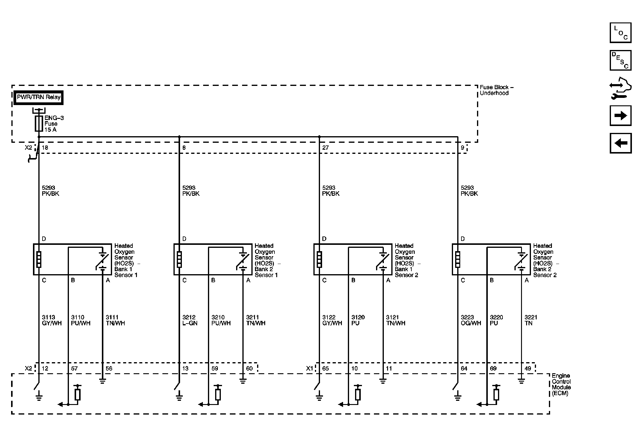
Fig 4: Engine Data Sensors - Heated Oxygen Sensors (HO2S) (LZ4)
GM2079814Courtesy of GENERAL MOTORS CORP.
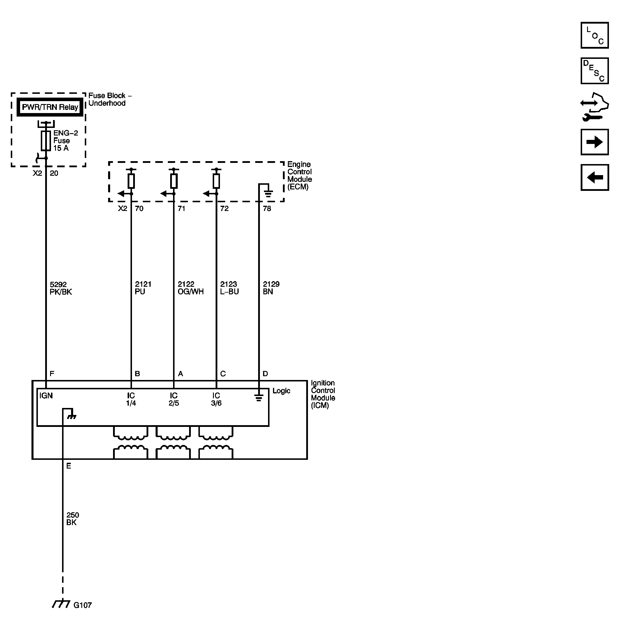
Fig 5: Ignition Controls - Ignition System (LZ4)
GM2079822Courtesy of GENERAL MOTORS CORP.
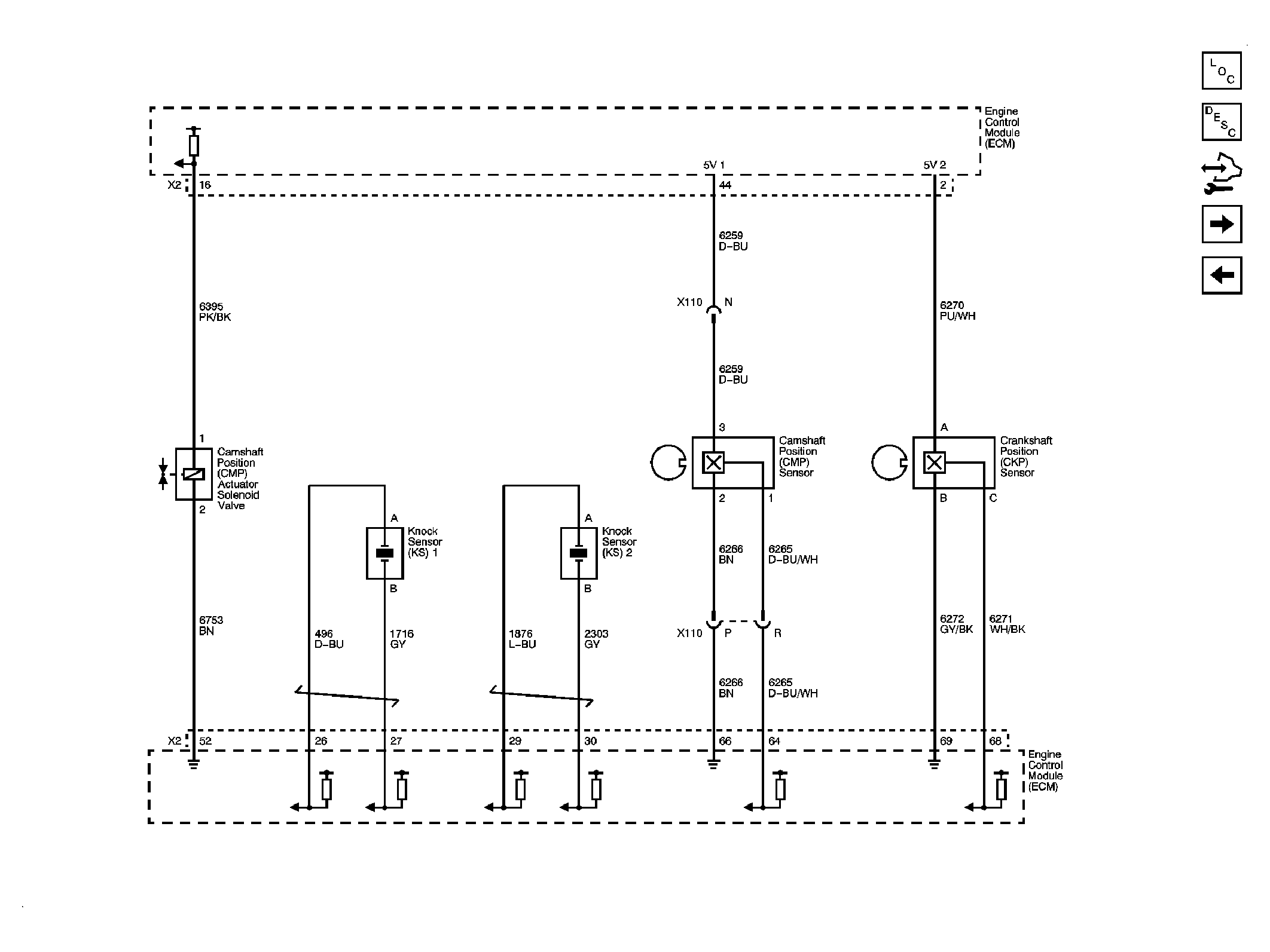
Fig 6: Ignition Controls - CKP and KS Sensors (LZ4)
GM2079825Courtesy of GENERAL MOTORS CORP.
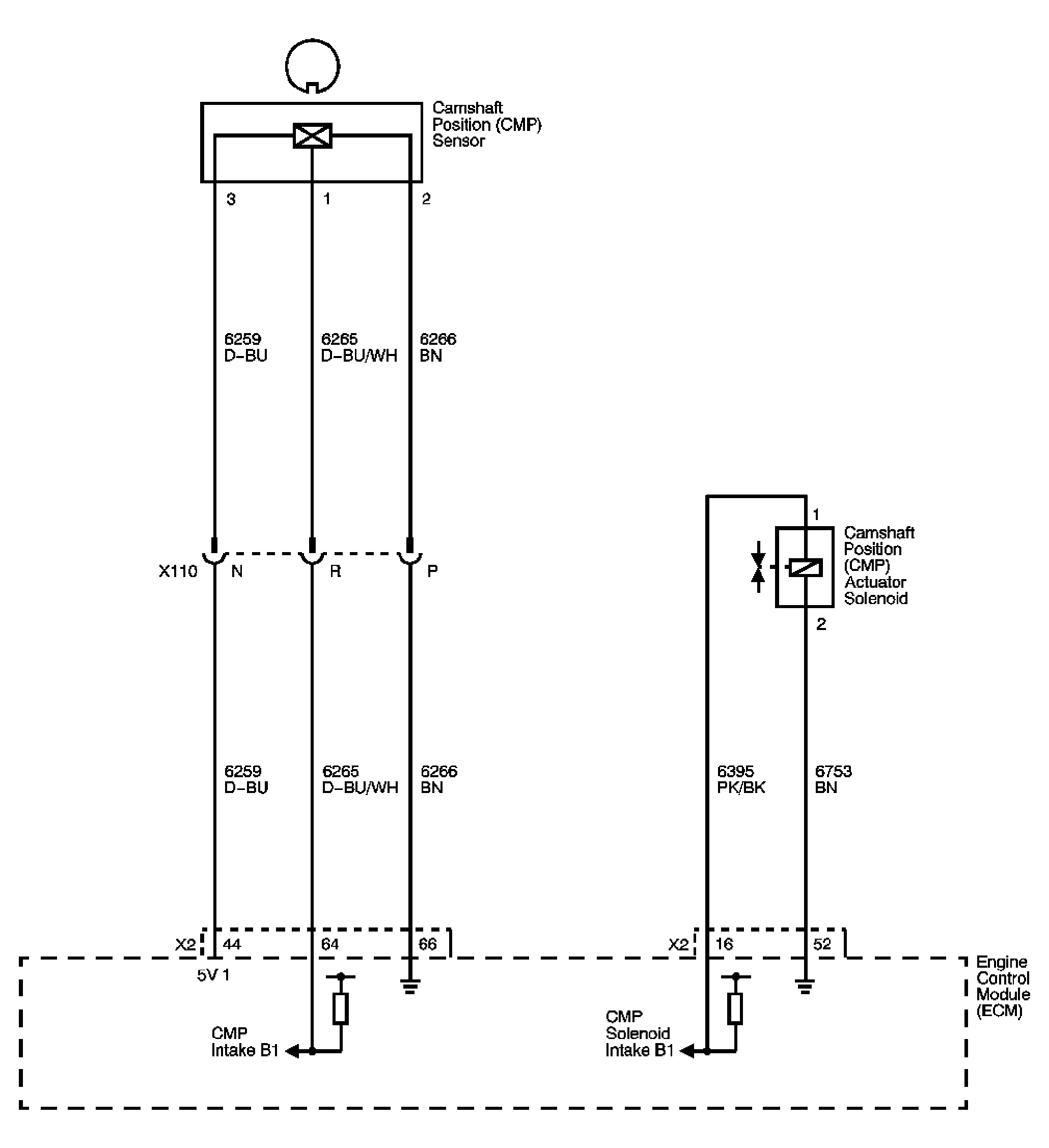
Fig 7: Ignition Controls - CMP Sensors and Actuator Solenoids (LZ4)
GM2079832Courtesy of GENERAL MOTORS CORP.
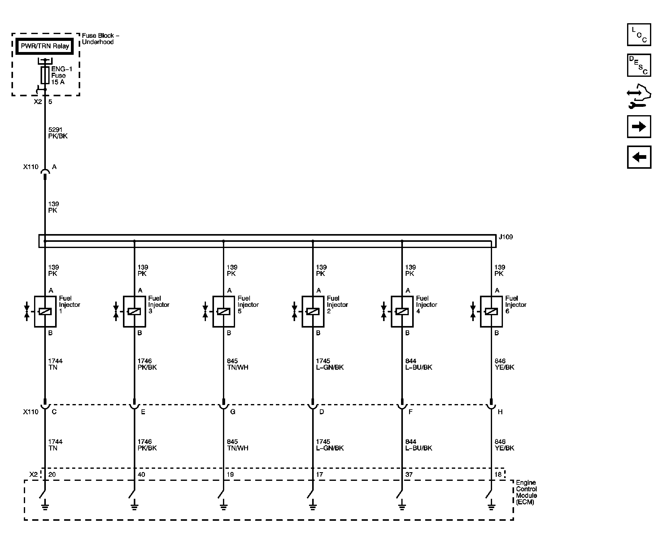
Fig 8: Fuel Controls - Fuel Injectors (LZ4)
GM2079836Courtesy of GENERAL MOTORS CORP.
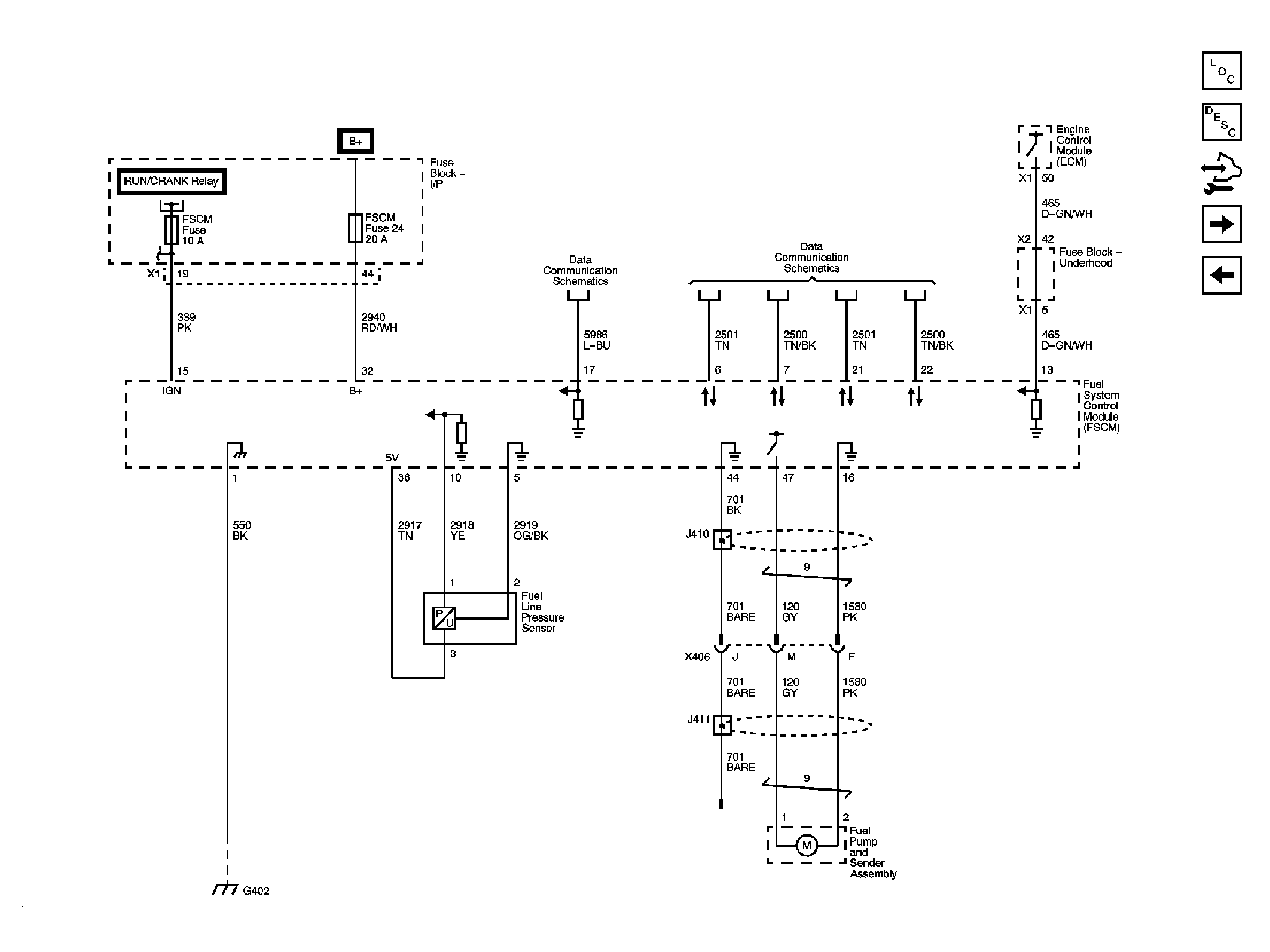
Fig 9: Fuel Controls - Fuel Pump Controls (LZ4)
GM2079841Courtesy of GENERAL MOTORS CORP.
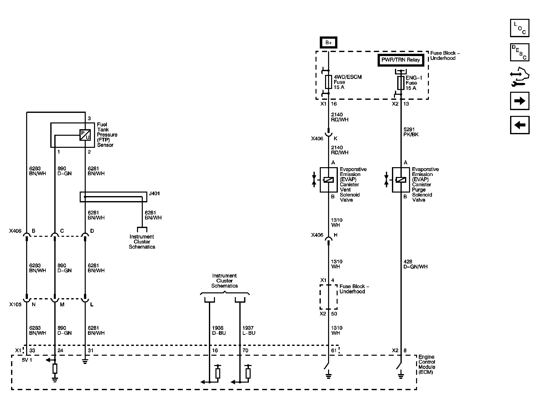
Fig 10: Fuel Controls - Evaporative Emissions (EVAP) Controls (LZ4)
GM2079846Courtesy of GENERAL MOTORS CORP.
Fig 11: Controlled/Monitored Subsystem References (LZ4)
GM2079848Courtesy of GENERAL MOTORS CORP.