LEMON Manuals: Even more car manuals for everyone
Home >> GMC >> 1993 >> Forward Control 4.3 Z, Automatic >> Repair and Diagnosis >> Engine Performance >> System >> Engine Controls - System/Component Tests >> Miscellaneous ECM Controls >> Chart C-12A, Cooling Fan Circuit Diagnosis 3.8L >> Overview

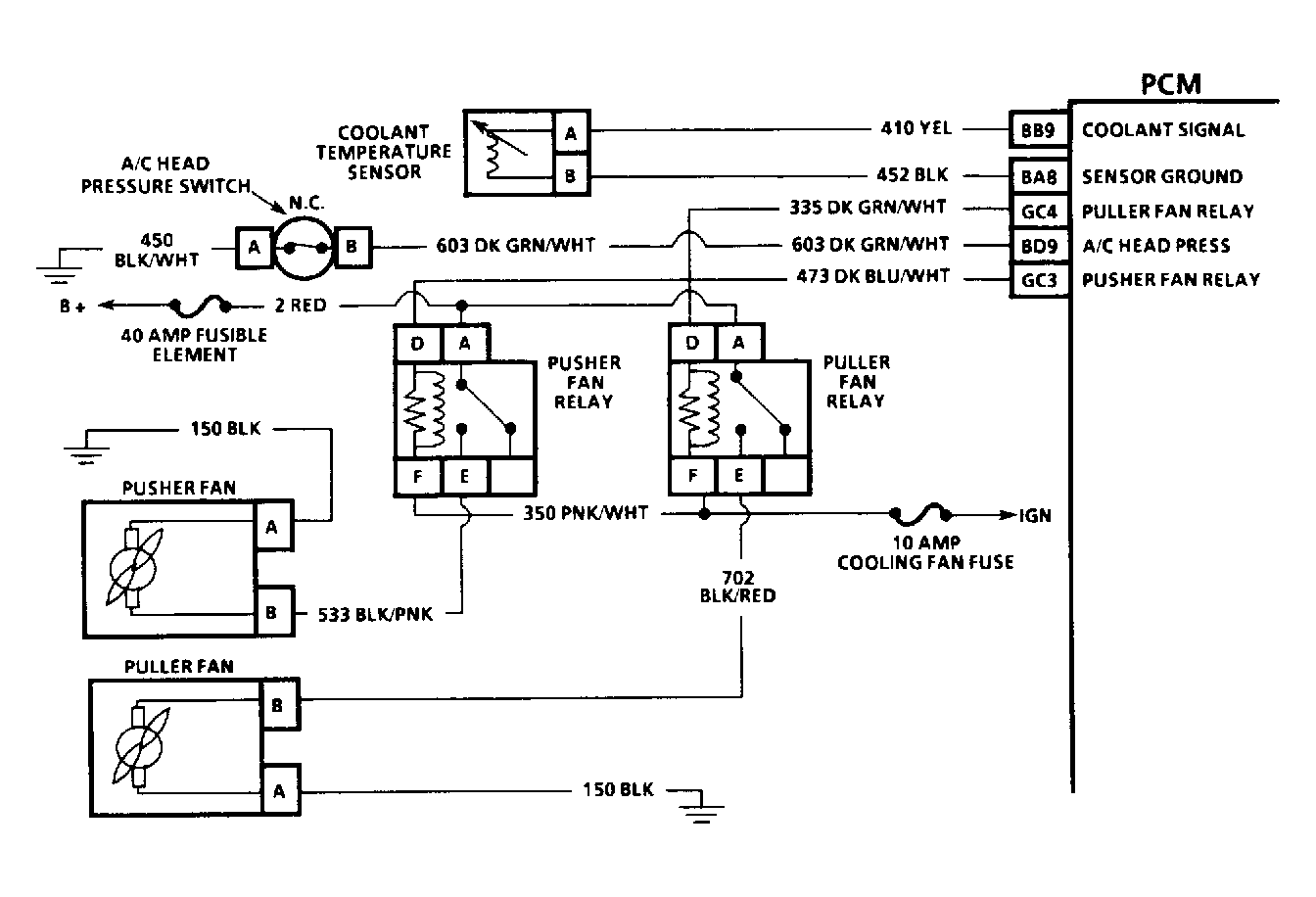
Chart C-12A, Cooling Fan Circuit Diagnosis 3.8L: Overview

NOTE: Test numbers refer to numbers on diagnostic charts.
  1. Checks if circuit No. 335 is shorted to ground, keeping relay closed at all times.
  2. Checks if circuit No. 473 is shorted to ground. An illuminated test light, indicates wire is shorted to ground.
  3. If test light is off after disconnecting PCM, ensure circuit No. 335 is not shorted to B+. If circuit is not shorted to B+, PCM is shorted internally.
  4. If test light is off after disconnecting PCM, ensure circuit No. 473 is not shorted to B+. If circuit is not shorted to B+, PCM is shorted internally.
Fig 1: Cooling Fan Circuit Schematic (3.8L)
G92B15918Courtesy of GENERAL MOTORS CORP.
Fig 2: Cooling Fan System Flow Chart (3.8L) (2 Of 4)
G92F15920Courtesy of GENERAL MOTORS CORP.


NOTE: Test numbers refer to numbers on diagnostic charts.
  1. Checks for battery voltage at relay harness connector.
  2. Jumpering cooling fan relay terminals "A" and "E" by-passes relay, causing fans to operate, if fan motors and wiring are okay.
  3. Grounding test terminals should cause PCM to ground circuit No. 335. At this point, test light should illuminate, if PCM is good and circuit No. 335 is not open.
  4. Checks for battery voltage and ground to fan motor. Test light illuminated at this point indicates a faulty fan motor connection or motor.
Fig 1: Cooling Fan Circuit Schematic (3.8L)
G92B15918Courtesy of GENERAL MOTORS CORP.
Fig 2: Cooling Fan System Flow Chart (3.8L) (3 Of 4)
G92G15921Courtesy of GENERAL MOTORS CORP.


NOTE: Test numbers refer to numbers on diagnostic charts.
  1. Test light should be illuminated because harness terminal "F" has battery voltage with ignition in ON position.
  2. Jumpering relay harness terminals "A" and "E" by-passes relay. If fan runs, relay is faulty.
  3. Checks circuit No. 473 back to PCM. If circuit No. 473 is okay, relay is bad.
  4. Checks wiring to cooling fan motor. If wiring is okay, problem is in connections, motor or motor ground.
Fig 1: Cooling Fan Circuit Schematic (3.8L)
G92B15918Courtesy of GENERAL MOTORS CORP.
Fig 2: Cooling Fan System Flow Chart (3.8L) (4 Of 4)
G92H15922Courtesy of GENERAL MOTORS CORP.
Fig 3: Cooling Fan Circuit Schematic & Flow Chart (7.4L G, C & K Series With A/C)
G104089Courtesy of GENERAL MOTORS CORP.