LEMON Manuals: Even more car manuals for everyone
Home >> Chrysler >> 2007 >> Crossfire Base, 2D Convertible >> Repair and Diagnosis >> External Pages >> Different car >> Section 16 ((Electronic Control Modules - Electrical Diagnostics)) >> Electronic Control Modules - Electrical Diagnostics >> DTC Troubleshooting >> DTC 9090: Fused Ignition Can Message >> Notes

DTC 9090: Fused Ignition Can Message: Notes

WARNING: This page is about a different car, the 2007 Dodge Sprinter. However, it is still accessible from the selected car via links, so may be relevant.
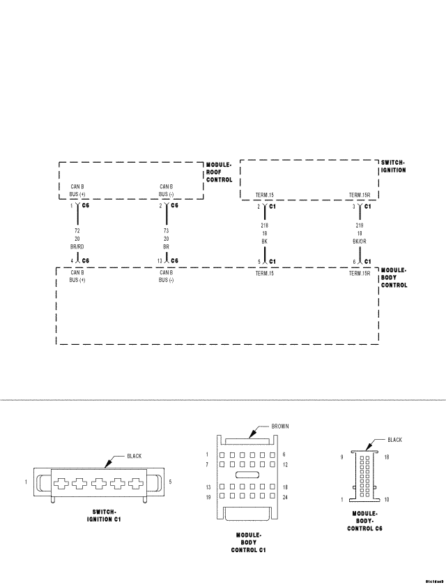
Fig 1: Fused Ignition CAN Circuit Schematic
GC0065417Courtesy of CHRYSLER LLC

For complete wiring diagrams refer to SYSTEM WIRING DIAGRAMS article.

  1. When Monitored: 

    With the ignition on.

  2. Set Condition: 

    The actual value of the Fused Ignition circuit supplied by the Body Control Module (BCM) over the CAN Bus is implausible.

Possible Causes 
FUSED IGNITION CIRCUIT OPEN
FUSED IGNITION CIRCUIT SHORTED TO GROUND
BODY CONTROL MODULE