LEMON Manuals: Even more car manuals for everyone
Home >> Chevrolet >> 2013 >> Traverse LS, AWD >> Repair and Diagnosis >> External Pages >> Different car >> Section 210 (Cellular System, Entertainment System, And Navigation System - Schematic Wiring Diagrams) >> Schematic Wiring Diagrams >> Radio/Navigation System Wiring Schematics >> Navigation Power, Ground, Serial Data, and Signals (NQU)

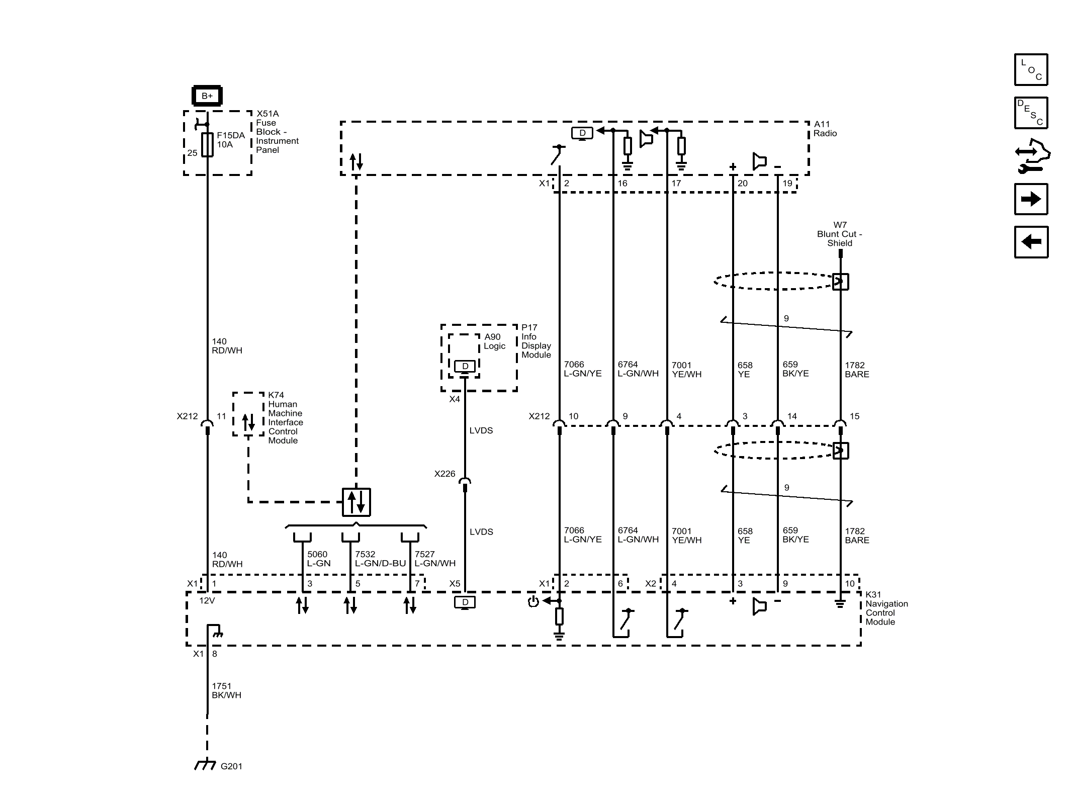
Navigation Power, Ground, Serial Data, and Signals (NQU)

WARNING: This page is about a different car, the 2015 Cadillac SRX. However, it is still accessible from the selected car via links, so may be relevant.
Fig 1: Navigation Power, Ground, Serial Data, and Signals (NQU)
GM3779298Courtesy of GENERAL MOTORS COMPANY