LEMON Manuals: Even more car manuals for everyone
Home >> Chevrolet >> 2009 >> Traverse LS, AWD >> Repair and Diagnosis >> External Pages >> Different car >> Section 154 (Keyless Entry System And Remote Functions) >> Wiring Schematics >> Keyless Entry System And Remote Function System Wiring Schematics >> Garage Door Opener (UG1)

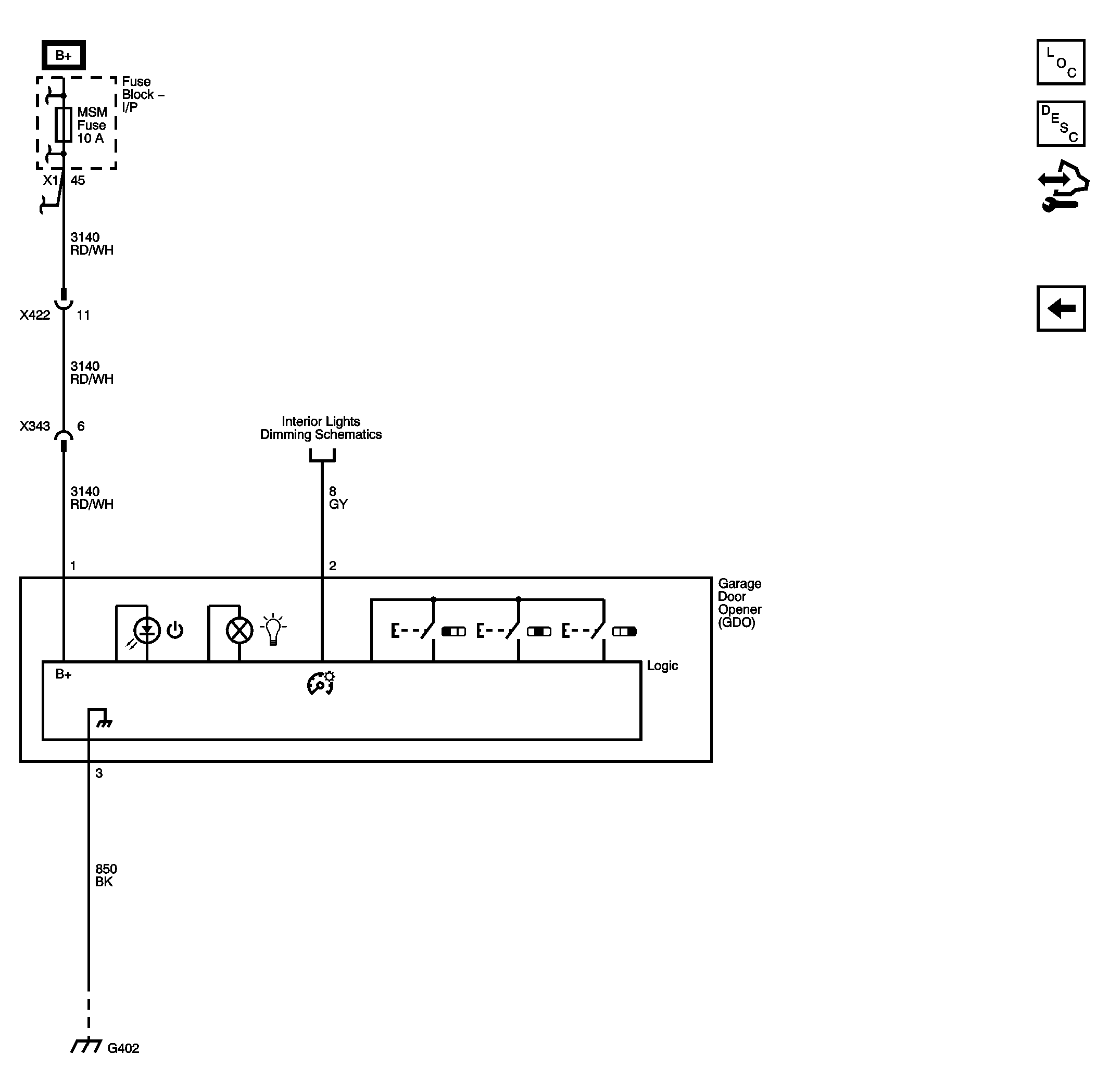
Garage Door Opener (UG1)

WARNING: This page is about a different car, the 2011 GMC Acadia, 2011 Chevrolet Traverse, and 2011 Buick Enclave. However, it is still accessible from the selected car via links, so may be relevant.
Fig 1: Garage Door Opener (UG1) Wiring Schematic
GM2382057Courtesy of GENERAL MOTORS CORP.