LEMON Manuals: Even more car manuals for everyone
Home >> Chevrolet >> 2004 >> Malibu Base >> Repair and Diagnosis >> Engine Performance >> System >> Engine Control System (Introduction) - 2.2L (L61) >> Repair Instructions >> Fuel Level Sensor & Fuel Pump Module Replacement (Malibu MAXX) >> Installation Procedure

Installation Procedure

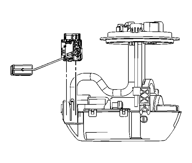
    Fig 1: View Of Fuel Pump Module Assembly (Malibu MAXX)
    GM1236111Courtesy of GENERAL MOTORS CORP.
  1. Carefully slide the fuel level sensor into the slots on the fuel pump module bowl.
  2. Secure the retaining tab on the sensor into the slot on the pump module bowl.
  3. Connect the fuel level sensor electrical connector to the pump module cover.
  4. Install the fuel level sensor wiring harness to the molded-in tab on the pump module bowl.
  5. Install the fuel pump module assembly. Refer to Fuel Sender Assembly Replacement (Malibu Sedan)  and Fuel Sender Assembly Replacement (Malibu MAXX) .