LEMON Manuals: Even more car manuals for everyone
Home >> Cadillac >> 2018 >> CT6 Plug-In >> Repair and Diagnosis (Single Page) >> Accessories & Equipment >> Drivers Assistance Systems - ADAS >> Driver Assistance Systems >> Schematic Wiring Diagrams >> Driver Assistance Systems Wiring Schematics (UKL) >> Active Steering Control Module Power, Ground, Serial Data, and Subsystem References

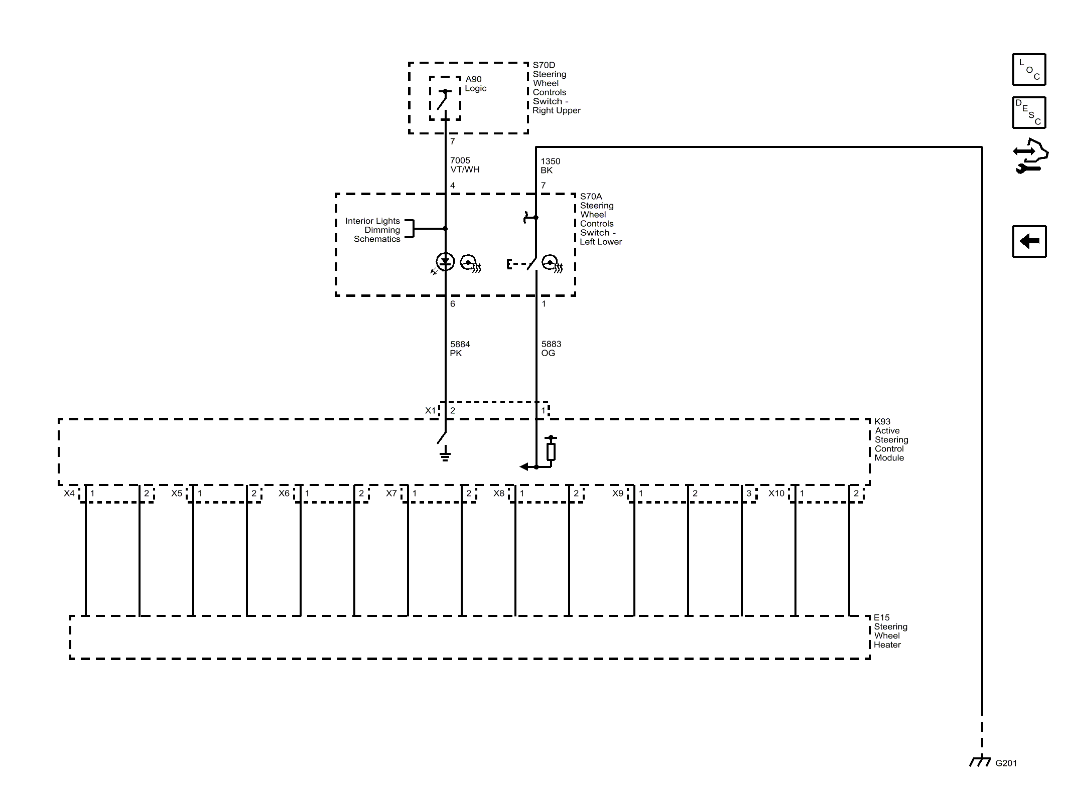
Active Steering Control Module Power, Ground, Serial Data, and Subsystem References

GM5208117