LEMON Manuals: Even more car manuals for everyone
Home >> Cadillac >> 2012 >> Escalade EXT >> Repair and Diagnosis >> External Pages >> Different car >> Section 990 (Data Communication System) >> Schematic and Routing Diagrams >> Body Control System Schematics

Body Control System Schematics

WARNING: This page is about a different car, the 2008 GMC Sierra, 2008 GMC Cab & Chassis Sierra, 2008 Chevrolet Silverado, and 2008 Chevrolet Cab & Chassis Silverado. However, it is still accessible from the selected car via links, so may be relevant.
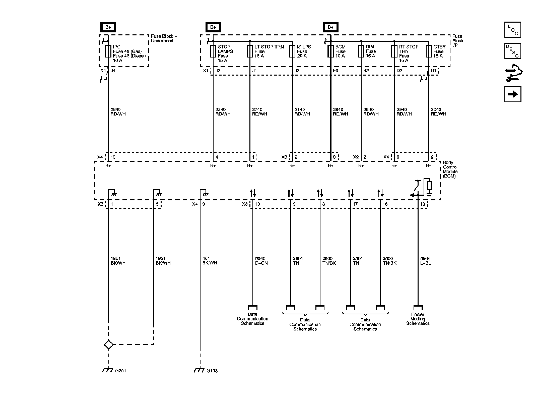
Fig 1: Module Power, Ground and Serial Data References
GM1915427Courtesy of GENERAL MOTORS CORP.
Fig 2: Power Moding and Interior Light References
GM1915432Courtesy of GENERAL MOTORS CORP.
Fig 3: Exterior Light References
GM1915491Courtesy of GENERAL MOTORS CORP.
Fig 4: Vehicle Access and Wiper References
GM1915493Courtesy of GENERAL MOTORS CORP.
Fig 5: Brake, Horn, Transmission, Theft and Secondary/Configurable References
GM1915565Courtesy of GENERAL MOTORS CORP.