LEMON Manuals: Even more car manuals for everyone
Home >> Cadillac >> 2009 >> XLR Base >> Repair and Diagnosis >> External Pages >> Different car >> Section 48 (Keyless Entry System & Remote Functions) >> Schematic and Routing Diagrams >> Remote Function Schematics

Remote Function Schematics

WARNING: This page is about a different car, the 2008 Cadillac SRX. However, it is still accessible from the selected car via links, so may be relevant.
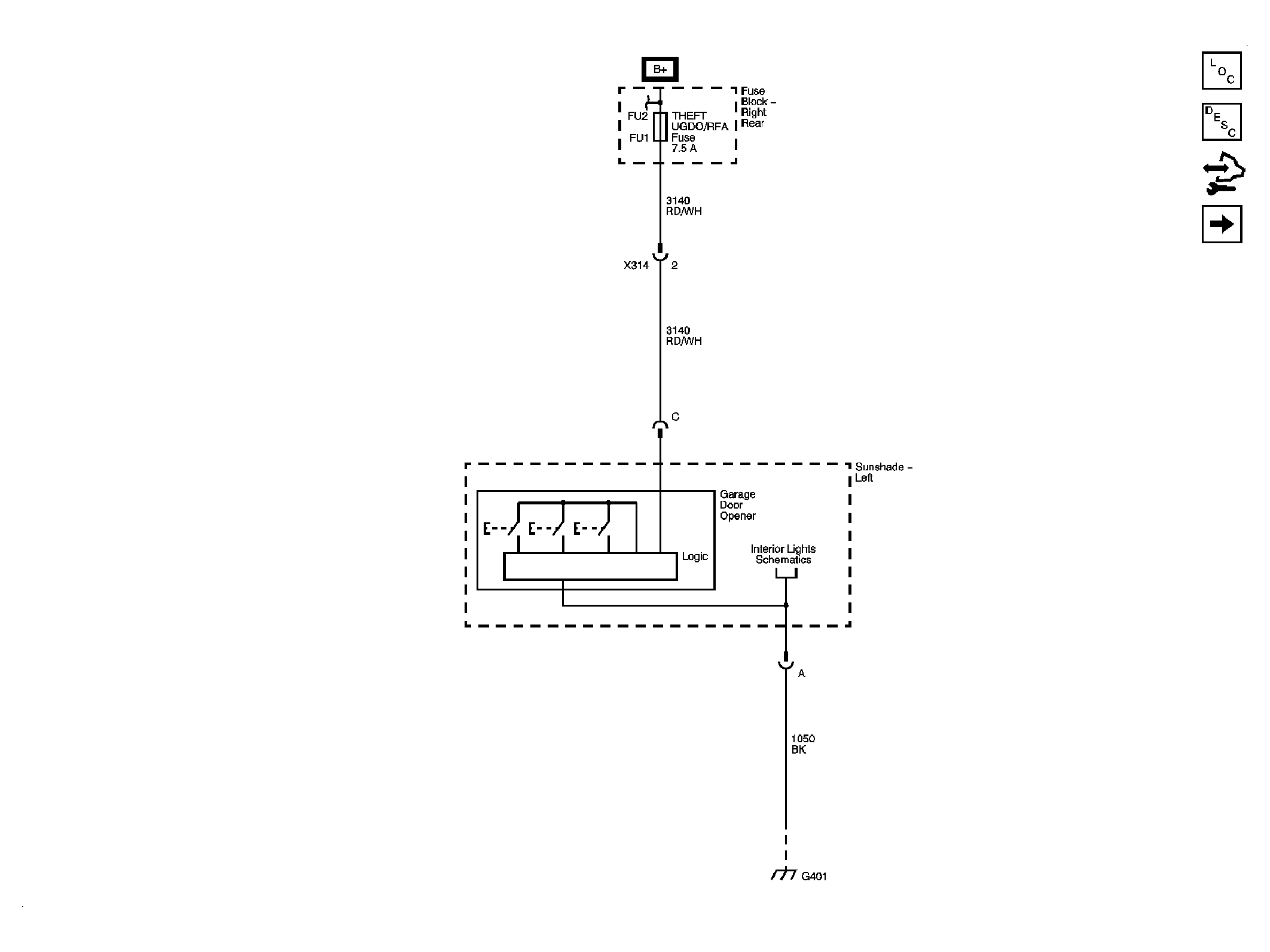
Fig 1: Remote Function Schematic (1 Of 2)
GM1874221Courtesy of GENERAL MOTORS CORP.
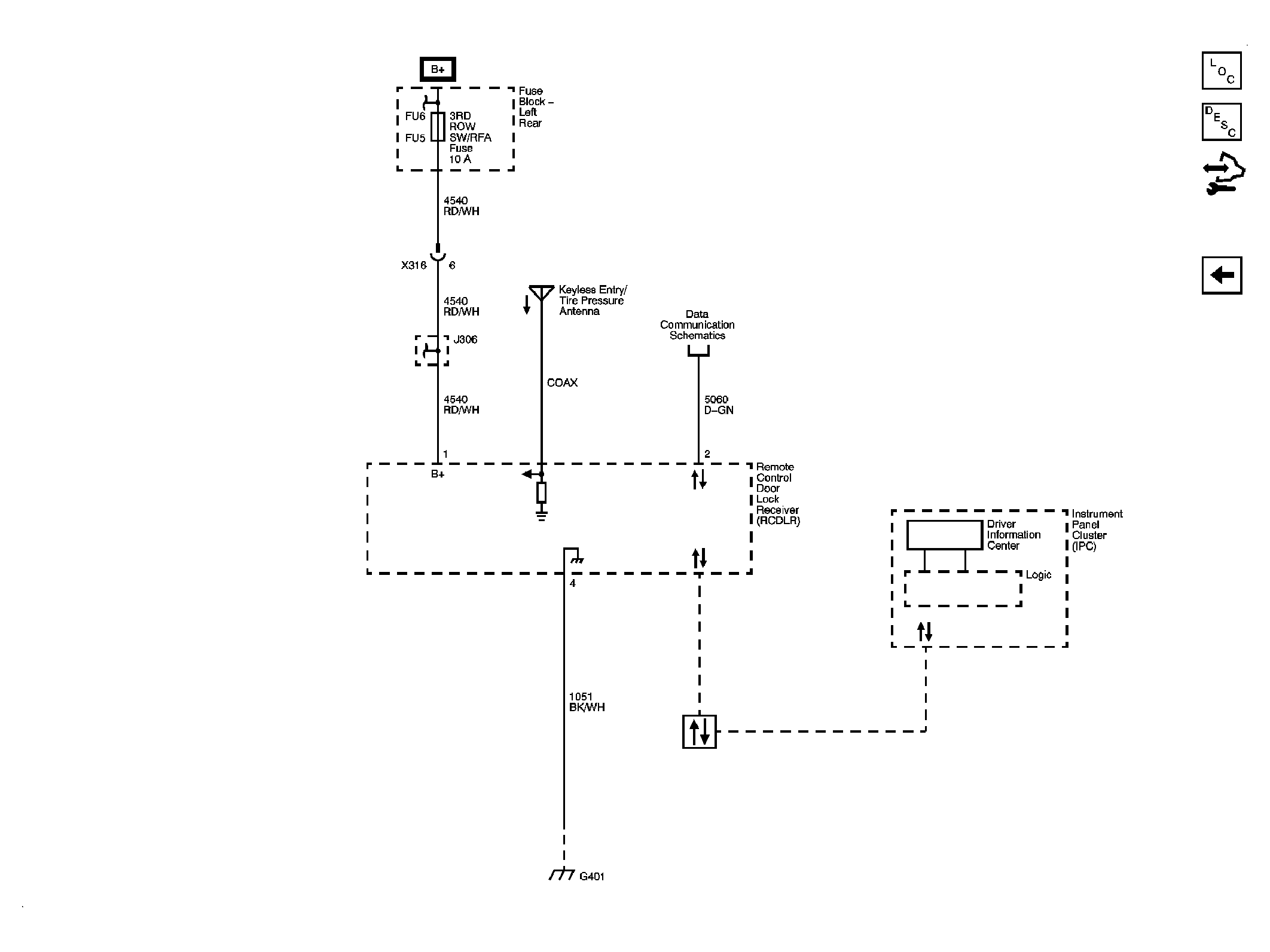
Fig 2: Remote Function Schematic (2 Of 2)
GM1874223Courtesy of GENERAL MOTORS CORP.