LEMON Manuals: Even more car manuals for everyone
Home >> Audi >> 2014 >> RS 5 Base >> Repair and Diagnosis >> External Pages >> Different car >> Section 1132 (Information And Entertainment Systems - 4.2-Inch (107MM) Screen, Am/Fm/Cd/Sync) >> Removal And Installation >> Audio Rear Control Unit (RCU) Module >> Removal And Installation

Removal And Installation

WARNING: This page is about a different car, the 2017 Lincoln Navigator and 2017 Ford Expedition. However, it is still accessible from the selected car via links, so may be relevant.

  1. 1.

    NOTE: If installing a new module, it is necessary to upload the module configuration information to the scan tool prior to removing the module. This information must be downloaded into the new module after installation.

    Using a diagnostic scan tool, begin the Programmable Module Installation (PMI) process for the Rear Control Unit (RCU) following the on-screen instructions.

  1. 2.

    Remove the floor console cup holder finish panel.
GFD136937Courtesy of FORD MOTOR COMPANY

  1. 3.

    Remove the 2 screws and the floor console rear finish panel.
    • Disconnect the electrical connector(s).
    • To install, tighten to 2 Nm (18 lb-in).
GFD136938Courtesy of FORD MOTOR COMPANY

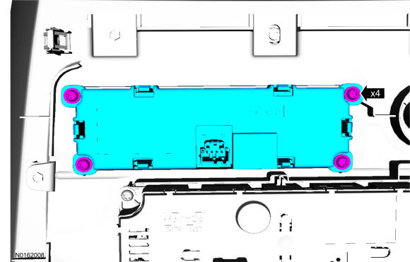
  1. 4.

    Remove the 4 screws and the RCU.
    • To install, tighten to 1.1 Nm (10 lb-in).
GFD136939Courtesy of FORD MOTOR COMPANY

  1. 5.

    To install, reverse the removal procedure.
    • NOTE: This step is only required if the RCU module is being replaced.

      Using a diagnostic scan tool, complete the PMI process for the RCU following the on-screen instructions.